
Karri Kekkonen
Yrittäjä, LKV, KED, vastaava hoitaja
karri.kekkonen@kiinteistomaailma.fi
puh. 0400 732 949
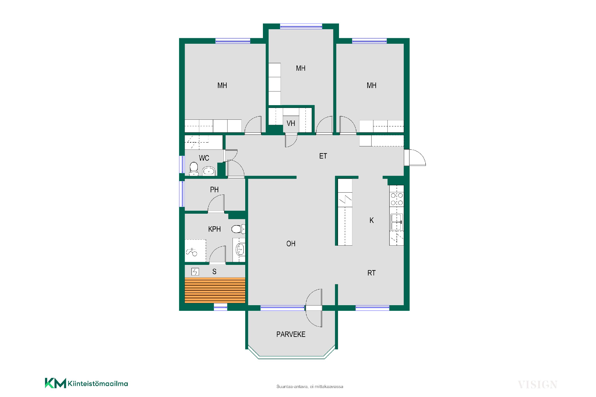
Valkeakosken pohjoispuolella sijaitsevassa Asunto Oy Pihapastellissa on nyt myynnissä tilava ja valoisa päätyhuoneisto. Näitä yli sataneliöisiä ja saunallisia asuntoja on tarjolla todella vähän, joten tähän tilaisuuteen kannattaa tarttua. Ja mikä parasta, kaupan yhteydessä on mahdollista ostaa oma, lämmin autotalliosake talon pohjakerroksesta. Tässä läpitalon asunnossa on riittää valoa ja tilaa monen kokoisen perheen / pariskunnan tarpeisiin. Huoneiston olohuone on erittäin hyvänkokoinen huone, joka on sopivasti keittiön ja ruokailutilan vieressä. Keittiössä on runsaasti kaapistoja sekä kaikki tarpeelliset kodinkoneet. Olohuoneen yhteydessä on iso, lasitettu parveke suoraan ilta-aurinkoon ja Lotilanjärvelle päin. Makuu-/työhuoneita on peräti kolme reilun kokoista huonetta, joissa kaikissa on runsaasti kaapistoja. Lisäksi asunnossa on vaatehuone. Kaikki makuuhuoneet ovat mainiosti aamuauringon / sisäpihan puolelle. Huoneiston pesutilat on saneerattu taloyhtiön toimesta vuonna 2013. Tyylikäs pesuhuone, iso, ikkunallinen sauna ja arjen luksusta tuovat erilliset pukuhuone ja wc-tila. Taloyhtiö sijaitsee omalla tontilla. Lämmitysmuotona on huoleton kaukolämpö, ja yhtiössä on jo tehty remontteja mm. uusittu juuri ikkunat. Aurinkopaneelit ja lämmön talteenotto pitävät asumiskustannukset kurissa ja mukavuuden korkealla. Sijainti on erinomainen: kävelyetäisyydeltä löytyvät ruokakaupat, päiväkoti, koulut, Nysse-pysäkit sekä Lotilanjärven kauniit rantapolut. Valkeakosken keskustaan on vain muutama kilometri ja Tampereelle ajaa omalla autolla alle puolessa tunnissa. Tervetuloa tutustumaan, esittelemme mielellämme tätä heti vapaata huoneistoa!