Tarjouskauppa

Riikka Lyly
Yrittäjä, kiinteistönvälittäjä, LKV, LVV, tradenomi (AMK)
riikka.lyly@kiinteistomaailma.fi
puh. 044 300 8003
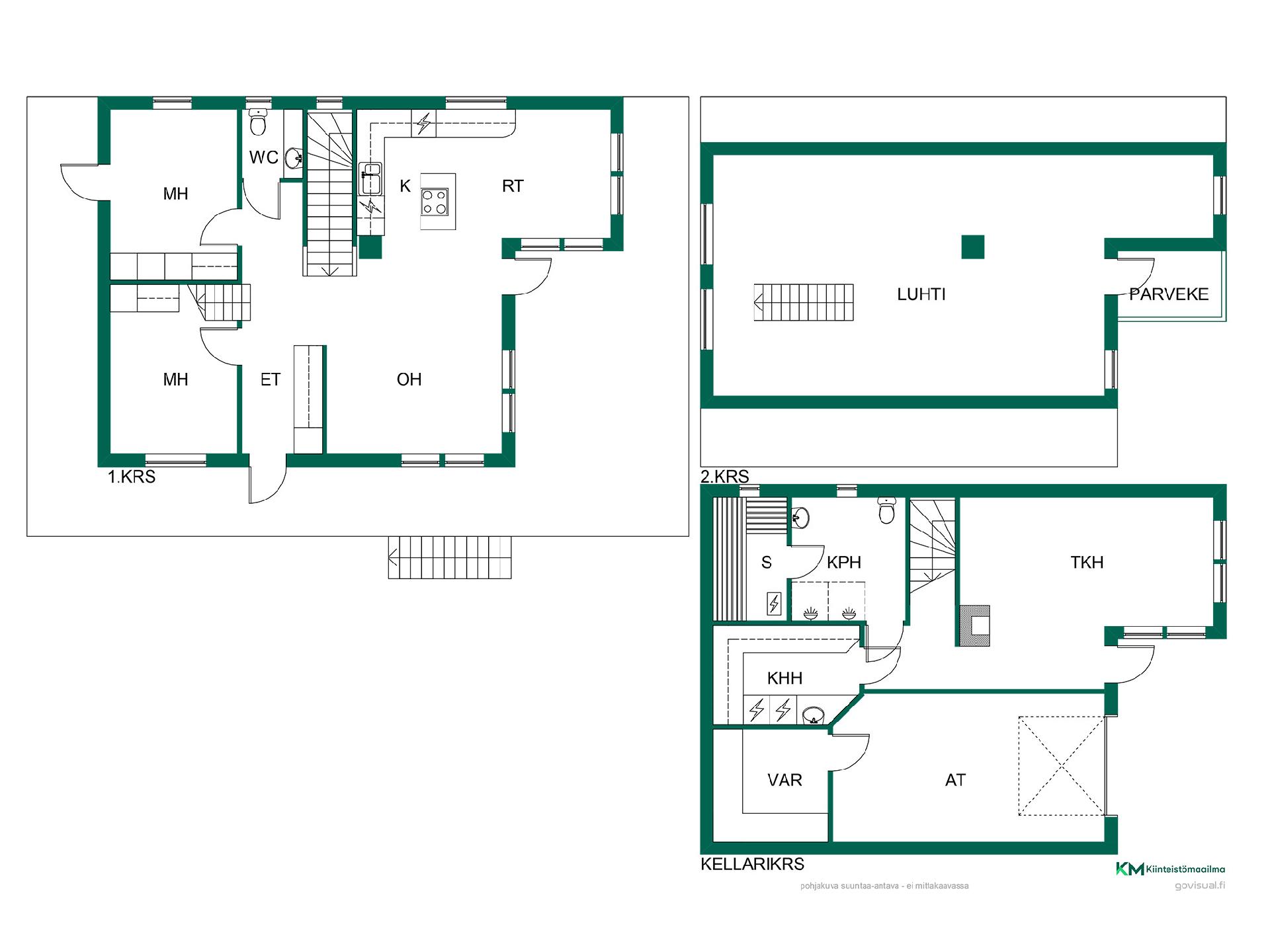
KODIKAS JA TILAVA OMAKOTITALO HIEKKASÄRKILLÄ Rauhallisella Usvametsäntien alueella, lammen, golfkentän ja hyvien ulkoilureittien äärellä, myynnissä omalla tontilla sijaitseva monipuolinen koti, joka sopii niin vakituiseen asumiseen kuin vapaa-ajan viettoon. Tämän kodin toimiva pohjaratkaisu tarjoaa tilaa ja mukavuutta kolmessa kerroksessa. Pääsisäänkäynti avautuu avaraan olohuoneeseen ja keittiöön, jotka muodostavat yhtenäisen ja valoisan tilan. Tässä kerroksessa on myös wc sekä kaksi makuuhuonetta, joista toisessa vaatehuone ja kauniit pariovet, jotka tuovat tilaan ylellisyyttä. Portaat johdattavat yläkertaan, jossa sijaitsee aulatila ja 3. makuuhuone, sekä säilytystilaa ja parveke. Alimmasta kerroksesta löytyy varaavalla takalla varustettu oleskelutila, käytännöllinen kodinhoitohuone, kylpyhuone/wc sekä tilava sauna aina valmiilla kiukaalla. Alakerrasta käynti ulos ja ulkoa kulku lämpimään autotalliin ja varastoon. Talon ympärillä kiertävät tilavat terassit tarjoavat runsaasti tilaa ulkoiluun ja oleskeluun. Viimeistelty piha-alue on asfaltoitu, ja pihasta löytyy lasten puumaja ja puuvarasto. Autokatoksessa on voimavirtapistoke sähköauton latausaseman asennusta varten.Talo on varusteltu valmiiksi kuituyhteydellä ja hälytysjärjestelmällä. Tämä koti on valmis tarjoamaan vaivattoman ja mukavan arjen monipuolisessa ympäristössä. Voisiko tämä olla juuri sinulle sopiva koti? Lähdetään yhdessä katsomaan! Lisätiedot ja esittelyt: Riikka Lyly p. 044 3008 003 riikka.lyly@kiinteistomaailma.fi