
Juha Hirvonen
yrittäjä, kiinteistönvälittäjä , KTK, LKV
juha.hirvonen@kiinteistomaailma.fi
puh. 0400 829 075
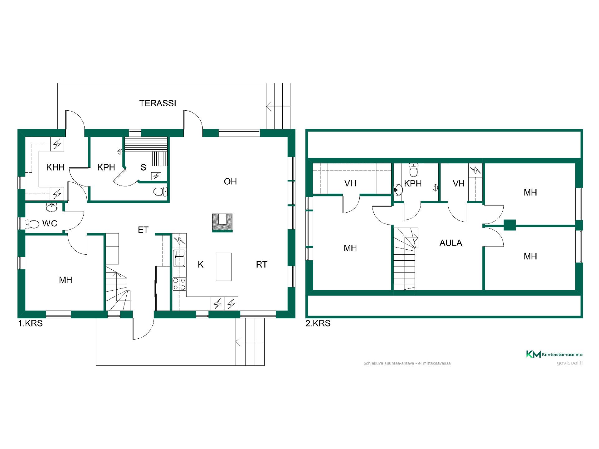
Lapsiperheen unelmakoti arvostetulla Kariston alueella lähellä kaikkia alueen palveluita. Suojaisa 690m2 Lahden kaupungin vuokratontti ja kotiovelta pääset ulkoilureiteille. Monipuoliset tilat kahdessa tasossa ja kaksi tilavaa vaatehuonetta. Iso terassi suojaisalle sisäpihalle, autokatos ja varasto. Lämmitysmuotona turvallinen kaukolämpö vesikiertoisella lattialämmityksellä, varaava takka leivinuunilla ja ilmalämpöpumppu. Tervetuloa tutustumaan ja ihastumaan elämäsi kotiin!