
Jukka Petman
kiinteistönvälittäjä, LKV, LVV, myyntijohtaja
jukka.petman@kiinteistomaailma.fi
puh. 050 5768 497
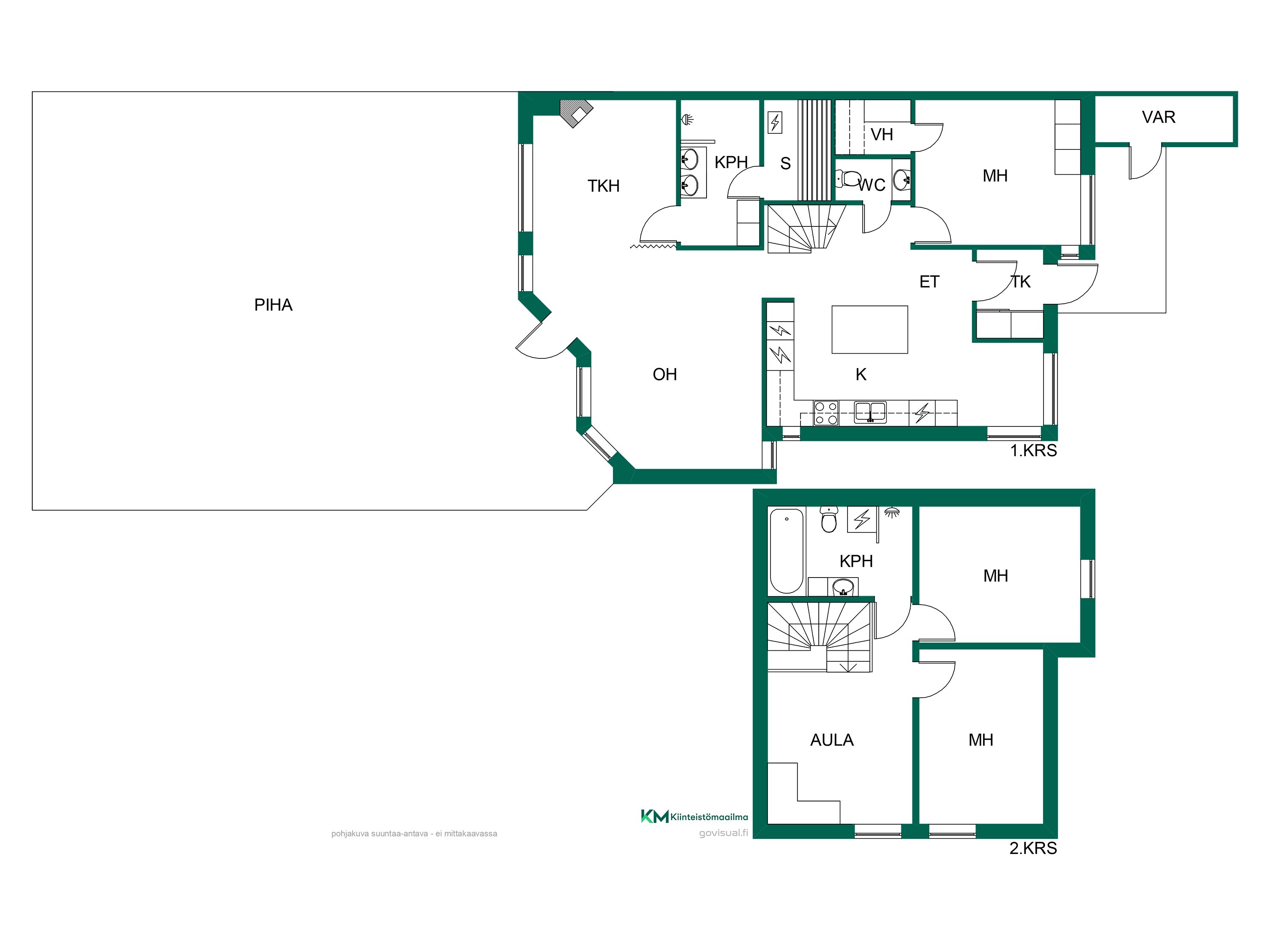
Valoisa koti perheelle Rajakylässä Tämä tilava ja valoisa koti Vantaan Rajakylässä tarjoaa täydelliset puitteet lapsiperheen arkeen. Asunnon yli neljän metrin huonekorkeus tuo avaruutta ja luonnonvaloa, joka tulvii sisään eri ilmansuunnista. Rauhallinen sijainti yhdistyy erinomaisiin palveluihin, sillä koulut, päiväkoti ja kaupat sijaitsevat kaikki lyhyen matkan päässä. Kodin pohjaratkaisu on suunniteltu sujuvaan perhe-elämään. Tilavassa asunnossa on neljä makuuhuonetta, viihtyisä olohuone ilmalämpöpumpulla sekä käytännöllinen keittiö. Arjen sujuvuutta lisäävät erillinen wc, kylpyhuoneet ja runsaat säilytystilat, kuten vaatehuoneet ja ulkovarasto. Varaava takka luo tunnelmaa ja lämpöä koleina iltoina. Omalta pihalta löytyy tilaa yhdessäololle, ja puutarhan omenapuu sekä marjapensaat tuovat palan luontoa aivan kotiovelle. Länsisuuntainen piha kutsuu nauttimaan iltapäivän auringosta. Huoneistolle kuuluu myös lämpöpistokkeellinen autopaikka, mikä helpottaa päivittäisiä lähtöjä. Taloyhtiö on pidetty hyvässä kunnossa pitkäjänteisellä kunnossapidolla, kuten 2025 toteutetulla salaojaremontilla. Sijainti lähellä julkisia liikenneyhteyksiä, kuten bussipysäkkejä ja metroasemaa, tekee liikkumisesta vaivatonta niin töihin kuin vapaa-ajallakin. Tervetuloa tutustumaan tähän kodikkaaseen kokonaisuuteen, joka odottaa uusia asukkaitaan. Ota yhteyttä ja varaa oma esittelyaikasi, niin lähdetään katsomaan, olisiko tässä teidän tuleva unelmien kotinne.