
Juha Hirvonen
yrittäjä, kiinteistönvälittäjä , KTK, LKV
juha.hirvonen@kiinteistomaailma.fi
puh. 0400 829 075
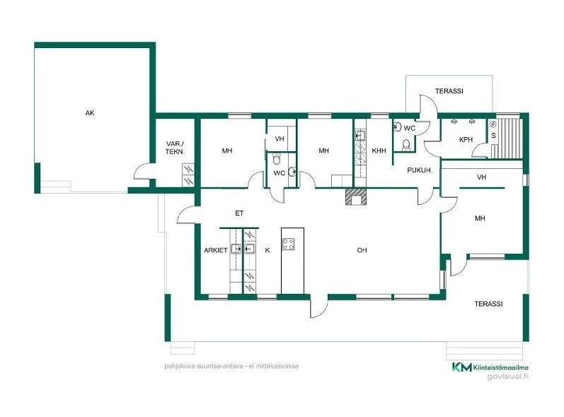
Upea 2024 Kotimestareiden rakentama lapsiperheen unelmakoti uudelle arvostetulle Kytölän asuinalueelle! Upea keittiö kivitasoineen isolla saarekkeella. Isot ikkunat ja normaalia korkeammat noin 3m huoneet tuovat lisää avaruutta. Arkieteinen on luksusta arkeen ja erittäin toimiva. Iso terassi katoksen alla aidattuna. Päättyvän kadun päässä Lahden kaupungin 903m2 vuokratontilla. Lämmitysmuotona energiatehokas ilmavesilämpöpumppu, kiertoilma takka ja ilmalämpöpumppu. Tilava kahden auton katos varastolla kruunaa tämä upean kokonaisuuden! Tervetuloa tutustumaan ja ihastumaan elämäsi kotiin!