
Aija Harainen
ylempi kiinteistönvälittäjä, YKV, LKV, LVV, KiAT, kaupanvahvistaja
aija.harainen@kiinteistomaailma.fi
puh. 050 362 4000
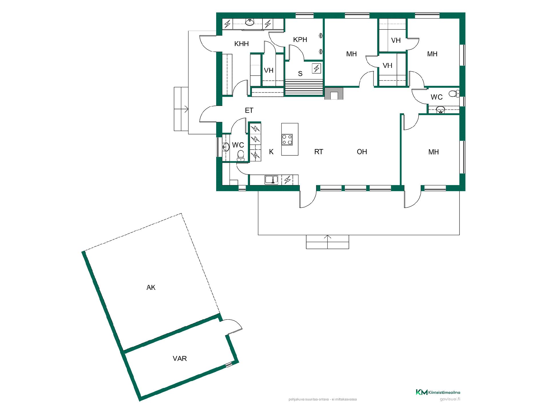
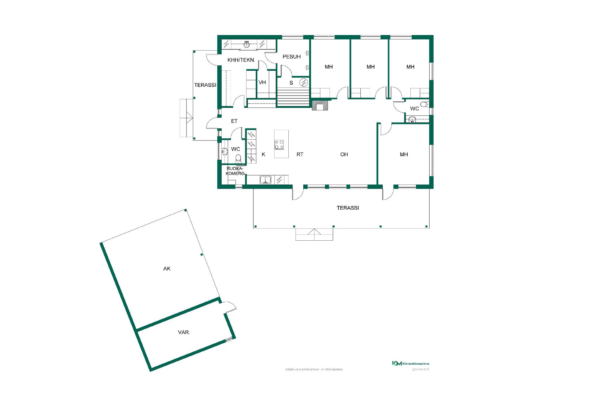
Uusi tyylikäs ja laadukas koti etsinnässä? Ennakkomarkkinoinnissa Siiri 2 alueelle yksikerroksinen energiatehokas, laadukas, pitkästä tavarasta rakennettu tyylikäs omakotitalo, sekä kahden auton katos varastolla. Tontti sijaitsee päättyvän tien päätykaarteessa, joten tontti jää hyvin suojaisaksi ja rajoittuu isolta osin puistoon. Ainutlaatuinen pohjaratkaisu on laadittu asuinmukavuus edellä. Nyt sinulla on vielä mahdollisuus vaikuttaa, haluatko tämän kodin toteutettavan isommalla huonemäärällä 5h+k kotina, vai toimisiko sinun tarpeisiisi paremmin 4h+k koti usealla vaatehuoneella varustettuna. Myös pintamateriaaleihin ja värimaailmaan on mahdollista vaikuttaa. Talo rakennetaan A-energialuokan taloksi, se lämpenee energiatehokkaalla poistoilmalämpöpumpulla, lisänä varaava takka. Talossa kaikki materiaalit tulevat olemaan laadukkaita, puuta ja kestäviä pintoja suosien. Tältä lapsiperheelle sopivalta luonnonläheiseltä alueelta on päiväkotiin ja alakouluun matkaa n. 2,5 km, Hämeenlinnan keskustaan ajat vajaassa 15 minuutissa ja tästä on erinomaiset kulkuyhteydet moneen suuntaan. Myynti toteutetaan ennakkomarkkinoinnissa, eli nyt laaditaan käsirahallinen ostotarjous ja varsinaiset kaupat tehdään vasta kun talo ja katos on valmiita. Pihojen viimeistely jää ostajalle, muutoin kaikki toteutetaan laadukkaasti alusta loppuun. Tartu pian tähän ainutlaatuiseen tilaisuuteen!