
Tuija Järvenkallas
osakas, kiinteistönvälittäjä LKV, LVV, kaupanvahvistaja
tuija.jarvenkallas@kiinteistomaailma.fi
puh. 0500 885 661
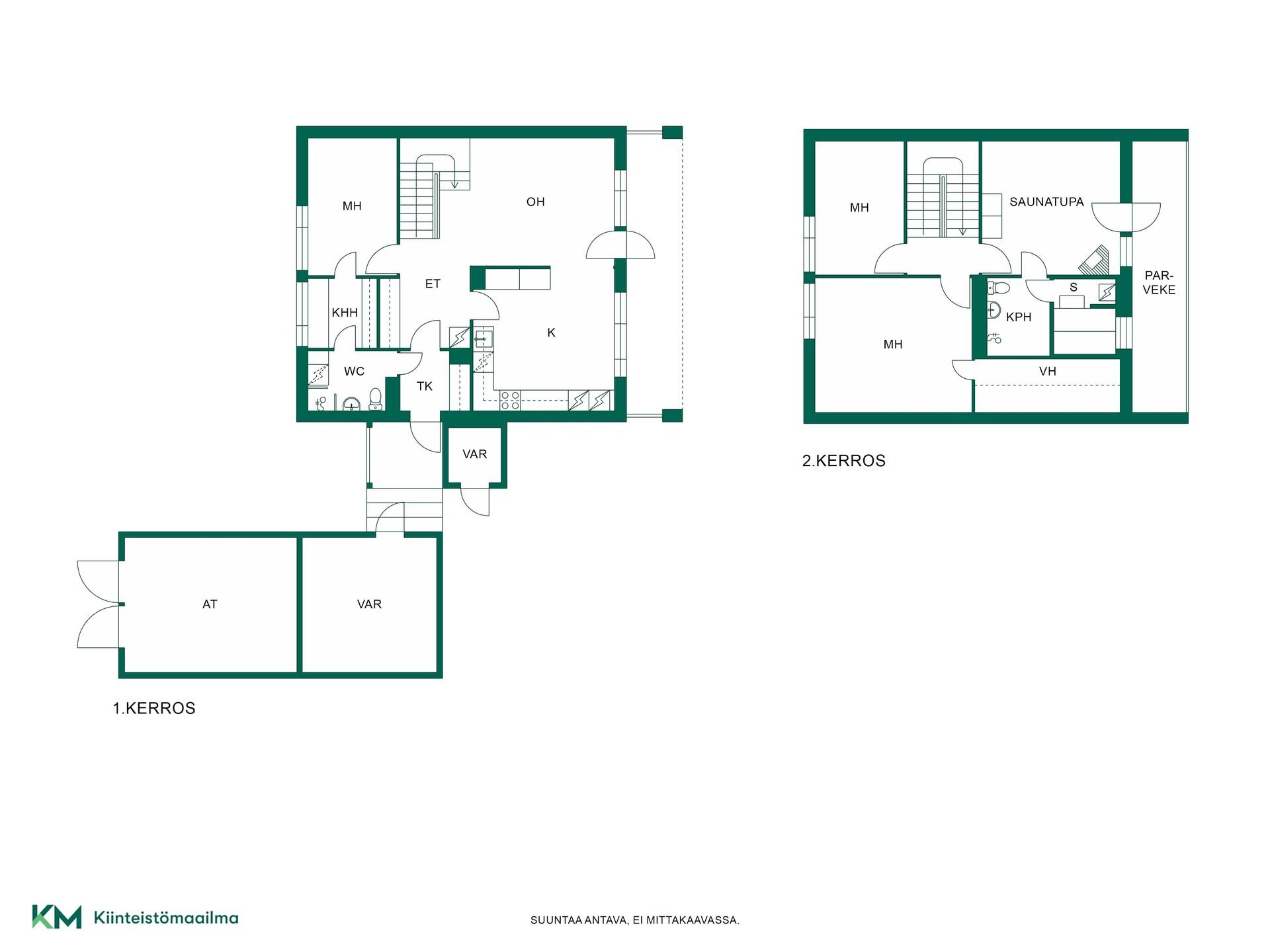
KUNTOTARKASTETTU! Viihtyisä ja kodikas omakotitalo rauhallisella alueella Hämevaarassa etsii uutta perhettä. Taloa on remontoitu sisältä ja ulkoa vuosien varrella asianmukaisesti. Alakerrassa on olohuone, keittiö, yksi makuuhuone, kodinhoitohuone ja kylpyhuone. Yläkerrassa on kaksi mahuuhuonetta, takkahuone, sauna, kylpyhuone ja iso parveke. Paljon säilytystilaa, talon laipiot otettu asuin/varasto käyttöön. Erillinen autotallirakennus, jossa myös iso ja lämmin varasto. Suojaisella takapihalla on mm. omenapuita, kirsikkapuu ja palju rentoutumista varten. Upeat ulkoilureitit lähtee tontin nurkalta Pöllökallioon, joka on saanut nimensä alueen luonnonkauniista maisemista ja vanhasta puistokulttuurista.