Myytävät asunnotVähikkäläSauvala
MO1407521VähikkäläEUR169000Riihimäki
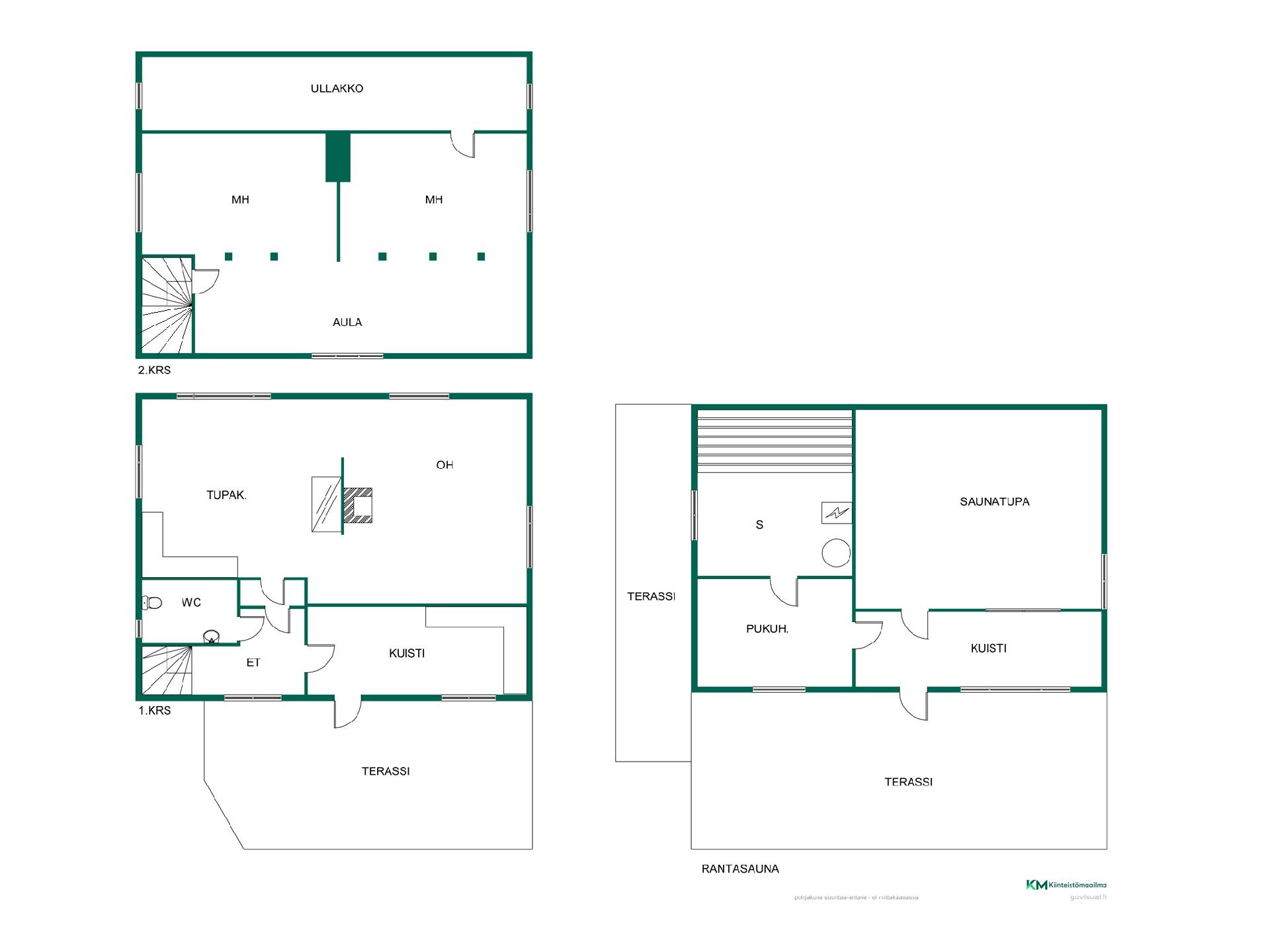
60 / 64Alakerta: tupakeittiö, h, yläkerta: puoliksi avointa tilaa, wc-tila, kellaritila

Martinniementie 13, Sauvala, Janakkala

169 000,00 €Velaton hinta
169 000,00 €Myyntihinta
60Martinniementie 13, Sauvala, Janakkala
Asunnon pohjakuva
Huvilan sydän on tupakeittiö liesineen.
Huvilan sydän on tupakeittiö liesineen.
Huvilaa ympäröi puutarha, josta polku johtaa rantasaunalle.
Huvilaa ympäröi puutarha, josta polku johtaa rantasaunalle.
Näkymää keittiöön ja oleskelutilaan, oikealla makuutila.
Näkymää keittiöön ja oleskelutilaan, oikealla makuutila.
Oleskelutila ruutuikkunoineen.
Oleskelutila ruutuikkunoineen.
Kuvaa tupaa kohti.
Kuvaa tupaa kohti.
Martinniementie 13, Sauvala, Janakkala
Yläkerrassa on kaksi makuutilaa, aula sekä ullakko.
Yläkerrassa on kaksi makuutilaa, aula sekä ullakko.
Tilat on erotettu ikkunoista tehdyllä väliseinällä, joten yläkertaan tulee kauniisti luonnonvaloa.
Tilat on erotettu ikkunoista tehdyllä väliseinällä, joten yläkertaan tulee kauniisti luonnonvaloa.
Martinniementie 13, Sauvala, Janakkala
Makuuhuoneen perällä ovi johtaa ullakolle, josta tarvittaessa remontoitavissa lisätilaa.
Makuuhuoneen perällä ovi johtaa ullakolle, josta tarvittaessa remontoitavissa lisätilaa.
Kuvaa portaiden suuntaan yläkerrassa...
Kuvaa portaiden suuntaan yläkerrassa...
...ja alakerran eteisestä.
...ja alakerran eteisestä.
Kesäkuvia kuistilta ja puutarhasta.
Kesäkuvia kuistilta ja puutarhasta.
Martinniementie 13, Sauvala, Janakkala
Huvilan edessä on iso terassi yhdessäoloon.
Huvilan edessä on iso terassi yhdessäoloon.
Toinen istuinryhmä on saunapolun varrella.
Toinen istuinryhmä on saunapolun varrella.
Rantasaunan kuistilta avautuu hulppea näkymä Valajärvelle.
Rantasaunan kuistilta avautuu hulppea näkymä Valajärvelle.
Pukuhuone on kivankokoinen.
Pukuhuone on kivankokoinen.
Parhaat löylyt saadaan puulämmitteisellä saunalla!
Parhaat löylyt saadaan puulämmitteisellä saunalla!
Saunatupaan mahtuu majoittamaan hyvin myös yövieraita.
Saunatupaan mahtuu majoittamaan hyvin myös yövieraita.
Kuistilla on mukava nauttia järvimaisemista tuulisemmallakin säällä.
Kuistilla on mukava nauttia järvimaisemista tuulisemmallakin säällä.
Sympaattinen hirsi-/puurakenteinen sauna terasseineen...
Sympaattinen hirsi-/puurakenteinen sauna terasseineen...
...ja keinuineen.
...ja keinuineen.
Martinniementie 13, Sauvala, Janakkala
Monimuotoinen tontti: puutarhaa, metsämaastoa ja ranta-alue.
Monimuotoinen tontti: puutarhaa, metsämaastoa ja ranta-alue.
Hyvälaatuinen Valajärvi.
Hyvälaatuinen Valajärvi.
Martinniementie 13, Sauvala, Janakkala
Pääkaupunkiseudulta matkan taittaa n. tunnissa ja vartissa.
Pääkaupunkiseudulta matkan taittaa n. tunnissa ja vartissa.
Tervetuloa tutustumaan!
Tervetuloa tutustumaan!
Asunnon pohjakuva
Huvilan sydän on tupakeittiö liesineen.
Huvilan sydän on tupakeittiö liesineen.
Huvilaa ympäröi puutarha, josta polku johtaa rantasaunalle.
Huvilaa ympäröi puutarha, josta polku johtaa rantasaunalle.
Näkymää keittiöön ja oleskelutilaan, oikealla makuutila.
Näkymää keittiöön ja oleskelutilaan, oikealla makuutila.
Oleskelutila ruutuikkunoineen.
Oleskelutila ruutuikkunoineen.
Kuvaa tupaa kohti.
Kuvaa tupaa kohti.
Martinniementie 13, Sauvala, Janakkala
Yläkerrassa on kaksi makuutilaa, aula sekä ullakko.
Yläkerrassa on kaksi makuutilaa, aula sekä ullakko.
Tilat on erotettu ikkunoista tehdyllä väliseinällä, joten yläkertaan tulee kauniisti luonnonvaloa.
Tilat on erotettu ikkunoista tehdyllä väliseinällä, joten yläkertaan tulee kauniisti luonnonvaloa.
Martinniementie 13, Sauvala, Janakkala
Makuuhuoneen perällä ovi johtaa ullakolle, josta tarvittaessa remontoitavissa lisätilaa.
Makuuhuoneen perällä ovi johtaa ullakolle, josta tarvittaessa remontoitavissa lisätilaa.
Kuvaa portaiden suuntaan yläkerrassa...
Kuvaa portaiden suuntaan yläkerrassa...
...ja alakerran eteisestä.
...ja alakerran eteisestä.
Kesäkuvia kuistilta ja puutarhasta.
Kesäkuvia kuistilta ja puutarhasta.
Martinniementie 13, Sauvala, Janakkala
Huvilan edessä on iso terassi yhdessäoloon.
Huvilan edessä on iso terassi yhdessäoloon.
Toinen istuinryhmä on saunapolun varrella.
Toinen istuinryhmä on saunapolun varrella.
Rantasaunan kuistilta avautuu hulppea näkymä Valajärvelle.
Rantasaunan kuistilta avautuu hulppea näkymä Valajärvelle.
Pukuhuone on kivankokoinen.
Pukuhuone on kivankokoinen.
Parhaat löylyt saadaan puulämmitteisellä saunalla!
Parhaat löylyt saadaan puulämmitteisellä saunalla!
Saunatupaan mahtuu majoittamaan hyvin myös yövieraita.
Saunatupaan mahtuu majoittamaan hyvin myös yövieraita.
Kuistilla on mukava nauttia järvimaisemista tuulisemmallakin säällä.
Kuistilla on mukava nauttia järvimaisemista tuulisemmallakin säällä.
Sympaattinen hirsi-/puurakenteinen sauna terasseineen...
Sympaattinen hirsi-/puurakenteinen sauna terasseineen...
...ja keinuineen.
...ja keinuineen.
Martinniementie 13, Sauvala, Janakkala
Monimuotoinen tontti: puutarhaa, metsämaastoa ja ranta-alue.
Monimuotoinen tontti: puutarhaa, metsämaastoa ja ranta-alue.
Hyvälaatuinen Valajärvi.
Hyvälaatuinen Valajärvi.
Martinniementie 13, Sauvala, Janakkala
Pääkaupunkiseudulta matkan taittaa n. tunnissa ja vartissa.
Pääkaupunkiseudulta matkan taittaa n. tunnissa ja vartissa.
Tervetuloa tutustumaan!
Tervetuloa tutustumaan!

Harvinainen tilaisuus!

  • Tunnelmallinen, hirsi-/puurakenteinen huvila ja rantasauna
  • Varaava takka ja leivinuuni
  • Oma tontti 2120 neliötä ja rantaviivaa n. 30 metriä
  • Hyvälaatuinen Valajärvi

Harvinainen tilaisuus – tunnelmallinen hirsi-/ puurakenteinen huvila ja rantasauna kirkasvesistöisen Valajärven rannalla! Viehättävä huvila hurmaa kuistillaan ja hirsipinnoillaan! Alakerran sydän on tupakeittiö leivinuunilla ja oleskelutila varaavalla takalla. Yläkerrassa sijaitsevat makuutilat, aula sekä ullakko, josta on saatavissa tarvittaessa lisätilaa. Huvilan sisäänkäynnin yhteydessä on ihastuttava kuisti sekä tilava terassi, joka kutsuu nauttimaan yhdessäolosta ja puutarhasta. Kesäajan lisäksi huvilaa on käytetty myös talvisin. Rantasauna on oma rauhallinen keitaansa suurine terasseineen. Rakennuksessa on reilunkokoinen saunatupa, erillinen pukuhuone ja perinteinen puulämmitteinen sauna. Suurelta terassilla avautuu kaunis näkymä Valajärvelle. Oma, monimuotoinen tontti on reilun kokoinen, 2120 m² jakautuen huvilaa ympäröivään puutarhaan, polveilevaan metsäpolkuun ja ranta-alueeseen. Tilaa on niin oleskeluun, lasten leikkeihin, puutarhapuuhille kuin uimiseen, veneilyyn ja kalastukseen. Ranta on luonnonmukainen ja hiekkapohjainen ja omaa rantaviivaa on n. 30 metriä. Tontin läheisyydestä avautuvat myös mainiot marja- ja sienimetsät. Pääkaupunkiseudulta matkan Valajärvelle taittaa noin tunnissa ja vartissa. Loistava mahdollisuus hankkia oma kesäpaikka yhdeltä alueen arvostetuimmista järvistä. Voisiko tämä paikka olla sinun? Tervetuloa esittelyyn!

Sovi esittely

Seuraava esittelyaika ei ole vielä sovittu.
Ota yhteyttä ja sovi henkilökohtainen esittely!

Myymälä

Kiinteistömaailma Riihimäki(Saranen LKV Oy)Keskuskatu 13, 11100 Riihimäki045 216 4472
Lue lisää

Kiinteistön tiedot

Kohdenumero1407521
TalotyyppiLoma-asunto
RakennusmateriaaliHirsi, puu
SijaintiMartinniementie 13, 12450 Vähikkälä
KaupunginosaSauvala
HuonelukuAlakerta: tupakeittiö, h, yläkerta: puoliksi avointa tilaa, wc-tila, kellaritila
Asuinpinta-ala60 m², ei tarkastusmitattu
Kokonaispinta-ala64 m²
Kerroksia
Rakennusvuosi1932
Käyttöönottovuosi1932
KäyttövesiJärvestä, ei kaivoa
JätevesihuoltoRantasauna: maahanimeyttämö kivipesän kautta
Lämmitysjärjestelmä ja sen kuntoAlakerta: sähköpatterit, puu (varaava takka, leivinuuni)
IlmanvaihtojärjestelmäPainovoimainen
KattotyyppiHarja
KateHuopa
Tehdyt kunnostukset ja peruskorjauksetNykyinen omistaja: huvilan vanhat pinnat purettu: katto, seinät ja lattia sekä lisätty ikkuna nyk. ruokailutilan kohdalle (muut ikkunat pintaremontoitu) sekä maalattu seinät kalkkimaalilla 2004. Yläkerrasta poistettu väliseinäpahvit, koolattu, asennettu villat seiniin (5 cm) ja kattoon (10 cm), ilmarako, rimoitus, panelointi ja lattialautojen asennus 2004. Tupakeittiöstä vaihdettu muutama lankku (lis. ikkunan edestä). Sisääntulosta komero purettu ja sijoitettu tilaan wc 2004. Sisääntulon terassi rakennettu 2006. Ulkomaalaus 2017. Rantasauna: aik. omistaja valanut saunan lattian 2003. Nyk. omistaja rakentanut terassin ja laajentanut sitä 2006. Saunatuvan takka purettu 2010. Terassin etuosa uusittu 2022.
EnergiatehokkuusluokkaKohteelle ei lain mukaan tarvita energiatodistusta
Huoneiston kuntoTyydyttävä
VapautuminenSopimuksen mukaan

Tontti

Tontin pinta-ala2120 m²
Tontin omistusOma
KaavoitusYleiskaava
Rakennusoikeus106 m² Rakennuspaikan rakennusoikeus on 5 % rakennuspaikan pinta-alasta (e=0,05). Alueelle rakennettaessa tai tehtäessä muutoksia olemassa oleviin rakennuksiin on huolehdittava siitä, että uudisrakentaminen sijoitukseltaan, mittasuhteiltaan, tyyliltään ja materiaaliltaan (lautaverhous) sopeutuu aluekokonaisuuteen. Rakennuspaikalle saa rakentaa yksiasuntoisen lomarakennuksen, vierasmajan sekä saunarakennuksen ja muita talousrakennuksia. Loma-asunto, vierasmaja ja sauna saavat olla kooltaan yhteensä enintään 80 % kokonaisrakennusoikeudesta. Lisätietoja alueen kaavamääräyksistä.
Oma rantaKyllä
Rannan tyyppiJärvi
Lisätietoja rannastaOmaa rantaviivaa (Myyjän ilmoituksen mukaan rantaviivaa on n. 30 m.)
VesistöValajärvi
Muut tontilla olevat rakennuksetKevyt varasto, pieni varasto (puutarhavälineet)
Maapohjan pinta-ala2120 m²

Varustus

KeittiöJääkaappi, leivinuuni, kaasuliesi (2 levyä)
SaniteettitilatWc: wc-istuin (malli Kemssa, mm. asuntovaunuissa). Sauna: puukiuas, vesipata
Muuta kauppaan kuuluvaaVaraava takka, spottivalot (2 kpl), jäteastia (yhteinen), sininen pihakalusteryhmä, ulkopöytä, keinu, vene (lasikuitu), istutukset: omenapuu (2 kpl), viinimarjapensas (2 kpl) ja karviaismarjapensas (2 kpl)

Tilat, materiaalit ja varustus

Keittiön lattiaLankkulattia
Kylpyhuoneen lattiaSauna: betoni
Olohuoneen lattiaLankkulattia
Makuuhuoneen lattiaPuu

Sijainti kartalla

Hinta- ja asumiskustannukset

Myyntihinta169 000,00 €
Velkaosuus0,00 €
Velaton hinta169 000,00 €
Lämmityskulut ja taloussähkö (myyjän arvio)oman kulutuksen mukaan
Jätehuolto (myyjän arvio)oman kulutuksen mukaan. Nykyisellä omistajalla kesäkuu-syyskuu n. 24 €.
Vesi- ja jätevesi (myyjän arvio)oman kulutuksen mukaan
Tiemaksut (myyjän arvio)Auraus n. 45 €/v.
Kiinteistövero279,90 €/v (2024)

Liikenneyhteydet ja palvelut

KoulutAlakoulu, Tervakoski (n. 10 km), Yläkoulu ja lukio, Tervakoski (n. 10 km)
PäiväkotiTervakoski (n. 9.8 km)
LiikenneyhteydetLinja-autopysäkki (n. 3 km)
RuokakaupatVähikkälän kesäkauppa (n. 2.7 km), Tervakoski (n. 10 km)

Lisätiedot

AsuntomyymäläKiinteistömaailma Riihimäki
Saranen LKV Oy, Keskuskatu 13, 11100, Riihimäki
Puh. 045 216 4472
Lähetä sähköpostia
VälittäjäOma välittäjäsi
Ilmoitusta on katsottu121 kertaa
Vastuullista välittämistä