
Jukka Petman
kiinteistönvälittäjä, LKV, LVV, myyntijohtaja
jukka.petman@kiinteistomaailma.fi
puh. 050 5768 497
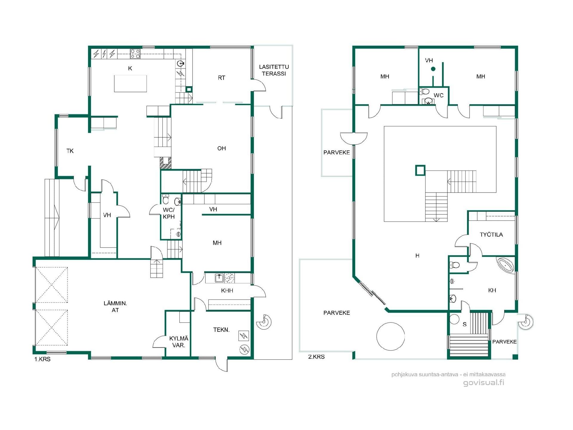
Ainutlaatuinen edustuskoti Tuusulassa! Oletko etsinyt paikkaa, jossa arki kohtaa edustustilaisuudet? Tämä uniikki kivitalo Tuusulan Ruotsinkylässä on enemmän kuin koti – se on elämys, joka aukeaa jo heti ovesta sisään astuessa. Sijainti on täydellinen: vain puolen tunnin ajomatkan päässä Helsingistä ja lähellä lentokenttää, mutta silti omassa rauhassa kauniiden peltomaisemien keskellä. Kodin sydän on yli 6,5 metrin huonekorkeudella varustettu, avara olohuone. Tämän tilan kruunaa kirjailija Arto Paasilinnan käytössä ollut takka, joka luo paitsi lämpöä, myös tarinoita. Olohuoneen yläpuolella oleva, näyttävä parvi kiertää koko tilan ja luo yhteyden yläkerran yksityisyyteen. Ruokailu ja viihdytys sujuvat saumattomasti. Keittiö tarjoaa runsaasti tilaa gourmet-kokkailuun ja avautuu suoraan valoisaan ruokailutilaan. Ruokailutilasta on pääsy lasitetulle terassille, joka jatkaa oleskelutilaa ulos. Yläkerran parvekkeella voit rentoutua omassa porealtaassa ja katsella maisemaa. Tämän kodin todellinen helmi on kuitenkin yläkerran kylpyhuoneen yhteydessä sijaitseva oma hirsisauna, josta on suora käynti vilvoitteluparvekkeelle. Tämä tarjoaa täydellisen paikan niin arki-illan rentoutumiseen kuin vieraille tarjottavaan ylellisyyteen. Asunnossa on maalämpö vesikiertoisella lattialämmityksellä. Kaksi poreammetta, joista toinen sisällä ja toinen parvekkeella. Kahden auton lämmin talli ja sähköauton latauskin onnistuu. Tämä koti soveltuu täydellisesti vaativaan makuun ja edustustarkoituksiin. Tule ja koe paikan päällä, miksi tämä kiinteistö on nähtävä!