
Joni Mansikka
myyntijohtaja, kiinteistönvälittäjä, kaupanvahvistaja, LKV, LVV, KiAT
joni.mansikka@kiinteistomaailma.fi
puh. 0400 774082
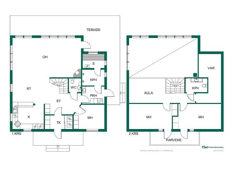
Vuonna 2018 rakennettu Kontio hirsitalo Hämeenlinnan Tuuloksessa reilun kilometrin päässä kauppakeskus Tuulosen palveluista. Talo sijaitsee harjun laella omalla 3013 neliön tontilla. Talon alakerrassa vesikiertoinen lattialämmitys ilmavesilämpöpumpulla sekä tunnelman ja lämmön luojana takkaleivinuuni olohuoneessa. Lämpöä ja viilennystä hellepäiville tuo ilmalämpöpumppu. Keittiö yhdistyy sulavasti ruokailutilan kautta olohuoneeseen. Näyttävän korkeassa olohuoneessa suuret upeat ikkunat, joista aukeavat metsämaisemat. Alakerrassa on lisäksi yksi makuuhuone, vessa, kodinhoitohuone, pesuhuone sekä sauna. Yläkerrasta löytyy kaksi makuuhuonetta, vessa, mukavat aulatilat sekä mahtavan kokoinen varastotila. Autolle on erillinen lämmin autotalli ja lisäksi on mukavasti säilytystiloja. Sovi henkilökohtainen esittelysi tähän upeaan hirsitaloon.