
Pamela Hannula
Yrittäjä, Företagare, LKV, AFM, LVV, KED
pamela.hannula@kiinteistomaailma.fi
puh. 050 550 3990
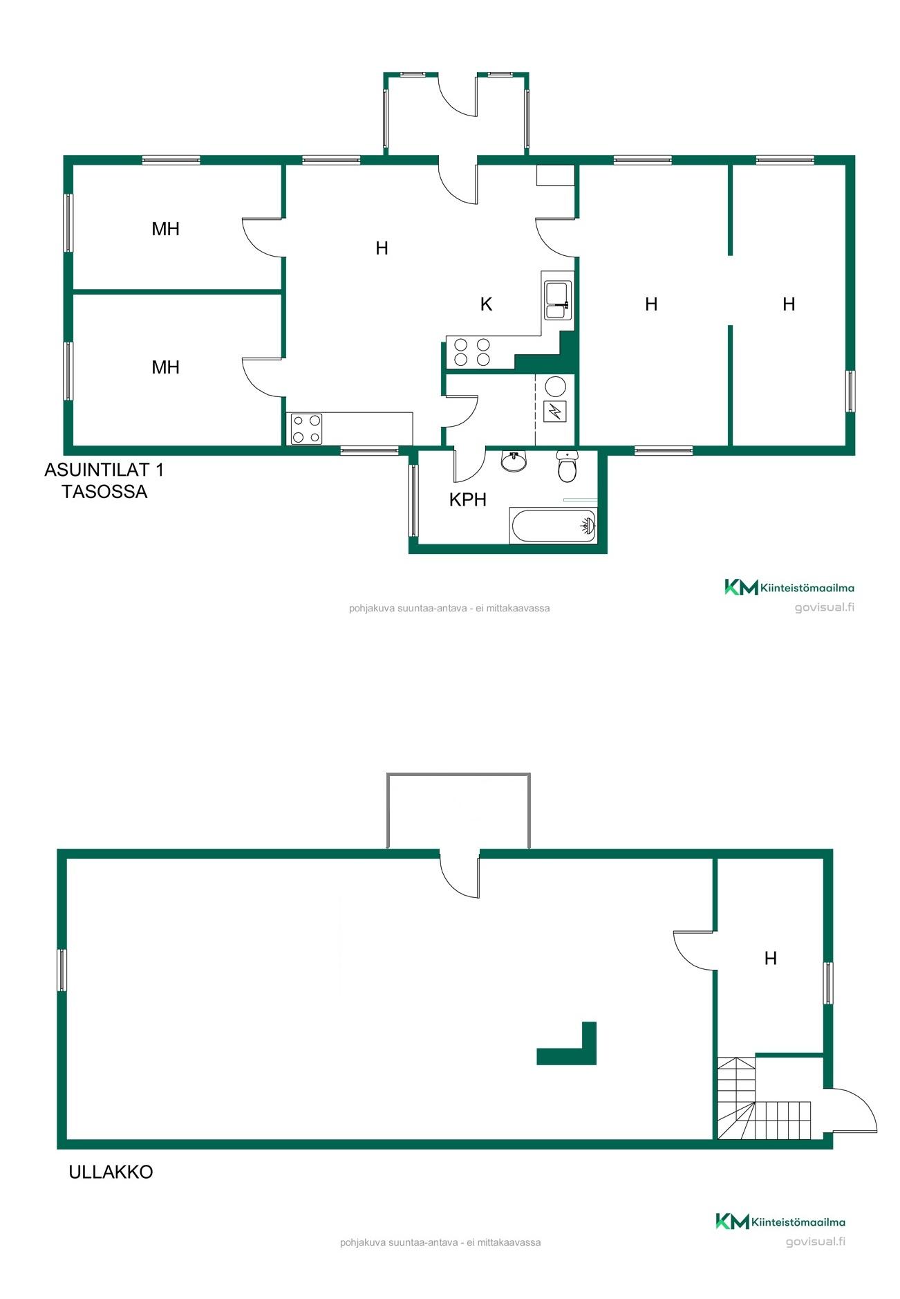
Myytävänä määräala Rösundista Tammisaaresta. Lohkottavan määräalan pinta-ala tulee olemaan noin 5500 m², rajoittuen Trångsundträsket‑järven rantaa vasten (rantaviiva n. 30m) Järvi on hiekkapohjainen (p-ala 73 ha).Raaseporin karttapalvelun mukaan on järven ekologinen tila tyydyttävä. Kiinteistö myydään saneerauskohteena. Kiinteistöllä sijaitsee kodikas hirsi/puutalo (OKT), joka on rakennettu n. v. 1919 ja laajennusosa n. 1940- ja lisäosa 1960‑luvuilla. Lisäksi on rantasauna. Oma porakaivo ja sähköliittymä. Lisäksi mahdollisuus vuokrata venepaikka noin 200 metrin päästä, josta on yhteys merelle – täällä voi nauttia sekä järven että meren läheisyydestä! Juna-asema ja Tammisaaren palvelut noin 20 minuutin ajomatkan päässä. Soita ja sovi esittelystä! Till salu en tomtandel i Rösund, Ekenäs. Den avstyckade tomtens areal kommer att vara ca. 5 500 m² och gränsar mot sjön Trångsundträsket (strandlinje ca. 30 m). Trångsundträskets areal ca. 73 ha (sandbotten), enligt Raseborgs karttjänst är dess ekologiska status godtagbar. Fastigheten säljs som ett renoveringsobjekt. På fastigheten finns en hemtrevlig stock/-trähus (EGH), bygg år ca. 1919, utbyggt på 1940‑ och 1960‑talen. Dessutom finns strandbastu. Egen borrbrunn och elanslutning. Möjlighet att hyra en båtplats ca. 200 meter bort, med förbindelse ut till havet – här kan man njuta av både sjö- och havsnära läge! Tågstation, matbutik, och Ekenäs centrum endast på ca. 20 minuters avstånd. Ring om visning!