
Pamela Hannula
Yrittäjä, Företagare, LKV, AFM, LVV, KED
pamela.hannula@kiinteistomaailma.fi
puh. 050 550 3990
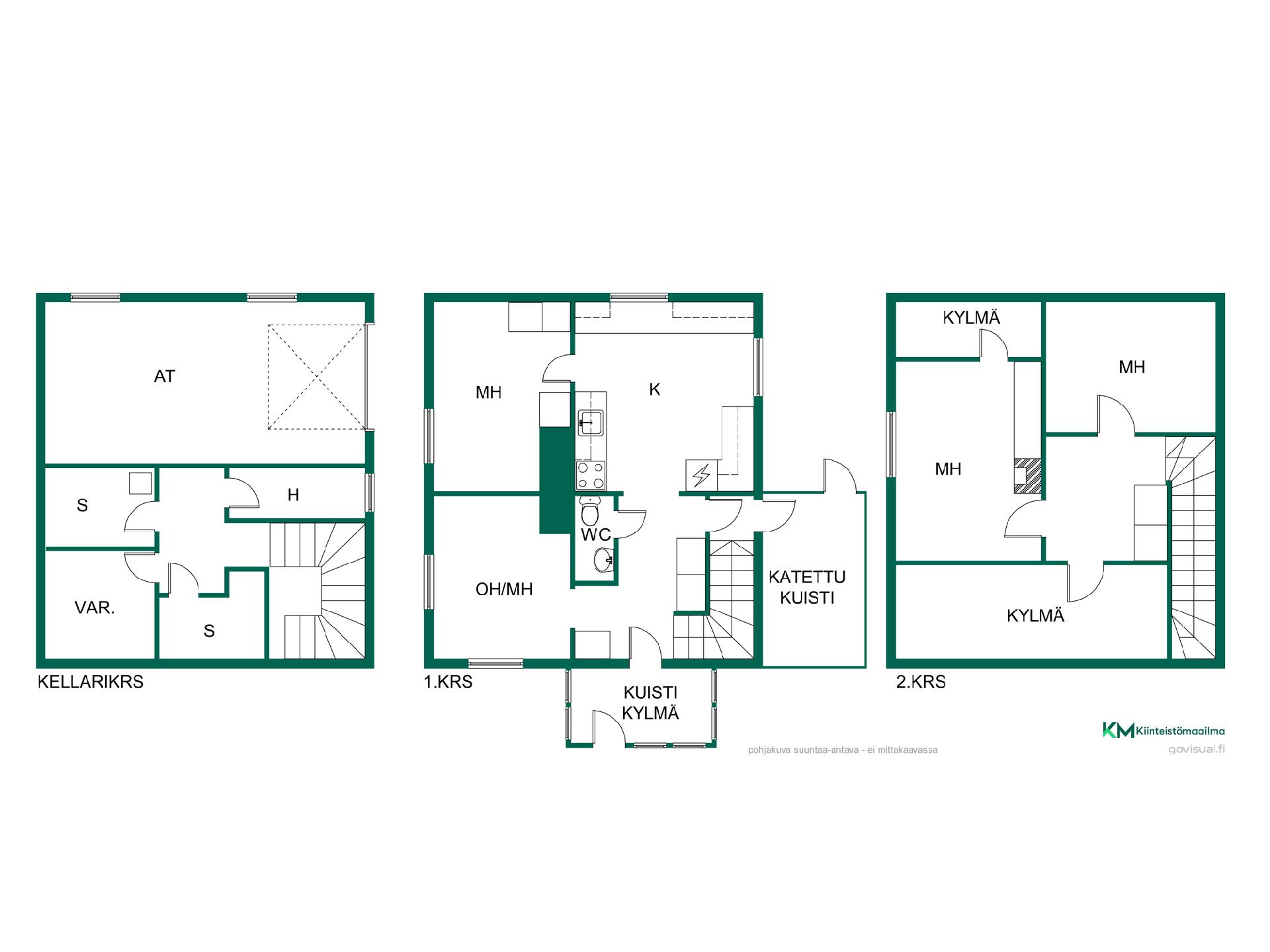
Myydään kodikas ja lämminhenkinen rintamamiestalo rauhallisella sijainnilla aivan Perniönjoen läheisyydessä. Rv. 1956 . Kuntotarkastettu vuonna 2023. Talon asuintilat jakautuvat kolmeen kerrokseen, ja kokonaisuus tarjoaa sekä toimivuutta että paljon mahdollisuuksia remontoijalle. Keskikerroksessa sijaitsevat keittiö, valoisa olohuone, makuuhuone sekä erillinen wc. Yläkerrassa on kaksi tilavaa makuuhuonetta, jotka sopivat hyvin sekä perheen käyttöön että vaikkapa työtiloiksi. Kellarikerros puolestaan tarjoaa runsaasti hyötytilaa: sieltä löytyvät wc, kylpyhuone, sauna sekä runsaasti varasto- ja säilytystilaa. Talon ympärillä avautuu kaunis ja suojaisa 2 400 m²:n oma puutarhatontti, joka tarjoaa rauhallisen ympäristön asumiseen ja monipuoliset mahdollisuudet pihan viihtyisyyden kehittämiseen. Kiinteistö sijaitsee lähellä keskustan palveluita, mutta kuitenkin omassa rauhassaan luonnon ja joen läheisyydessä. Talo on liitetty kunnallistekniikkaan ja myydään saneerauskohteena, joten se sopii täydellisesti ostajalle, joka haluaa remontoida ja muokata kodin juuri omien toiveidensa mukaiseksi. Heti vapaa, soita ja sovi esittely!