Tarjouskauppa

Jarno Kylmänen
yrittäjä, kiinteistönvälittäjä, LKV, LVV
jarno.kylmanen@kiinteistomaailma.fi
puh. 050 594 9330
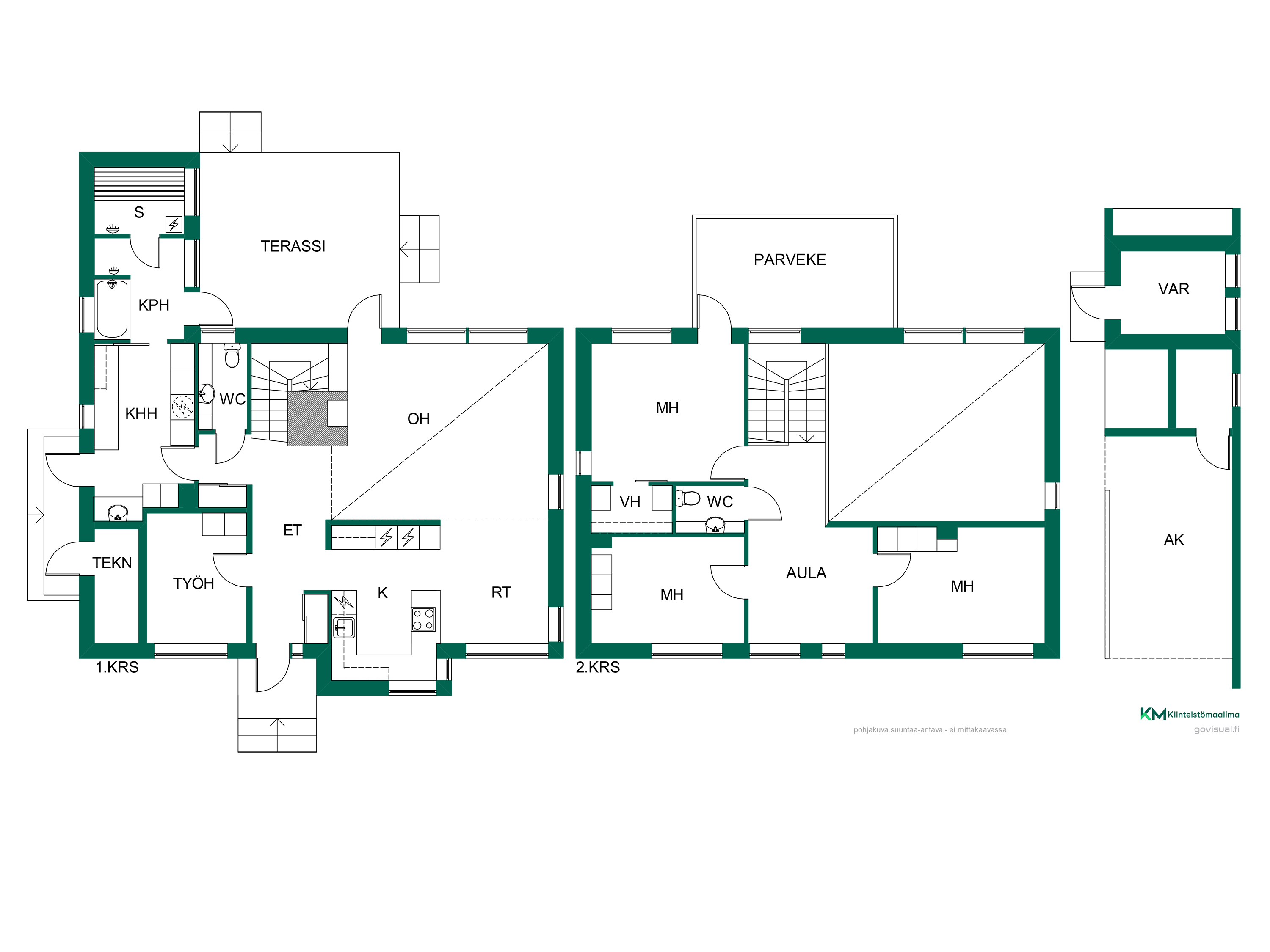
Upea kivirakenteinen omakotitalo Oulunsalossa – laadukasta asumista rauhallisella alueella Tervetuloa tutustumaan tähän hyvin pidettyyn ja monipuoliseen omakotitaloon Oulunsalon halutulla alueella! Vuonna 2004 valmistunut kivirakenteinen koti tarjoaa tilaa ja toimivuutta isommallekin perheelle – asuinpinta-alaa on 146,5 m² ja kokonaisuus on suunniteltu arjen sujuvuutta ajatellen. Kodista löytyy neljä makuuhuonetta, avara olohuone varaavalla takalla, käytännöllinen keittiö sekä arkea helpottavat kodinhoitotilat. Lisäksi kaksi erillistä wc:tä, kylpyhuone ammeella ja sähkösauna tuovat asumiseen mukavuutta. Keittiö on remontoitu vuonna 2020 ja varusteltu nykyaikaisilla kodinkoneilla, joten ruoanlaitto sujuu vaivattomasti. Olohuoneen laadukkaat parkettilattiat sekä korkea kattokorkeus tuo tilaan raikkaan ilmeen. Talon lämmityksestä vastaa energiatehokas kaukolämpö, ja ilmanvaihto toimii koneellisesti lämmöntalteenotolla. Lisäksi valokuituyhteys takaa nopeat nettiyhteydet. Pihapiiri tarjoaa viihtyisät puitteet vapaa-aikaan: lounaaseen avautuva iso terassi ja ulkoporeallas kruunaa kokonaisuuden. Pihalta löytyy myös leikkimökki, autokatos sekä runsaasti varastotilaa. Sijainti on erinomainen – koulut, päiväkoti, kaupat ja harrastusmahdollisuudet ovat kaikki lähellä. Oulun keskustaankin on vain noin 15min ajomatka, ja lentokentälle ajat muutamassa minuutissa. Tule ja ihastu – tämä koti kannattaa nähdä paikan päällä!