Myytävät asunnotOittiRutajärvi
OT1411341OittiEUR249000Riihimäki
104 / 1264h, k, kph/wc (yk), erill. wc, khh (kuraeteinen), vh. Kellarikrs: takkah, psh, s, vierash, wc, tekn. tila

Viertolantie 125, Rutajärvi, Hausjärvi

249 000,00 €Velaton hinta
249 000,00 €Myyntihinta
104Viertolantie 125, Rutajärvi, Hausjärvi
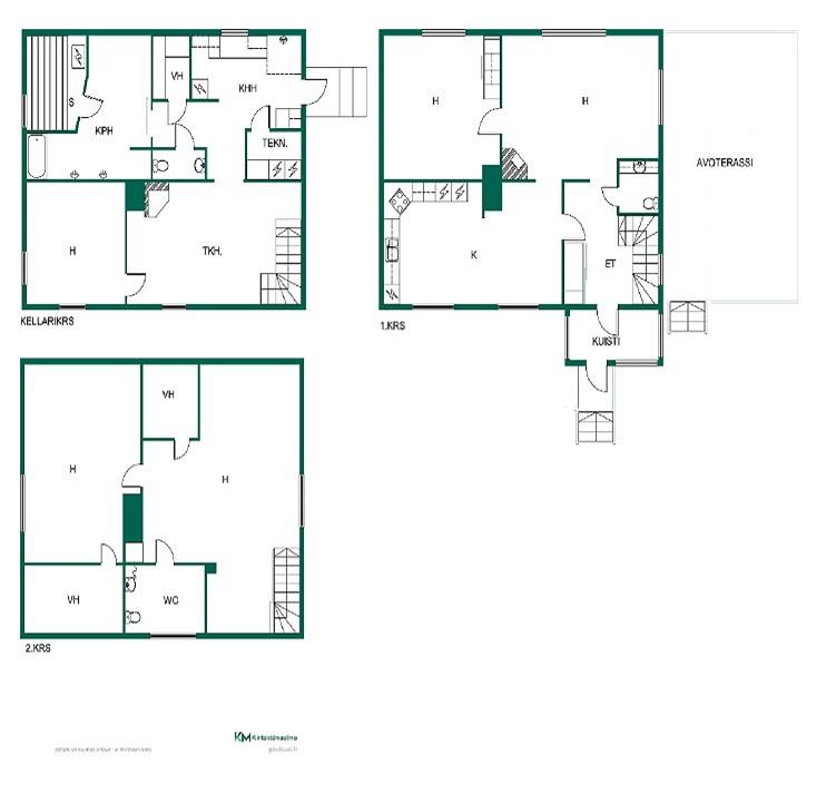
Asunnon pohjakuva
Maalämpötalo maaseudun rauhassa
Maalämpötalo maaseudun rauhassa
Olohuone
Olohuone
Kuisti
Kuisti
Aula
Aula
Aula
Aula
Keittiö
Keittiö
Keittiö
Keittiö
Keittiötä
Keittiötä
Näkymä keittiöstä aulaan
Näkymä keittiöstä aulaan
Olohuone
Olohuone
Olohuonetta
Olohuonetta
Alakerran makuuhuone
Alakerran makuuhuone
Yläkerran WC
Yläkerran WC
Yläkerran aulatila/huone
Yläkerran aulatila/huone
Yläkerran aulatila/huone
Yläkerran aulatila/huone
Yläkerran makuuhuone
Yläkerran makuuhuone
Yläkerran makuuhuone
Yläkerran makuuhuone
Yläkerran kph/wc
Yläkerran kph/wc
Yläkerran kph/wc
Yläkerran kph/wc
Takkahuone on kellarikerroksen ydin
Takkahuone on kellarikerroksen ydin
Huone kellarikerroksessa
Huone kellarikerroksessa
Takkahuonetta
Takkahuonetta
Kodinhoitotila
Kodinhoitotila
Kodinhoitotila
Kodinhoitotila
Kylpyhuone ja löylyhuone
Kylpyhuone ja löylyhuone
Kylpyhuone
Kylpyhuone
Sauna
Sauna
Kellarikerroksen WC
Kellarikerroksen WC
Asuinrakennuksen päädyssä on aurinkoinen ja tilava terassi
Asuinrakennuksen päädyssä on aurinkoinen ja tilava terassi
Pääsisäänkäynti
Pääsisäänkäynti
Asuinrakennuksen lisäksi kiinteistöllä on entinen navetta, autokatos 2 autolle sekä talousrakennus jossa on pidetty mm. kanoja
Asuinrakennuksen lisäksi kiinteistöllä on entinen navetta, autokatos 2 autolle sekä talousrakennus jossa on pidetty mm. kanoja
Autokatos, vieressä varastotiloja
Autokatos, vieressä varastotiloja
Navetan takaosassa on katos vaikkapa traktorille
Navetan takaosassa on katos vaikkapa traktorille
Katson maalaismaisemaa ja ymmärrän...
Katson maalaismaisemaa ja ymmärrän...
Viertolantie 125, Rutajärvi, Hausjärvi
Navetan pesutila
Navetan pesutila
Pilttuut sopivat mm. ponien pitämiseen
Pilttuut sopivat mm. ponien pitämiseen
Navetan varastotilaa
Navetan varastotilaa
Navetan ylisillä on huikeasti tilaa
Navetan ylisillä on huikeasti tilaa
Täällä voi pitää vaikka latotanssit
Täällä voi pitää vaikka latotanssit
Asunnon pohjakuva
Maalämpötalo maaseudun rauhassa
Maalämpötalo maaseudun rauhassa
Olohuone
Olohuone
Kuisti
Kuisti
Aula
Aula
Aula
Aula
Keittiö
Keittiö
Keittiö
Keittiö
Keittiötä
Keittiötä
Näkymä keittiöstä aulaan
Näkymä keittiöstä aulaan
Olohuone
Olohuone
Olohuonetta
Olohuonetta
Alakerran makuuhuone
Alakerran makuuhuone
Yläkerran WC
Yläkerran WC
Yläkerran aulatila/huone
Yläkerran aulatila/huone
Yläkerran aulatila/huone
Yläkerran aulatila/huone
Yläkerran makuuhuone
Yläkerran makuuhuone
Yläkerran makuuhuone
Yläkerran makuuhuone
Yläkerran kph/wc
Yläkerran kph/wc
Yläkerran kph/wc
Yläkerran kph/wc
Takkahuone on kellarikerroksen ydin
Takkahuone on kellarikerroksen ydin
Huone kellarikerroksessa
Huone kellarikerroksessa
Takkahuonetta
Takkahuonetta
Kodinhoitotila
Kodinhoitotila
Kodinhoitotila
Kodinhoitotila
Kylpyhuone ja löylyhuone
Kylpyhuone ja löylyhuone
Kylpyhuone
Kylpyhuone
Sauna
Sauna
Kellarikerroksen WC
Kellarikerroksen WC
Asuinrakennuksen päädyssä on aurinkoinen ja tilava terassi
Asuinrakennuksen päädyssä on aurinkoinen ja tilava terassi
Pääsisäänkäynti
Pääsisäänkäynti
Asuinrakennuksen lisäksi kiinteistöllä on entinen navetta, autokatos 2 autolle sekä talousrakennus jossa on pidetty mm. kanoja
Asuinrakennuksen lisäksi kiinteistöllä on entinen navetta, autokatos 2 autolle sekä talousrakennus jossa on pidetty mm. kanoja
Autokatos, vieressä varastotiloja
Autokatos, vieressä varastotiloja
Navetan takaosassa on katos vaikkapa traktorille
Navetan takaosassa on katos vaikkapa traktorille
Katson maalaismaisemaa ja ymmärrän...
Katson maalaismaisemaa ja ymmärrän...
Viertolantie 125, Rutajärvi, Hausjärvi
Navetan pesutila
Navetan pesutila
Pilttuut sopivat mm. ponien pitämiseen
Pilttuut sopivat mm. ponien pitämiseen
Navetan varastotilaa
Navetan varastotilaa
Navetan ylisillä on huikeasti tilaa
Navetan ylisillä on huikeasti tilaa
Täällä voi pitää vaikka latotanssit
Täällä voi pitää vaikka latotanssit
kiinteistönvälittäjä, LKV, KiAT Auvo Vira

Auvo Vira

kiinteistönvälittäjä, LKV, KiAT

auvo.vira@kiinteistomaailma.fi

puh. 050 325 8382

Maalämpötalo maaseudun rauhassa

  • Paljon tiloja eri käyttötarkoituksiin
  • Upeat ja väljät pesutilat

Maaseudun rauhassa sijaitseva maalämpötalo talousrakennuksineen etsii uusia asukkaitaan. Asuinrakennuksessa on tiloja kolmessa tasossa; keskikerroksessa on keittiön lisäksi 2 makuuhuonetta, yläkerrassa tilavissa makuuhuoneissa löytyy vaatehuoneet. Kuistilla on hyvin tilaa pukeutumiselle. Kellaritiloissa on viehättävä SPA-tyylinen kylpyhuone ammeineen, sauna, viihtyisässä takkahuoneessa varaava takka ja vierashuoneeksikin sopiva huone. Lattiatasoja on kaivettu alas, joten tiloissa on hyvä huonekorkeus. Kaikki lattiapinnat on laatoitettu ja vesikiertoisesti lämmitetyt. Kodinhoitohuoneen uloskäynnin vieressä on kurakaivo lasten varusteiden ja lemmikkien pesua varten sekä kaapistoja ja tilaa pesutornille. Joka kerroksessa on wc, ylimmässä niistä myös suihkukaappi. Käyttövesiputket ovat komposiittia. Rakennuksessa on suoritettu sekä kuntotarkastus että homekoitatutkimus v. 2025. Havaitut puutteet on sisätiloissa korjattu 2026. Rakennuksen länsisivustalla on aurinkoinen terassi. Navettarakennuksessa on runsaasti säilytystiloja, alakerrassa lämmin varasto ja verstas Perinteinen ylinen tarjoaa paljon kylmää säilytystilaa. Vajarakennuksessa on pidetty kanoja. Kaksi autoa saa suojaan viereisen katoksen alle ja navetan takana olevaan katokseen mahtuu vaikka traktori. Kiinteistön pinta-ala on reilu 1,5 hehtaaria, josta osa on peltomaata, jossa voi kasvattaa vaikkapa lampaita tai poneja. Puustoa on hyvin omaan tarpeeseen. Täällä voit olla juuri niin omavarainen kuin haluat. Tämä kokonaisuus pitää nähdä paikan päällä. Varaa siis oma ihasteluaikasi heti!

Sovi esittely

Seuraava esittelyaika ei ole vielä sovittu.
Ota yhteyttä ja sovi henkilökohtainen esittely!

Myymälä

Kiinteistömaailma Riihimäki(Saranen LKV Oy)Keskuskatu 13, 11100 Riihimäki045 216 4472
Lue lisää

Kiinteistön tiedot

Kohdenumero1411341
TalotyyppiOmakotitalo
RakennusmateriaaliPuu
SijaintiViertolantie 125, 12100 Oitti
KaupunginosaRutajärvi
Huoneluku4h, k, kph/wc (yk), erill. wc, khh (kuraeteinen), vh. Kellarikrs: takkah, psh, s, vierash, wc, tekn. tila
Asuinpinta-ala104 m², ei tarkastusmitattu
Kokonaispinta-ala126 m²
Kerroksia2 + kellari
Rakennusvuosi1959
Käyttöönottovuosi1958
KäyttövesiPorakaivo
JätevesihuoltoSaostuskaivo 2 kpl, betonia, tiivis pohja. Navetan jätevedet johdettu suoraan maastoon.
Lämmitysjärjestelmä ja sen kuntoMaalämpö, vesikiertoinen patterilämmitys keskikerroksen makuuhuoneessa, keittiössä ja yläkerran tiloissa. Vesikiertoinen lattialämmitys muissa asuintiloissa paitsi kellarin vierashuoneessa. Puu (kaksi varaavaa tulisijaa).
IlmanvaihtojärjestelmäPainovoimainen, khh:ssa poistoilmapuhallin
KattotyyppiHarjakatto
KatePelti
Tehdyt kunnostukset ja peruskorjaukset2000 - 2003 vesikatto uusittu, ikkunat uusittu, yläkerta lämpöeristetty, julkisivu maalattu, sähköt uusittu keskikerrokseen. 2003 - 2005 alakerran lämmöneristys ja vedeneristys ulkopuolelta, lisätty salaojat, kaivon vedenpumppaus uusittu, terassi talon päätyyn, siirtyminen sähköstä maalämpöön, maalämpöputkistojen asennus ja pihan nurmetus uusittu, asennettu rännit, syöksytorvet ja talotikkaat, ulko-ovet uusittu, perustuksia syvennetty 40 cm, alapohja eristetty ja betonoitu, sähköistyksistä uusittu n. 80 %, alakerran muutos asuintiloiksi (vanha kellari, liiteri ja sauna, tilalle sauna, pesuhuone, vaatehuone, kodinhoitotila, takkahuone, wc, työhuone ja tekninen tila, muutokselle ei löydy rakennuslupaa), kaikki kellarin lattia- seinä ja kattopinnat pinnoitettu uudelleen, takan muuraus, portaikko välikerrokseen ja yläkertaan uusittu, keittiön, välikerroksen makuuhuoneen, eteisen ja wc:n kiintokalusteet ja laatoitus uusittu, takka-leivinuunin muuraus, yläkerran tilat ja lämmöneristys viimeistelty, navettarakennuksen sähköt uusittu, tehty EU-standardin mukainen lantala, joka sittemmin täytetty hiekalla, nykyisin traktorikatos. Maalämpöpumppu huollettu 2025. Homekoiratutkimuksesa v. 2025 havaitut puutteet ja viat korjattu vaaditulla tavalla tammi-helmikuussa 2026 (dokumentaatio välittäjällä).
EnergiatehokkuusluokkaC2018
Huoneiston kuntoHyvä
VapautuminenViimeistään 1 kuukauden kuluttua kaupanteon jälkeen

Tontti

Tontin pinta-ala1.524 ha
Tontin omistusOma
KaavoitusEi kaavaa
Rakennusoikeus600 m² Rakennuspaikalle rakennettavien rakennusten yhteenlaskettu kerrosala saa olla enintään 15 prosenttia rakennuspaikan pinta-alasta ja enintään 600 m².
Rannan tyyppiEi tiedossa
Muut tontilla olevat rakennuksetNavetta, autokatos, kasvihuone
AutopaikkaAutokatos kahdelle autolle.
Piha-alueetNurmikkoa ja peltomaata, metsämaata n. 0,6 ha
Maapohjan pinta-ala1.524 ha

Varustus

KeittiöJääkaappi, pakastekaappi, erillisuuni- ja taso (keraaminen), liesisuodatin, astianpesukone (2025), leivinuuni (olohuoneen takassa)
SaniteettitilatPesuhuone, 2 suihkua, kph/wc:ssä suihkukaappi, 2 erill. wc:tä, sauna, sähkökiuas (vuolukivi), amme, kylpyhuonekaapisto khh:ssa, pesukoneliitäntä khh:ssa, lattialämmitys vesikiertoinen, khh:ssa suihkuallas (uloskäynti, kuraeteinen), peilit, peilikaappi
Muuta kauppaan kuuluvaaYläkerran vaatekaappi, Hästens-parisänky, pesutorni, naulakko, lämminvesivaraaja, ilmalämpöpumppu (navetassa), takka (2 kpl, varaava), hälytys-/valvontajärjestelmä (vaatii oman sopimuksen), pihavarusteet: kaasugrilli, viinikaappi, markiisi, ulkokalusteet, jätesäiliö, istutukset.
LaajakaistayhteysTelia 5G
TelevisioliitäntäYleisantenni
SäilytystilatKaapistot, vaatehuone x 3, varastot talousrakennuksissa

Tilat, materiaalit ja varustus

Keittiön lattiaLauta
Kylpyhuoneen lattiaLaatta, myös wc-tiloissa
Olohuoneen lattiaLaminaatti
Makuuhuoneen lattiaLaminaatti
Muut huoneetKuisti: laattalattia, takkahuone: laattalattia

Sijainti kartalla

Hinta- ja asumiskustannukset

Myyntihinta249 000,00 €
Velkaosuus0,00 €
Velaton hinta249 000,00 €
Lämmityskulut, muu kuin sähkö (myyjän arvio)Polttopuita oman kulutuksen mukaan. Nyk. käyttö vähäistä.
Lämmityskulut ja taloussähkö (myyjän arvio)14000 kWh/v (sisältää myös navetan varastotilan ja verstaan lämmityssähkön).
Jätehuolto (myyjän arvio)Oman kulutuksen mukaan, nyt 30 euroa/kk, tyhjennysväli 2 viikkoa
Vesi- ja jätevesi (myyjän arvio)Saostuskaivojen tyhjennys 2 krt/v, yht. n 260 €
Tiemaksut (myyjän arvio)Rutajärventien thk 114 €/v, Viertolantien thk 56 €/v
Kiinteistövero238 € v. 2026

Liikenneyhteydet ja palvelut

LähipalvelutPuujoen uimaranta (n. 10 km)
KoulutOitissa (n. 7.4 km)
PäiväkotiOitissa (n. 7.7 km)
LiikenneyhteydetOitin junaseisake (n. 8.2 km)
RuokakaupatOitissa (n. 7.6 km)

Lisätiedot

AsuntomyymäläKiinteistömaailma Riihimäki
Saranen LKV Oy, Keskuskatu 13, 11100, Riihimäki
Puh. 045 216 4472
Lähetä sähköpostia
VälittäjäOma välittäjäsi
Ilmoitusta on katsottu50 kertaa
Vastuullista välittämistä