Myytävät asunnotOittiOitti
OT1407575OittiEUR99000Riihimäki
88,34h, k, psh, s, vh et

Töytynmäentie 6, Oitti, Hausjärvi

99 000,00 €Velaton hinta
99 000,00 €Myyntihinta
88.3Töytynmäentie 6, Oitti, Hausjärvi
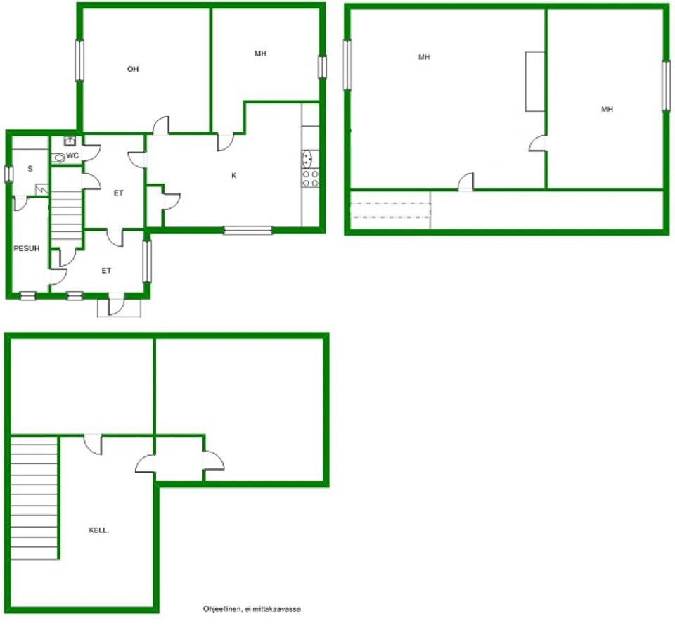
Asunnon pohjakuva
Tervetuloa Töytynmäentielle
Tervetuloa Töytynmäentielle
Keittiö
Keittiö
Oma tontti on kooltaan 1435 m²
Oma tontti on kooltaan 1435 m²
Eteinen. Lattia on laminaattia
Eteinen. Lattia on laminaattia
Näkymä kuistilta eteisaulaan
Näkymä kuistilta eteisaulaan
Kulku kuistilta pesutiloihin
Kulku kuistilta pesutiloihin
Keittiö
Keittiö
Keittiö
Keittiö
Keittiössä on v. 2020 asennettu ilmalämpöpumppu
Keittiössä on v. 2020 asennettu ilmalämpöpumppu
Varaava takka asennettiin v. 2018
Varaava takka asennettiin v. 2018
Kylpyhuoneessa on ikkuna, oikealla paikka pesukoneelle
Kylpyhuoneessa on ikkuna, oikealla paikka pesukoneelle
Pesutilat on vesieristetty ja laatoitettu 2023
Pesutilat on vesieristetty ja laatoitettu 2023
Puusauna päivitettiin 2023
Puusauna päivitettiin 2023
Erillisen wc:n remontti valmistui 2024
Erillisen wc:n remontti valmistui 2024
Olohuone
Olohuone
Olohuone
Olohuone
Yläkertaan johtava portaikko
Yläkertaan johtava portaikko
Mh 2
Mh 2
Mh 2
Mh 2
Mh 3
Mh 3
Mh 3
Mh 3
Hyvin hoidetun talon vesikate uusittiin  2007 ja julkisivu huoltomaalattiin 2019
Hyvin hoidetun talon vesikate uusittiin 2007 ja julkisivu huoltomaalattiin 2019
Piha-aluetta. Koira-aitaus on neuvoteltavissa.
Piha-aluetta. Koira-aitaus on neuvoteltavissa.
Kesän vehreyttä
Kesän vehreyttä
Vasemmassa ylälaidassa näkyvä tie johtaa tie 54:lle ja Oitin keskustaan, molempiin 1- 2 km.
Vasemmassa ylälaidassa näkyvä tie johtaa tie 54:lle ja Oitin keskustaan, molempiin 1- 2 km.
Kiinteistöllä on reilusti käyttämätöntä rakennusoikeutta
Kiinteistöllä on reilusti käyttämätöntä rakennusoikeutta
Asunnon pohjakuva
Tervetuloa Töytynmäentielle
Tervetuloa Töytynmäentielle
Keittiö
Keittiö
Oma tontti on kooltaan 1435 m²
Oma tontti on kooltaan 1435 m²
Eteinen. Lattia on laminaattia
Eteinen. Lattia on laminaattia
Näkymä kuistilta eteisaulaan
Näkymä kuistilta eteisaulaan
Kulku kuistilta pesutiloihin
Kulku kuistilta pesutiloihin
Keittiö
Keittiö
Keittiö
Keittiö
Keittiössä on v. 2020 asennettu ilmalämpöpumppu
Keittiössä on v. 2020 asennettu ilmalämpöpumppu
Varaava takka asennettiin v. 2018
Varaava takka asennettiin v. 2018
Kylpyhuoneessa on ikkuna, oikealla paikka pesukoneelle
Kylpyhuoneessa on ikkuna, oikealla paikka pesukoneelle
Pesutilat on vesieristetty ja laatoitettu 2023
Pesutilat on vesieristetty ja laatoitettu 2023
Puusauna päivitettiin 2023
Puusauna päivitettiin 2023
Erillisen wc:n remontti valmistui 2024
Erillisen wc:n remontti valmistui 2024
Olohuone
Olohuone
Olohuone
Olohuone
Yläkertaan johtava portaikko
Yläkertaan johtava portaikko
Mh 2
Mh 2
Mh 2
Mh 2
Mh 3
Mh 3
Mh 3
Mh 3
Hyvin hoidetun talon vesikate uusittiin  2007 ja julkisivu huoltomaalattiin 2019
Hyvin hoidetun talon vesikate uusittiin 2007 ja julkisivu huoltomaalattiin 2019
Piha-aluetta. Koira-aitaus on neuvoteltavissa.
Piha-aluetta. Koira-aitaus on neuvoteltavissa.
Kesän vehreyttä
Kesän vehreyttä
Vasemmassa ylälaidassa näkyvä tie johtaa tie 54:lle ja Oitin keskustaan, molempiin 1- 2 km.
Vasemmassa ylälaidassa näkyvä tie johtaa tie 54:lle ja Oitin keskustaan, molempiin 1- 2 km.
Kiinteistöllä on reilusti käyttämätöntä rakennusoikeutta
Kiinteistöllä on reilusti käyttämätöntä rakennusoikeutta
kiinteistönvälittäjä, LKV, KiAT Auvo Vira

Auvo Vira

kiinteistönvälittäjä, LKV, KiAT

auvo.vira@kiinteistomaailma.fi

puh. 050 325 8382

Hoidettu omakotitalo Hausjärven Oitissa

  • Saniteettitilat ja sauna remontoitu 2023 - 2024
  • Oma vehreä tontti, jolla hyvin käyttämätöntä rakennusoikeutta
  • Pihakaivo pihakasteluun

Kodikas v. 1957 käyttöönotettu rintamamiestalo Oitin keskustan tuntumassa on vapautumassa. Asuintiloja on kahdessa kerroksessa. Sähkölämmitystä avustavat varaava Nunnauunin vuolukivitakka vuodelta 2018 sekä ilmalämpöpumppu vuodelta 2020. Varastotiloja on sekä kellaritiloissa että pihapiirissä olevassa talousrakennuksessa, joka tosin kaipaa jonkin verran huoltoa. Tontti on oma ja pinta-alaltaan 1435 m², missä on käytettävissä rengaskaivo pihakasteluun. Yhteisistä hetkistä perheesi voi nauttia aurinkoisella terassilla ja valmistaa grilliherkut pihan tiiligrillissä. Pihapiiri on suojainen, rajoilla mm. kuusi-ja tuija-aita. Asuinrakennusta on päivitetty monelta osin, mm. julkisivut v. 2005, vesikatto aluskatteineen v. 2007, kylpyhuone ja puusauna v. 2023. Voit muuttaa sisään ilman suurempia remonttihuolia. Sadevedet on ohjattu turvallisesti etäälle rakennuksesta. Kaupat, koulut ja muut palvelut junaseisake mukaan lukien ovat keskustassa 1 - 1,5 km päässä. Lahteen ja Riihimäelle vievälle valtatie 54:lle ajat muutamassa minuutissa. Ota yhteyttä ja tule katsomaan, onko tämä sinun perheesi uusi koti.

Sovi esittely

Seuraava esittelyaika ei ole vielä sovittu.
Ota yhteyttä ja sovi henkilökohtainen esittely!

Myymälä

Kiinteistömaailma Riihimäki(Saranen LKV Oy)Keskuskatu 13, 11100 Riihimäki045 216 4472
Lue lisää

Kiinteistön tiedot

Kohdenumero1407575
TalotyyppiOmakotitalo
RakennusmateriaaliPuu
SijaintiTöytynmäentie 6, 12100 Oitti
KaupunginosaOitti
Huoneluku4h, k, psh, s, vh et
Asuinpinta-ala88.3 m², ei tarkastusmitattu
Kerroksia1 ½
Käyttöönottovuosi1958
KäyttövesiKunnan, rengaskaivo pihakasteluun (veden laatua ja riittävyyttä ei ole tutkittu)
JätevesihuoltoKunnan
Lämmitysjärjestelmä ja sen kuntosähkö (patterit), puu (varaava takka), ilmalämpöpumppu
IlmanvaihtojärjestelmäPainovoimainen
KattotyyppiHarjakatto
KatePelti
Tehdyt kunnostukset ja peruskorjauksetIkkunat uusittu 2001, ulkolaudoitus ja tuulensuojalevyt 2005, vesikatto aluskatteineen ja ruoteineen uusittu 2007, kattokourut ja syöksytorvet 2011, takan ja saunan piipun pellitys ja hattu 2015, kattotikkaat, kulkusillat ja lumiesteet 2017, julkisivu huoltomaalattu 2019, rakennettu terassi 2020, ilmalämpöpumppu v. 2020, pesuhuoneen laatoitus ja saunan remontti 2023. WC laatoitettu ja asennettu uusi wc-istuin 2024. Yläkerrassa eristetty seinät levytetty/tapetoitu, asennettu lattialaminaatti ja katot paneloitu.
EnergiatehokkuusluokkaD2018
Huoneiston kuntoTyydyttävä
VapautuminenViimeistään kaksi kuukautta kaupanteon jälkeen

Tontti

Tontin pinta-ala1435 m²
Tontin omistusOma
KaavoitusAsemakaava
Rakennusoikeus0.25 e Ao eli erillispientalojen korttelialue
Rannan tyyppiEi tiedossa
Maapohjan pinta-ala1435 m²

Varustus

KeittiöJääkaappi/pakastin, erillisuuni- ja taso (keraaminen), astianpesukone, kaapistot, lipasto, kiinteät valaisimet, varaava takka, liesituuletin (asenn. 5/2024), työtasot laminaattia
SaniteettitilatKylpyhuone, suihku, pesukoneliitäntä, kiinteät valaisimet, erillinen wc, puusauna, peilit (wc:ssä)
Muuta kauppaan kuuluvaaKiinteät valaisimet, verhotangot, sälekaihtimet (olohuoneessa), naulakko, ilmalämpöpumppu, takka (varaava, Nunna Uuni), lämminvesivaraaja, jätesäiliö, pihavarusteet, tiiligrilli

Tilat, materiaalit ja varustus

Keittiön lattiaVinyyli
Kylpyhuoneen lattiaLaatta, wc:ssä muovi
Olohuoneen lattiaVinyyli
Makuuhuoneen lattiaAlakerrassa vinyyli, yläkerrassa laminaatti

Sijainti kartalla

Hinta- ja asumiskustannukset

Myyntihinta99 000,00 €
Velkaosuus0,00 €
Velaton hinta99 000,00 €
Lämmityskulut, muu kuin sähkö (myyjän arvio)Polttopuita n. 10m³ vuodessa (nykyisellä omistajalla).
Lämmityskulut ja taloussähkö (myyjän arvio)12500 kWh/v (nykyisellä omistajalla).
Jätehuolto (myyjän arvio)Oman kulutuksen mukaan
Vesi- ja jätevesi (myyjän arvio)5,22 €/m³ + perusmaksu
Kiinteistövero86 €/ v. 2023

Liikenneyhteydet ja palvelut

LähipalvelutTerveysasema (n. 1.3 km)
KoulutAlakoulu (n. 1.5 km)
PäiväkotiLähin (n. 1 km)
LiikenneyhteydetJunaseisake (n. 1 km)
RuokakaupatKeskustassa (n. 1.2 km)

Lisätiedot

AsuntomyymäläKiinteistömaailma Riihimäki
Saranen LKV Oy, Keskuskatu 13, 11100, Riihimäki
Puh. 045 216 4472
Lähetä sähköpostia
VälittäjäOma välittäjäsi
Ilmoitusta on katsottu149 kertaa
Vastuullista välittämistä