
Elina Perhonmäki
kiinteistönvälittäjä, YKV, LKV
elina.perhonmaki@kiinteistomaailma.fi
puh. 050 544 3282
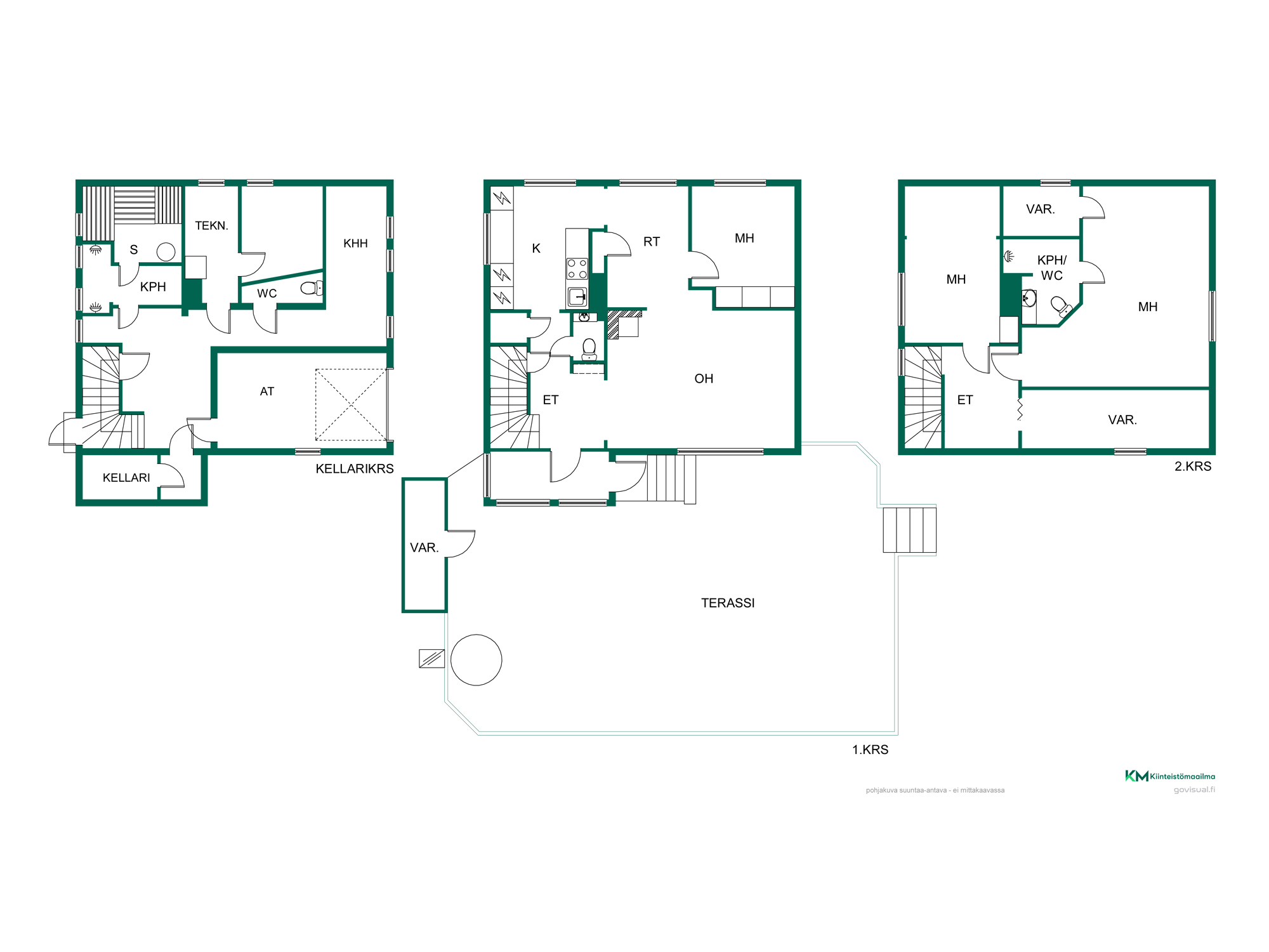
AJAN HENKEÄ SÄILYTTÄEN PERUSKORJATTU KOTI Tämä kolmen kerroksen koti sijaitsee luonnonkauniilla ja keskeisellä paikalla. Lähipalvelut ovat kävelymatkan päässä, ja kadun päästä alkavat polut Ruutanan luonnonsuojelualueelle. Myös Siuronkosken ja Kuloveden maisemat ovat aivan lähellä. Kaikki asuinkerrokset on perusteellisesti remontoitu. Keskikerroksessa on tilava olohuone varaavalla takalla ja ilmalämpöpumpulla. Olohuoneesta kuljetaan ruokailuhuoneen kautta keittiöön, ja matkan varrella on yksi makuuhuone. Ruokailuhuoneessa tunnelmaa luo tiiliseinä ja komero, keittiö puolestaan vastaa tämän päivän vaatimuksia. Yläkerrassa on kaksi makuuhuonetta, joista päämakuuhuoneessa ilmalämpöpumppu, iso vaatehuone, kotiteatterijärjestelmä sekä upea kylpyhuone kahdella altaalla, wc:llä ja suihkulla. Kellarikerros on myös peruskorjattu. Aulassa on pieni baaritiski varusteena vesipiste ja allas, kaapisto ja mediajärjestelmällä, laatoitettu aulatila jatkuu päättyen kodinhoitotilaan, missä reilusti varasto- ja työtilaa. Saunassa komeat muotolauteet ja puulämmitys, tunnelma on kohdillaan, sitä täydentää saunaan saakka ulottuva audio-/videoyhteys. Kellarissa vielä tekninen tila, varastotilaa sekä käynti autotalliin. Wc löytyy kaikista kerroksista. Remontin yhteydessä on uusittu mm. käyttövesiputket, katto, ikkunat, salaojat ja sähkökeskus. Sisäänkäynnin yhteydessä on noin 60 m² terassi valokatteen, porealtaan ja puuvaraston kera. Lisäksi tontilta löytyy 35 m2 ulkovarasto. Tervetuloa tutustumaan - täällä on helppo viihtyä, iso aidattu piha-alue, palvelut lähellä sekä monimuotoinen luonto, ulkoilureitit, puistot ja uudet kuntoiluportaat. Esittelyt sopimuksen mukaan