Tarjouskauppa

Helena Kittilä
ylempi kiinteistönvälittäjä, LKV, YKV
helena.kittila@kiinteistomaailma.fi
puh. 050 310 6783
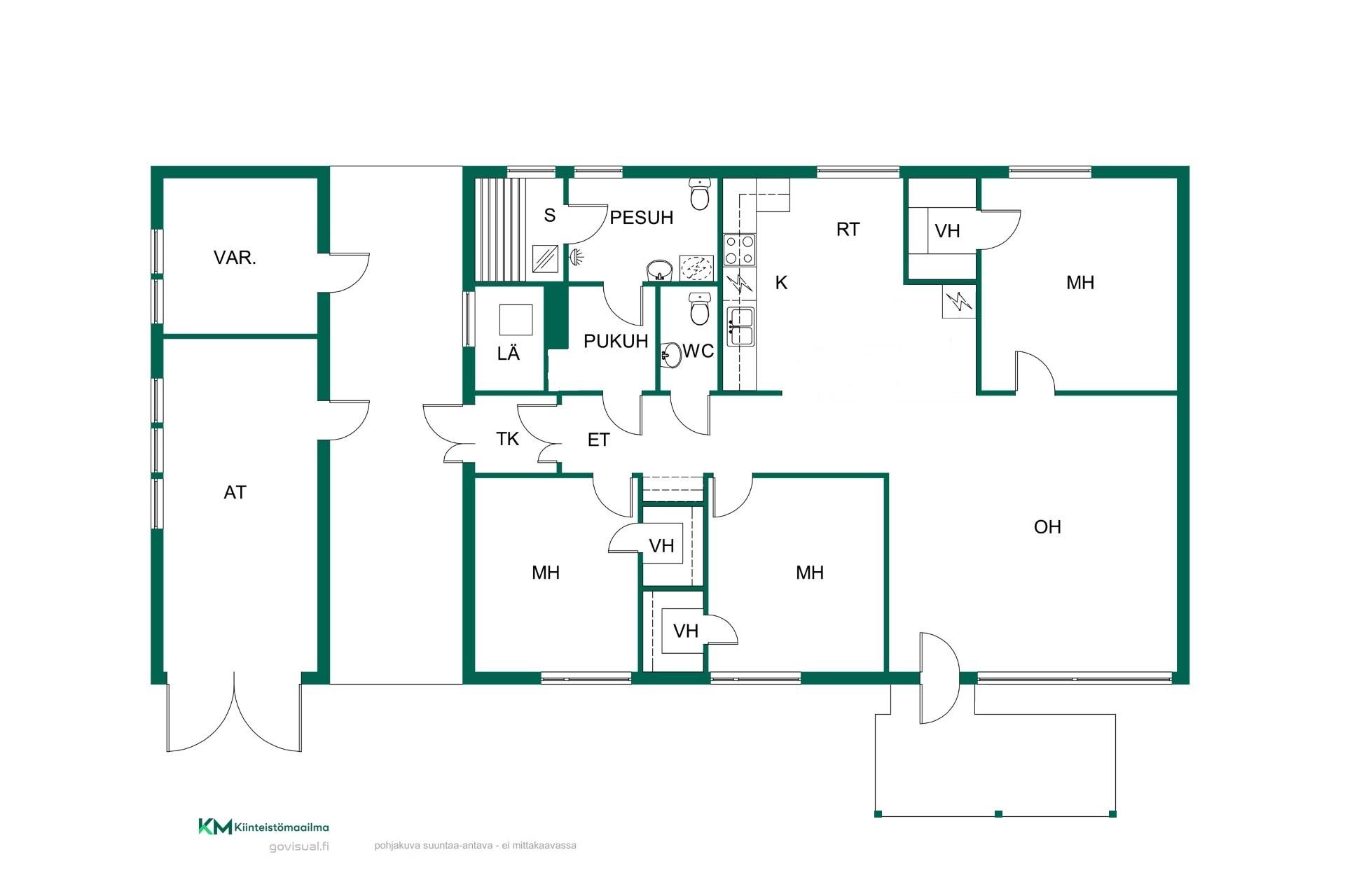
Rauhallisella alueella sijaitseva remontoitava omakotitalo omalla tontilla etsii uutta omistajaa! Tässä kodissa yhdistyvät tilavuus ja mahdollisuudet. Valoisa olohuone ja 2000-luvun alussa uusittu keittiö, joka avautuu osittain olohuoneeseen, luovat viihtyisän kokonaisuuden. Olohuoneessa ja käytävällä katseenvangitsijana toimii upea paneloitu katto. Kolme makuuhuonetta tarjoavat runsaasti tilaa – jokaisessa on oma vaatehuone. Kattomuutos on tehty 1990-luvun alussa, ja autotalliin sekä varastoon pääset kätevästi katoksen kautta. Tämä kohde sopii remonttitaitoiselle, joka haluaa luoda unelmakodin, tai vaihtoehtoisesti tontiksi uudelle talolle – rakennusoikeutta on noin 300 m². Sijainti on erinomainen: koulu ja päiväkoti ovat aivan lähellä, ja keskustan palvelut vain alle kahden kilometrin päässä. Ota yhteyttä, niin sovitaan esittely ja pääset katsomaan tämän tarkemmin. Kiinteistömaailman Tarjouskaupassa tarjoukset tehdään lähtöhinnasta ylöspäin.