Myytävät asunnotLaunonenLaunonen
OT1407551LaunonenEUR58000Riihimäki
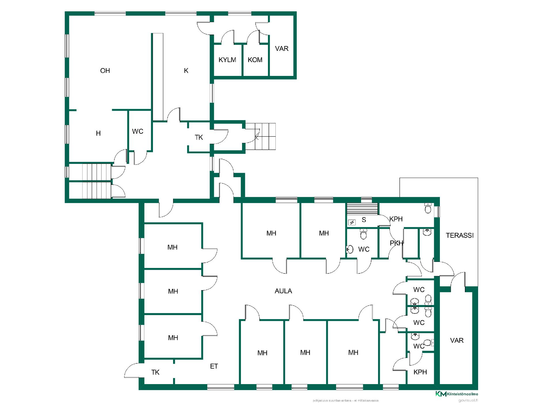
413 / 41312h, k, s, psh, pukuh, 5wc, aulatila, kellaritila

Kartanontie 20, Launonen, Loppi

58 000,00 €Velaton lähtöhinta
58 000,00 €Lähtöhinta ilman velkaosuutta

Tarjouskauppa

413Kartanontie 20, Launonen, Loppi
Asunnon pohjakuva
Kartanontie 20, Launonen, Loppi
Kartanontie 20, Launonen, Loppi
Kartanontie 20, Launonen, Loppi
Asunnon pohjakuva
Kartanontie 20, Launonen, Loppi
Kartanontie 20, Launonen, Loppi
Kartanontie 20, Launonen, Loppi
kiinteistönvälittäjä, LKV, AIT Maire Sainio

Maire Sainio

kiinteistönvälittäjä, LKV, AIT

maire.sainio@kiinteistomaailma.fi

puh. 0400 484 998

Monimuotoiseen toimintaan

  • Hyvät kulkuyhteydet

Lopen Launosten keskuksessa tilava monimuotoiseen toimintaan soveltuva kiinteistö. Valmiudet perhekodiksi tai hoivakodiksi. Hyvät yhteydet moottoritielle. Matkaa kehä 3 vain 45 minuuttia. Ota yhteyttä ja sovitaan esittely!

Sovi esittely

Seuraava esittelyaika ei ole vielä sovittu.
Ota yhteyttä ja sovi henkilökohtainen esittely!

Myymälä

Kiinteistömaailma Riihimäki(Saranen LKV Oy)Keskuskatu 13, 11100 Riihimäki045 216 4472
Lue lisää

Kiinteistön tiedot

Kohdenumero1407551
TalotyyppiOmakotitalo
RakennusmateriaaliPuu
SijaintiKartanontie 20, 12540 Launonen
KaupunginosaLaunonen
Huoneluku12h, k, s, psh, pukuh, 5wc, aulatila, kellaritila
Kokonaispinta-ala413 m²
Kerroksia2+kellari
Rakennusvuosi1948
Käyttöönottovuosi1948
KäyttövesiKunnan
JätevesihuoltoKunnan
Lämmitysjärjestelmä ja sen kuntoSähkölämmitys, ilmalämpöpumppu, sähköinen lattialämmitys (psh, s), sähköpatterilämmitys
IlmanvaihtojärjestelmäKoneellinen poisto
KattotyyppiHarjakatto ja pulpetti
KatePelti ja huopa
EnergiatehokkuusluokkaEi lain edellyttämää energiatodistusta
Huoneiston kuntoTyydyttävä
VapautuminenHeti

Tontti

Tontin pinta-ala2540 m²
Tontin omistusOma
KaavoitusAsemakaava
Rakennusoikeus0.4 e
Rannan tyyppiEi tiedossa
AutopaikkaAutotallirakennus (rv 1988, puurunko/pelti, pulpettikatto/pelto, kokonaisala 50 m²
Maapohjan pinta-ala2540 m²

Varustus

KeittiöKodinkoneet ikääntyneitä: keraaminen liesitaso, astianpesukone, pakastearkku
SaniteettitilatSauna, sähkökiuas, 5kpl wc, suihku, kiinteät valaisimet, pesukoneliitäntä
Muuta kauppaan kuuluvaaLämminvesivaraaja

Tilat, materiaalit ja varustus

Kylpyhuoneen lattiaLaatta
Muut huoneetAsuinhuoneissa muovilattiaa sekä laminaattia

Sijainti kartalla

Hinta- ja asumiskustannukset

Lähtöhinta ilman velkaosuutta58 000,00 €
Velkaosuus0,00 €
Velaton lähtöhinta58 000,00 €
Lämmityskulut ja taloussähkö (myyjän arvio)ei tietoa
Kiinteistöveron. 1211 €/v

Liikenneyhteydet ja palvelut

Koulutlähin alakoulu (n. 0.3 km)
Päiväkotilähin (n. 0.1 km)
Liikenneyhteydetlinja-auto (n. 0.1 km)
Ruokakaupatlähin (n. 0.1 km)

Lisätiedot

AsuntomyymäläKiinteistömaailma Riihimäki
Saranen LKV Oy, Keskuskatu 13, 11100, Riihimäki
Puh. 045 216 4472
Lähetä sähköpostia
VälittäjäOma välittäjäsi
Ilmoitusta on katsottu190 kertaa
Vastuullista välittämistä