
Annukka Hyttinen
kiinteistönvälittäjä, LKV, KED, KiAT
annukka.hyttinen@kiinteistomaailma.fi
puh. 050 565 1162
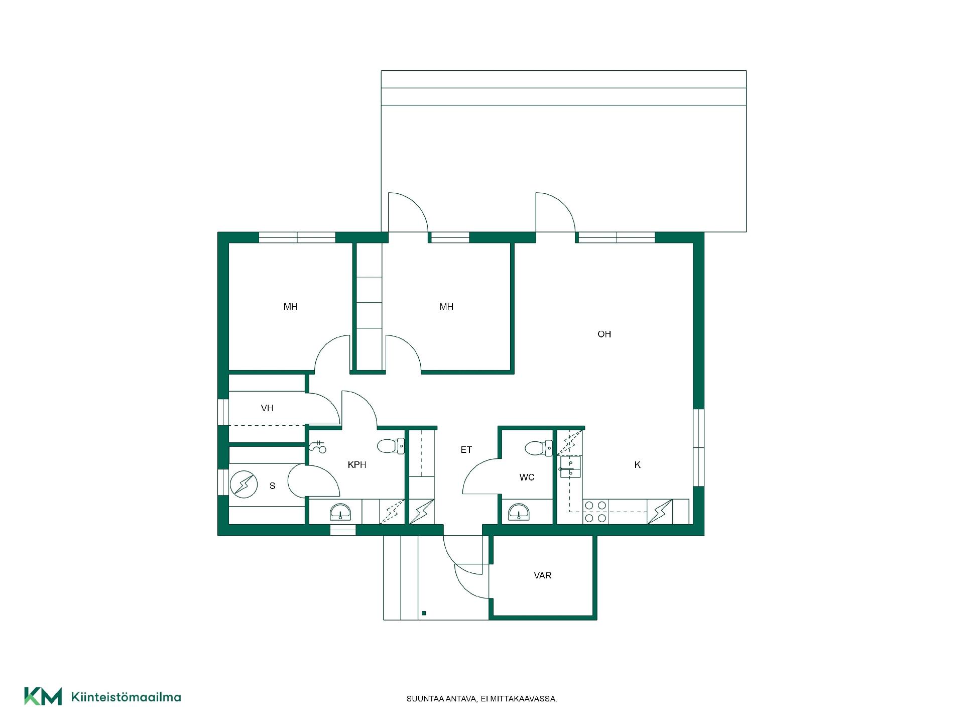
Moderni ja valoisa kolmio Kytölän rauhassa lähellä uimarantaa Tervetuloa kotiin, jossa yhdistyvät vaivaton arki ja luonnonläheinen sijainti. Tämä vuonna 2021 valmistunut puurakenteinen koti Kytölässä tarjoaa viihtyisät puitteet laadukkaaseen elämään. Alasenjärven uimaranta sijaitsee vain noin 200 metrin päässä, mikä mahdollistaa pulahduksen kirkasvetiseen veteen milloin vain. Lähialueen palvelut, kuten päiväkodit ja julkinen liikenne, tekevät arjesta sujuvaa ja helppoa. Tämä 72-neliöinen koti on suunniteltu arjen toimivuutta silmällä pitäen. Selkeä pohjaratkaisu tekee tilojen hyödyntämisestä vaivatonta, ja yhtenäiset vinyylilattiat luovat asuntoon raikkaan ja harmonisen yleisilmeen. Keittiö on varustettu nykyaikaisella tekniikalla, kuten induktioliedellä ja astianpesukoneella, tehden ruoanlaitosta nautinnollista. Olohuoneesta on suora yhteys omalle terassille, joka kutsuu nauttimaan rauhallisista hetkistä ulkoilmassa. Kodissa on panostettu viihtyvyyteen ja tekniikkaan: oma sauna tarjoaa pehmeät löylyt, ja sähköinen lattialämmitys lisää asumismukavuutta vuoden ympäri. Ilmalämpöpumppu pitää sisälämpötilan miellyttävänä niin kesähelteillä kuin talvipakkasillakin. Säilytystilaa löytyy vaatehuoneesta, kaapistoista sekä erillisestä ulkovarastosta. Lisäksi käyttöullakko tarjoaa kätevää lisätilaa kodin tarpeisiin. Kiinteistö sijaitsee vuokratontilla, ja käytössä on hallinnanjakosopimus. Rakennus on toteutettu koneellisella ilmanvaihdolla ja lämmön talteenotolla, mikä tukee energiatehokasta asumista. Tämä koti on erinomainen valinta sinulle, joka arvostat uudehkoa kuntoa, huoletonta asumista ja mahdollisuutta laajentaa tilaa tulevaisuudessa, sillä tontilla on vielä rakennusoikeutta jäljellä. Tämä koti on nähtävä paikan päällä – varaa oma esittelyaikasi ja tule ihastumaan tähän moderniin helmeen Lahden Kytölässä!