
Päivi Metsälä
kiinteistönvälittäjä, LKV, KED, KiAT
paivi.metsala@kiinteistomaailma.fi
puh. 040 716 1788
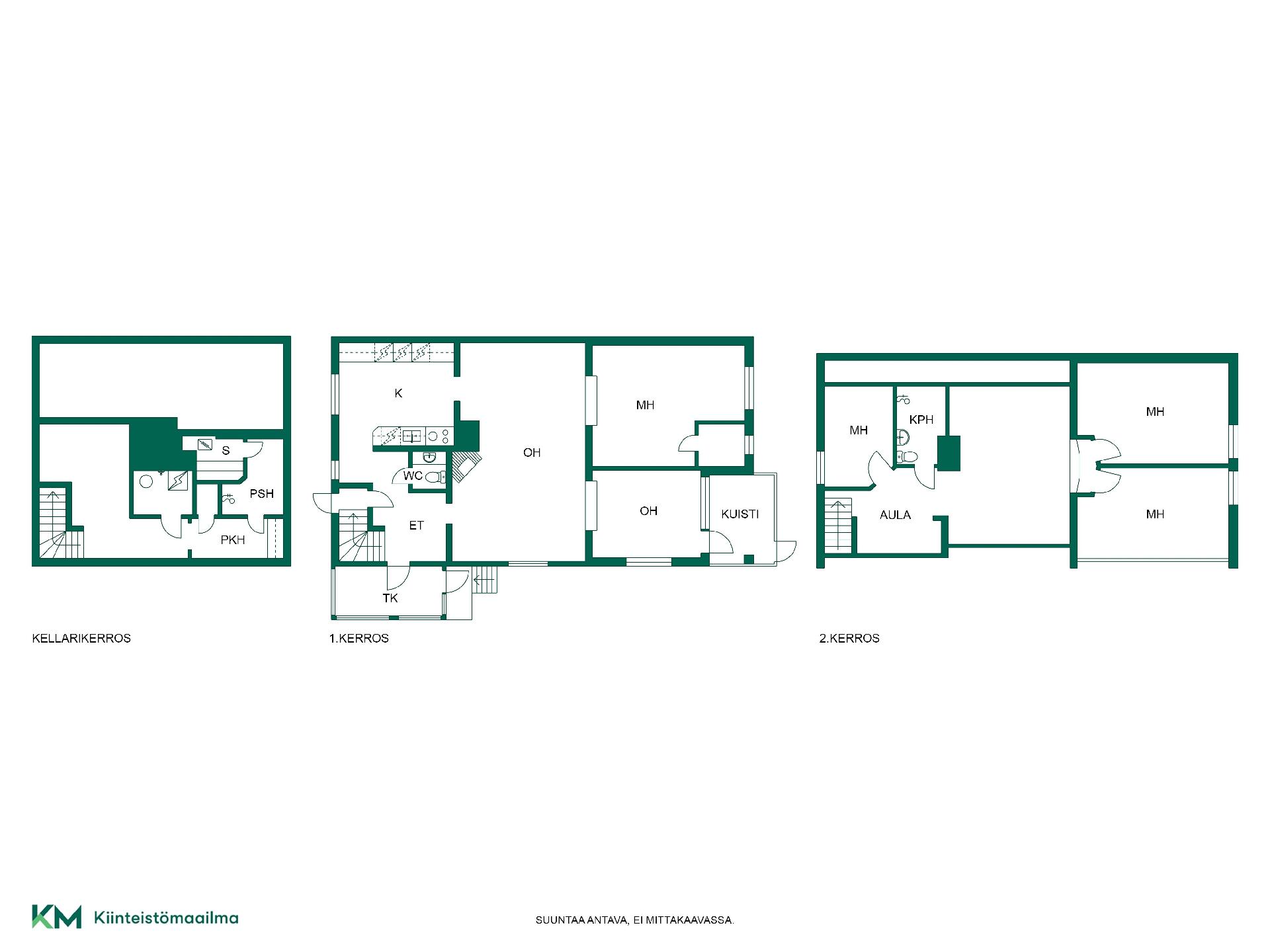
Tämä koti on aidosti ihana, lämminhenkinen ja viihtyisä! Kolmikerroksinen kokonaisuus tarjoaa runsaasti neliöitä ja toimivia ratkaisuja isommallekin perheelle, mutta ennen kaikkea kodin, jossa on hyvä olla. Katutasossa kodin sydän sykkii, keittiö ja olohuone kutsuvat viettämään aikaa yhdessä ja tilava makuuhuone tarjoaa rauhallisen paikan lepoon. Harrastehuone avaa mahdollisuuksia monenlaiseen tekemiseen. Huoneesta käynti katetulle terassille jossa voit nauttia kesäilloista pitkälle syksyyn. Yläkerrassa tunnelma jatkuu rauhallisena ja kodikkaana. Aula yhdistää kolme makuuhuonetta, joissa jokaisella on oma paikkansa. Kylpyhuonetilan amme tarjoaa hetken hengähdyksen kiireen keskellä. Pohjakerroksen saunaosasto on täydellinen paikka rentoutua päivän päätteeksi. Lisäksi täällä on kodinhoitohuone ja pieni työtila. Koti on hyvin pidetty eikä remonttihuolia ole, joten voit keskittyä elämiseen. Sijainti Launeella on erinomainen – rauhallinen, mutta palvelut ja yhteydet ovat lähellä. Tämä koti hurmaa tunnelmallaan ja persoonallisuudellaan, tule ihastumaan! Ensiesittely sunnuntaina 1.2. klo 14-15