
Reijo Pellikka
ylempi kiinteistönvälittäjä, LKV, YKV
reijo.pellikka@kiinteistomaailma.fi
puh. 050 374 7666
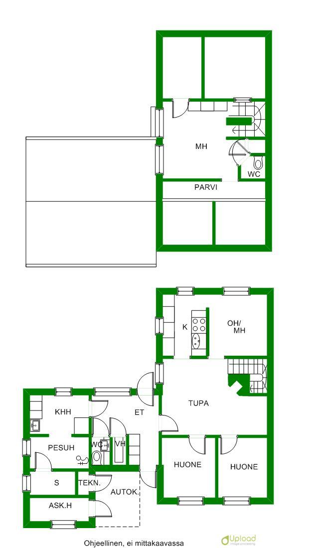
Hieno uusi koti perheellesi edulliseen hintaan! Tilava suuremmallekin perheelle sopiva talo ja todella paljon saneerattu. Helppohoitoinen tontti autokatoksineen ja piharakennuksineen. Talossa kaksi erillistä wc:tä, tilava kodinhoito-kylpyhuone ja keittiötä uusittu koneineen. Varaava takka ja kaukolämpö antavat hyvin edulliset asiumiskulut. Tämä on todellinen tilaisuus, joten otathan minuun yhteyttä sopiaksemme oman esittelyaikasi!