
Harri Kalliovalkama
yrittäjä, toimitusjohtaja, LKV, KiAT
harri.kalliovalkama@kiinteistomaailma.fi
puh. 0445044507
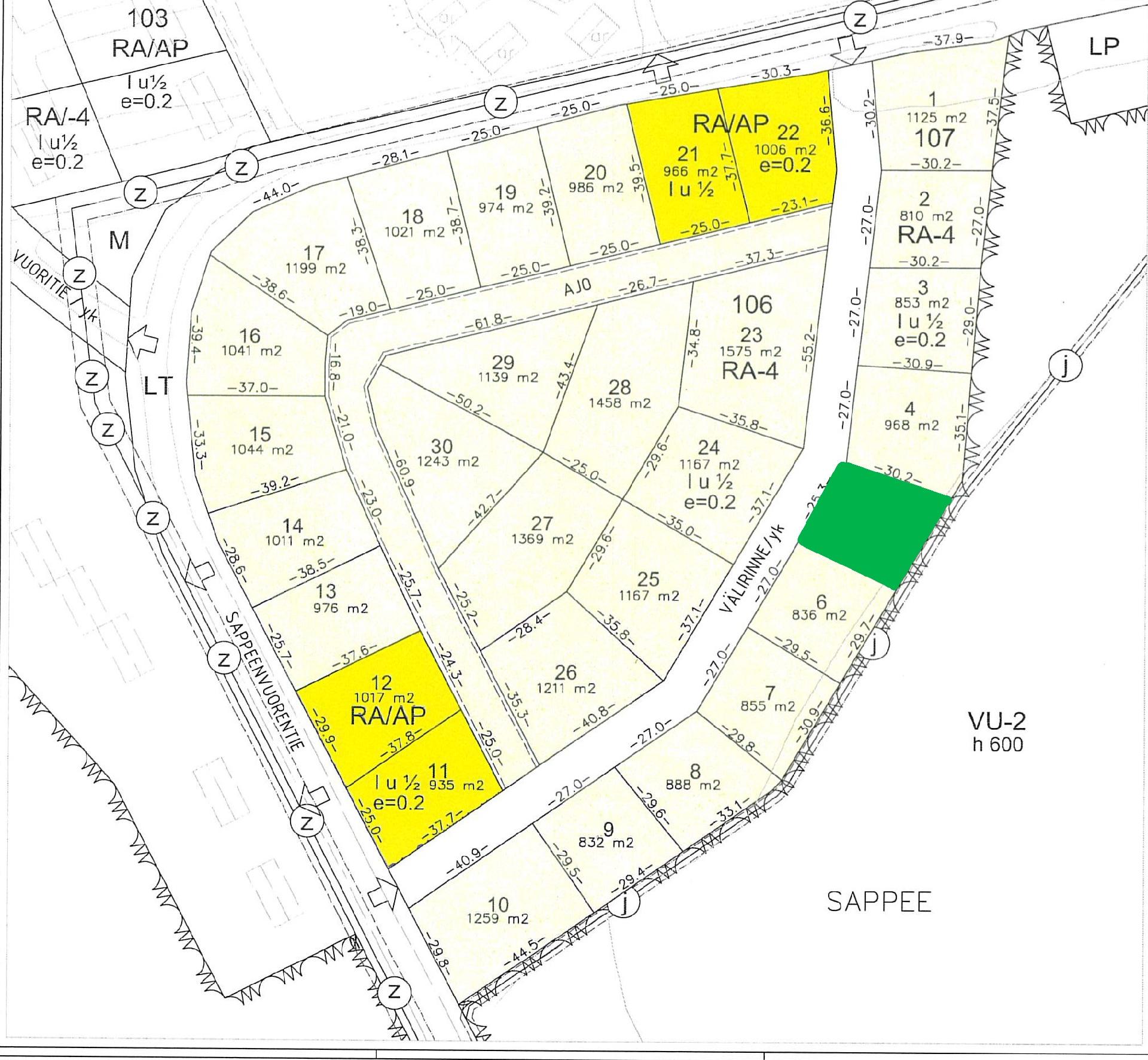
Toteuta oma unelmasi Sappeen Matkailukeskuksessa! Sappee Resort on ympäri vuoden toimiva palkittu aktiivi-ihmisen vapaa-ajanviettopaikka! Nyt sinulla on mahdollisuus rakennuttaa urakkasopimuksella oma Honka-mökkisi Sappee Resortin uudelle mökkialueelle, joka sijaitsee keskeisellä paikalla mäen päällä. Alue, joka on huolellisesti suunniteltu. Alueella on jo valmiina uudet Aurora Villas -mökit, Hongan hirrestä tehtyjä nämäkin. Honka Funktio 106 on yksitasoinen hirsimökki, jossa on 3 makuuhuonetta ja tilaa jopa 8 hengelle majoittumiseen. Mökki soveltuu hyvin omaan ja/tai vuokrauskäyttöön. Hongan käyttämä hirsi on kestävästi kasvatettua puuta, ekologisin rakennusmateriaali. Luonnon oma, hengittävä materiaali, uusiutuva raaka-aine, toteuttaa kestävän kehityksen ja luonnon monimuotoisuuden periaatteita. Toimii tehokkaana hiilivarastona koko elinkaarensa ajan. Paikallisesti tuotettu, kierrätettävä, kestää jopa vuosisatoja. Mökki rakennetaan yhteistyössä Honkarakenteen ja Prusin Rakennuspalvelu Oy:n kanssa. Ostat tontin Sappee Resortilta ja solmit urakkasopimuksen Prusin Rakennuspalvelu Oy:n kanssa. Urakkasopimuksen solmimisen yhteydessä on mahdollista tehdä lisämaksusta muutoksia (esim lämmitysjärjestelmään) ja hankkia itselle tärkeitä lisäominaisuuksia (esim takka, ulkoporeamme). Lisätietoja Sappee Resortista ja Sappee Resortin harrastusmahdollisuuksista löydät: www.sappee.fi Lisätietoja Honkarakenteen mökeistä ja materiaaleista löydät: www.honka.fi Lisätietoja Prusin Rakennuspalvelu Oy:stä: www.prusi.fi Ota yhteyttä, niin käydään katsomassa paikan päällä, ja halutessasi pääset myös tutustumaan viereen rakennettuun Aurora Villas -mökkiin.