
Kirsi Uosukainen
myyntijohtaja, kiinteistönvälittäjä , LKV
kirsi.uosukainen@kiinteistomaailma.fi
puh. 040 582 7015
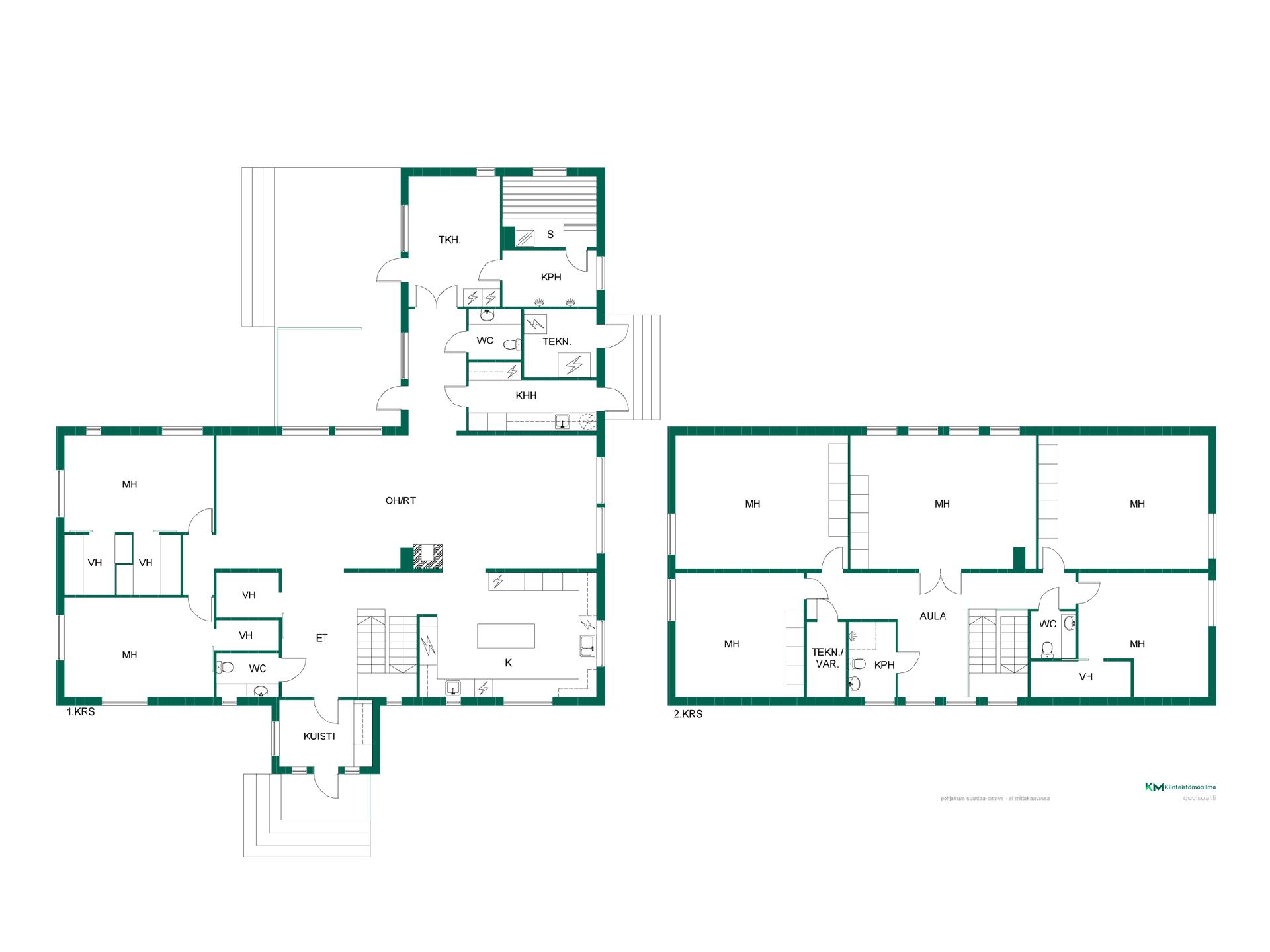
Huoleton ja laadukas 2022 valmistunut Kastellitalo oheisrakennuksineen. Paikka soveltuu kodiksi, vapaa-ajan kodiksi tai yrittäjähenkiselle monenmoiseen käyttötarkoitukseen. Tämä huikea kokonaisuus koostuu kolmesta tilasta yhteensä 7902 m2. Kaksikerroksinen Kastellin toimittama ja rakentama talo 315/356m2 on valmistunut omistajien suunnitelmien mukaisena. Lämmönlähteenä maalämpö (vesikiertoinen lattialämmitys), ilmalämpöpumput, takka/leivinuuni ja takkahuoneessa kevyttakka. Tiloina keittiö, ruokailutila/olohuone, 7 makuuhuonetta, takkahuone, kodinhoitohuone, pesuhuone, sauna, lasitettu terassi, 3 erillistä wc:tä, wc/kph, 2 aulaa, eteinen, 5 vaatehuonetta, varasto, tekninen tila. Laadukas Puustellin keittiö on jokaisen kotikokin unelma valmiiksi mietittyine ratkaisuineen. Autokatoksesta löytyy tilaa kahdelle autolle ja lukittu tila jossa voi säilyttää golfautoa, moottoripyörää tai mönkijää. Ulkorakennus on vuodelta 1949 ja se on remontoitu ulkokattoa myöten. Tiloista löytyy verstasta, kuntoiluhuonetta, kesähuonetta ja varastotilaa. Pihapiirissä on monipuolinen kesäkeittiörakennus, palju, kasvihuone puutarhaharrastajalle ja leikkimökki. Tainionvirran rannalla on kärrysauna ja laituri. Ihana uimapaikka puhataan virran äärellä. Syvyyttä löytyy kuusi metriä virrassa ja leveyttä neljäkymmentä metriä. Melomalla Tainiovirtaa ylävirtaan vastaan tulee Jääsjärvi. Alavirtaan meloessa päädyt lopulta Päijänteelle. Hartolan kirkonkylän monipuoliset palvelut ovat kaikki lähellä ja golfharrastajalle laadukas kenttä muutaman sadan metrin päässä. Talvella valmiiksi ajetut hiihtoladut kodin nurkalta unohtamatta ratsastustalleja. Varaa oma esittelyaika.