
Aija Harainen
ylempi kiinteistönvälittäjä, YKV, LKV, LVV, KiAT, kaupanvahvistaja
aija.harainen@kiinteistomaailma.fi
puh. 050 362 4000
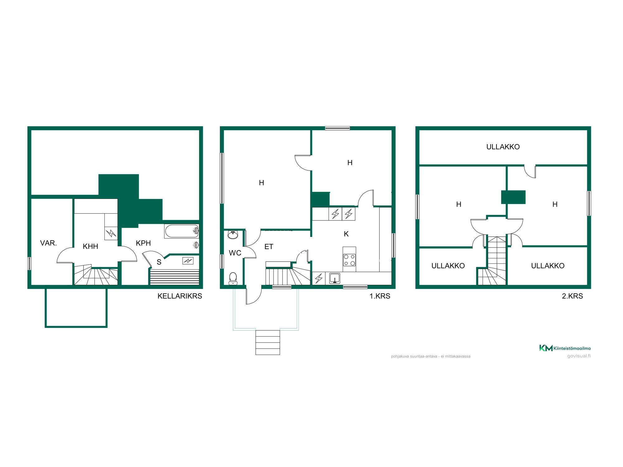
Tervetuloa Notkotielle Hämeenlinnan Hätilään! Kuvankauniilla vehreällä 1651 m² omalla tontilla sijaitsee muuttovalmis viihtyisä ja huolella remontoitu koti. Tätä kotia on rakkaudella ja perusteellisesti remontoitu laajasti 2008-2012 välisenä aikana. Muunmuassa julkisivu, ikkunat, salaojat, putket, pääosa sähköistä, keittiö ja pesutilat on tuolloin uusittu. Kodin tilat jakautuvat kolmeen kerrokseen tarjoten monipuolisesti tilaa asumiseen ja tämä koti myös muuntautuu tarvittaessa elämäntilanteen mukaan. Keskikerrokseen astut sisään tämän kodin tunnelmalliselle verannalle ja eteisen hyvät säilytysratkaisut helpottavat arkea. Keskikerroksessa sijaitsevat myös kodin wc, tilava olohuone, todella kaunis keittiö ja makuuhuone, joka toimii tarvittaessa myös ruokailuhuoneena. Yläkerrassa on kaksi hyvänkokoista makuuhuonetta ja todella hyvin säilytystilaa. Kellarikerros kätkee sisäänsä tyylikkään kylpyhuoneen, saunan sekä kodinhoitohuoneen. Pesutilat ja kodinhoitohuone on remontoitu perusteellisesti kapilaarikatko huomioiden. Tämän kodin pihapiiri on omaa luokkaansa, sillä valtava tontti antaa tilaa puutarhanhoidolle ja vapaa-ajan vietolle. Pihalla sijaitsee myös erillinen talousrakennus, joka tarjoaa runsaasti varastotilaa. Talousrakennuksessa on myös vanha pihasauna, jonka voit halutessasi remontoida takaisin käyttöön! Hätilän asuinalue on rauhallinen, rintamamiestaloista tunnettu alue, joka sijaitsee lähellä kouluja, päiväkoteja, kauppoja, rautatieasemaa, sekä luontoa. Tämä kaunis koti etsii nyt uusia asukkaita. Tule tutustumaan tähän kokonaisuuteen paikan päälle ja ihastu! Ota yhteyttä ja sovitaan esittely!