
Anne Kuiri
yrittäjä, uudiskohdevastaava, ylempi kiinteistönvälittäjä, KTM
anne.kuiri@kiinteistomaailma.fi
puh. 040 821 1213
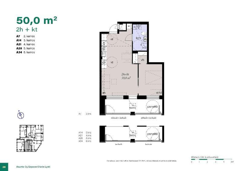
Tarjolla muuttovalmis, ylimmän kerroksen kaunis, uusi huoneisto! Yhtiö on valmistunut vuonna 2023 ja sijaitsee omalla tontillaan hyvien liikenneyhteyksien ja Keskuspuiston ulkoilumaastojen läheisyydessä. Uudiskoti on valoisa ja tilava, keittiö ja olohuone yhdistyvät maniosti toisiinsa luoden yhtenäisen oleskelutilan. Makuuhuoneen jatkeena on iso vaatehuone. Huoneiston levyinen parveke antaa lisätilaa asumiselle. Hoitovastike on kohtuullinen ja yhtiö on hyvin rauhallinen. Huoneistossa on ilmalämpöpumppu viilennykseen sekä vesikiertoinen lattialämmitys. Autohallipaikka on ostettavissa erikseen. Sovi oma esittelysi ja tule katsomaan!