
Päivi Blom-Rinne
myyntipäällikkö, kiinteistönvälittäjä, YKV, LKV, KiLat
paivi.blom@kiinteistomaailma.fi
puh. 045 238 9335
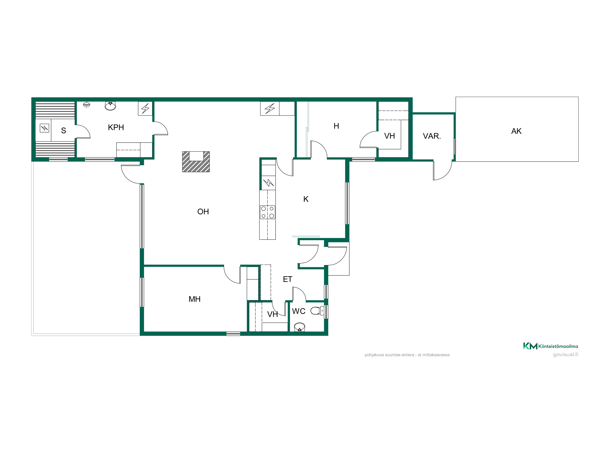
Aurinkoinen paritalo Vihattulassa aivan Tampereen rajalla – omaa rauhaa ja yhteisranta! Vihattulan luonnonläheisessä ympäristössä odottaa päättyvän tien varressa koti, jossa arki tuntuu helpolta ja viihtyisältä. Tämä muuttovalmis paritaloasunto sijaitsee yhtiössä, jossa on vain kaksi asuntoa – selkeää ja huoletonta asumista, sillä molemmat päädyt vastaavat omista kuluistaan. Kodin sydän on avara olohuone, johon avokeittiö tuo tilan tuntua ja mahdollisuuden viettää aikaa yhdessä. Takkahuone on avattu olohuoneeseen tuomaan lisätilaa yhteiseen oleskeluun. Saunomisesta nauttivalle mökkimäinen löylyhuone tarjoaa rentouttavat löylyt ja pääset vilvoittelemaan suurelle aurinkoiselle terassille, jossa on mukava nauttia kesäpäivistä. Takapiha avautuu auringon puolelle, joten valo ja lämpö ovat taattuja. Kodissa on kaksi vaatehuonetta, erillinen wc sekä autokatos, joka suojaa autoa säältä. Varaava takka ja ilmalämpöpumppu tuovat sekä tunnelmaa että energiatehokkuutta. Lisäetuna asunnolla on yhteisranta Teivaalan, Mettistön ja Vihattulan kesken – ranta, jossa voit viettää kesäpäiviä uiden ja auringosta nauttien. Rannassa on myös mahdollisuus pitää omaa venettä ja sillä pääset muutamassa minuutissa Näsijärvelle. Vihattula tarjoaa myös monipuoliset ulkoilureitit, pyöräilymahdollisuudet ja vesistöt. Teivaalan, Mettistön ja Teivon harrastusmahdollisuudet täydentävät kokonaisuuden. Lielahden kattavat ja monipuoliset palvelut löytyvät viiden minuutin matkan päästä! Tämä koti sopii sinulle, joka arvostat tilaa, omaa rauhaa ja luonnonläheisyyttä, mutta haluat silti pysyä lähellä palveluita. Ota yhteyttä ja sovi esittely – tämä voi olla juuri sinun unelmiesi koti.