
Pasi Bergqvist
yrittäjä, kiinteistönvälittäjä LKV, kaupanvahvistaja
pasi.bergqvist@kiinteistomaailma.fi
puh. 040 120 5010
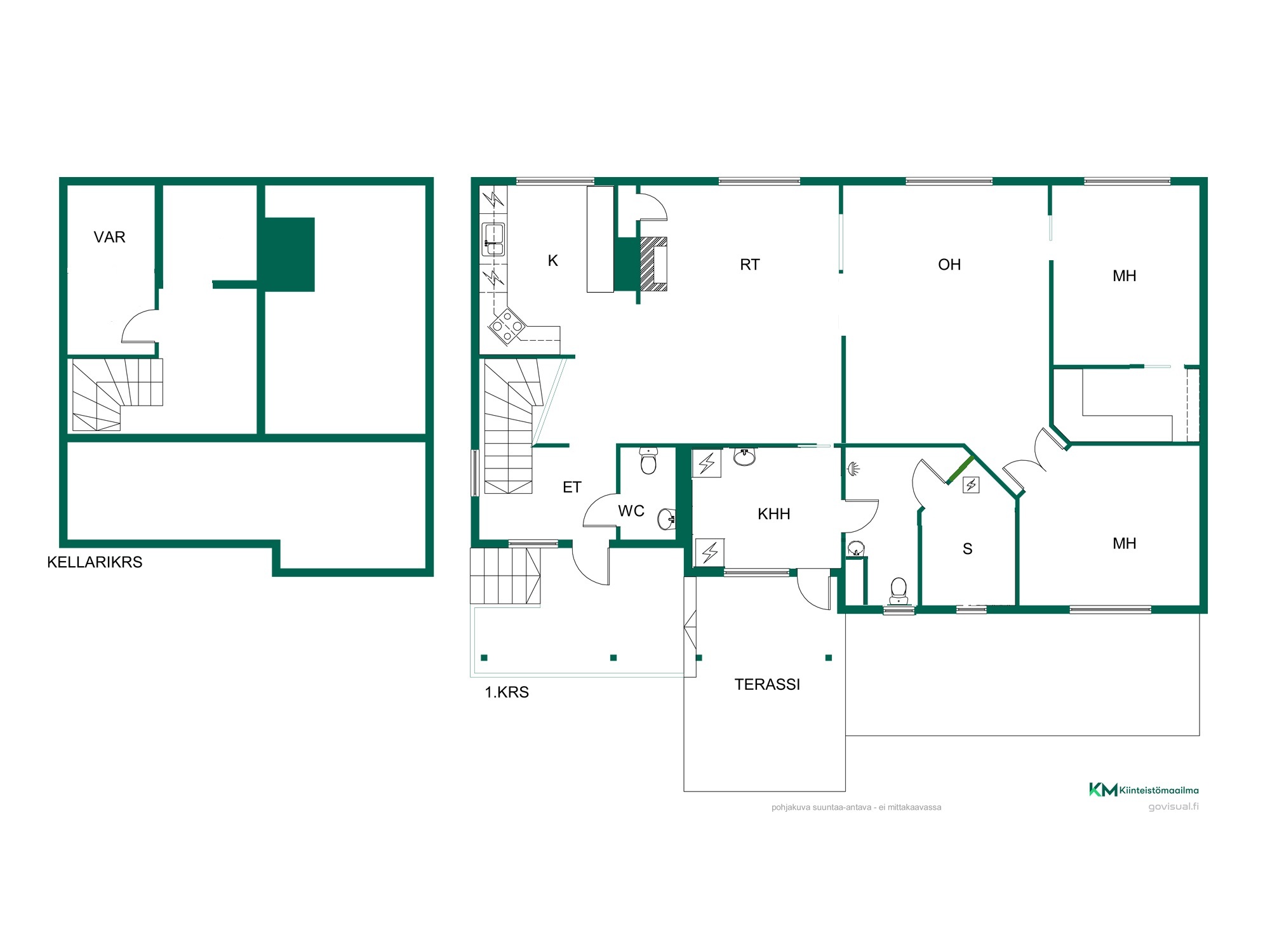
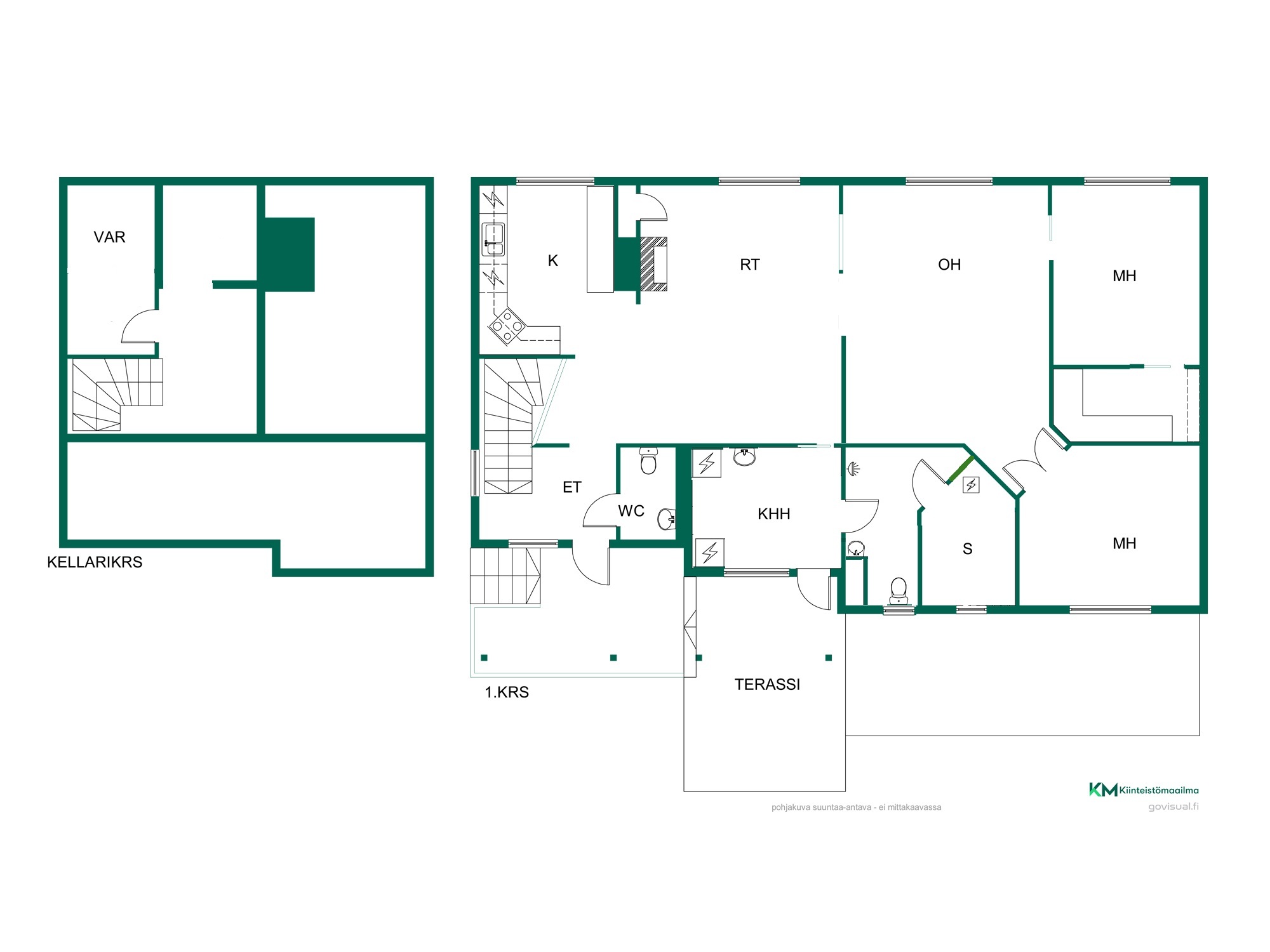
Alun perin vuonna 1951 rakennettu koti on vuosien varrella kokenut useita mittavia remontteja – viimeisimpänä 2023 valmistunut laajennus. Vaikka taloa onkin laajennettu, rakennusoikeutta on vielä jäljellä, jos olemassa olevat tilat ei riitä. Tänä päivänä se tarjoaa modernit asumisen mukavuudet tyylikkäästi ajan henkeä kunnioittaen. Kiinteistössä on uusittu ikkunat, sähköt, vesi- ja viemäröintijärjestelmät, vaihdettu vanhat eristeet, muutettu kattomuoto sekä uusittu julkisivu. Lattialämmitys ja vesi-ilmalämpöpumppu tuovat asumiseen sekä mukavuutta että energiatehokkuutta. Talossa on upeita tapetteja ja hienoja yksityiskohtia. Suojaisa tontti kutsuu viihtymään ympäri vuoden. Tontti on aidattu kauttaaltaan, joten se sopii erinomaisesti vaikka koiraharrastajalle. Pihapiiristä löytyy upea ulkosauna, jossa löylyt tuntuvat erityisen rentouttavilta sekä käytännöllinen varastorakennus arjen tarpeisiin. Tämä koti on täydellinen valinta sinulle, joka arvostat laadukkaasti remontoitua kokonaisuutta, omaa rauhaa ja toimivia tilaratkaisuja – valmiina tarjoamaan uuden tarinan seuraaville asukkailleen.