
Mia Berggren
myyntijohtaja, kiinteistönvälittäjä, LKV
mia.berggren@kiinteistomaailma.fi
puh. 0400 799 707
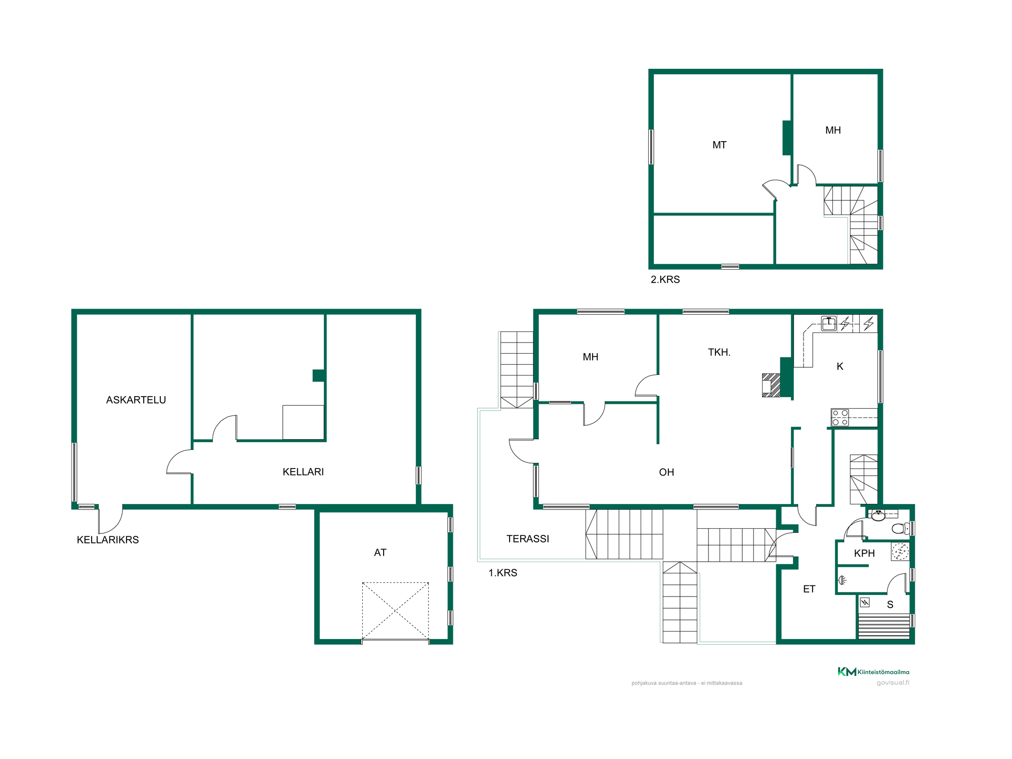
Halutusta Vuorentaustasta tarjolla nyt rauhallisella sijainnilla, hyvin hoidettu ja remontoitu talo isolla omalla tontilla ja pihasaunalla. Vuorentausta omakoti-/rivitalo-asuinalueena on kasvattanut suosiotaan viime vuosina merkittävästi rauhallisuutensa, luonnonläheisyyden sekä Tampereen Lamminpään että Haukiluoman vieressä sijaitsevana asuinalueena. Talo on laajennettu alkuperäisestä rintamamiestalosta saaden enemmän asuintilaa sekä vastaamaan paremmin nykyajan vaatimustasoa. Talon sisääntulo kerroksesta löytyy 2 mh+ok+k+kph+s+wc ja eteinen. Yläkerrassa on 2 makuuhuonetta. Kellarikerroksesta löytyy Loistavat tilat harrastamiseen/työtekoon, sekä tietenkin autotalli. Todellisen saunan ystävän unelma, eli pihasauna löytyy myös tästä kokonaisuudesta. Ota yhteyttä ja varaa oma esittelyaikasi.