
Mira Milan-Harmia
kiinteistönvälittäjä, LKV, LVV, KED
mira.milan@kiinteistomaailma.fi
puh. 0400 292 007
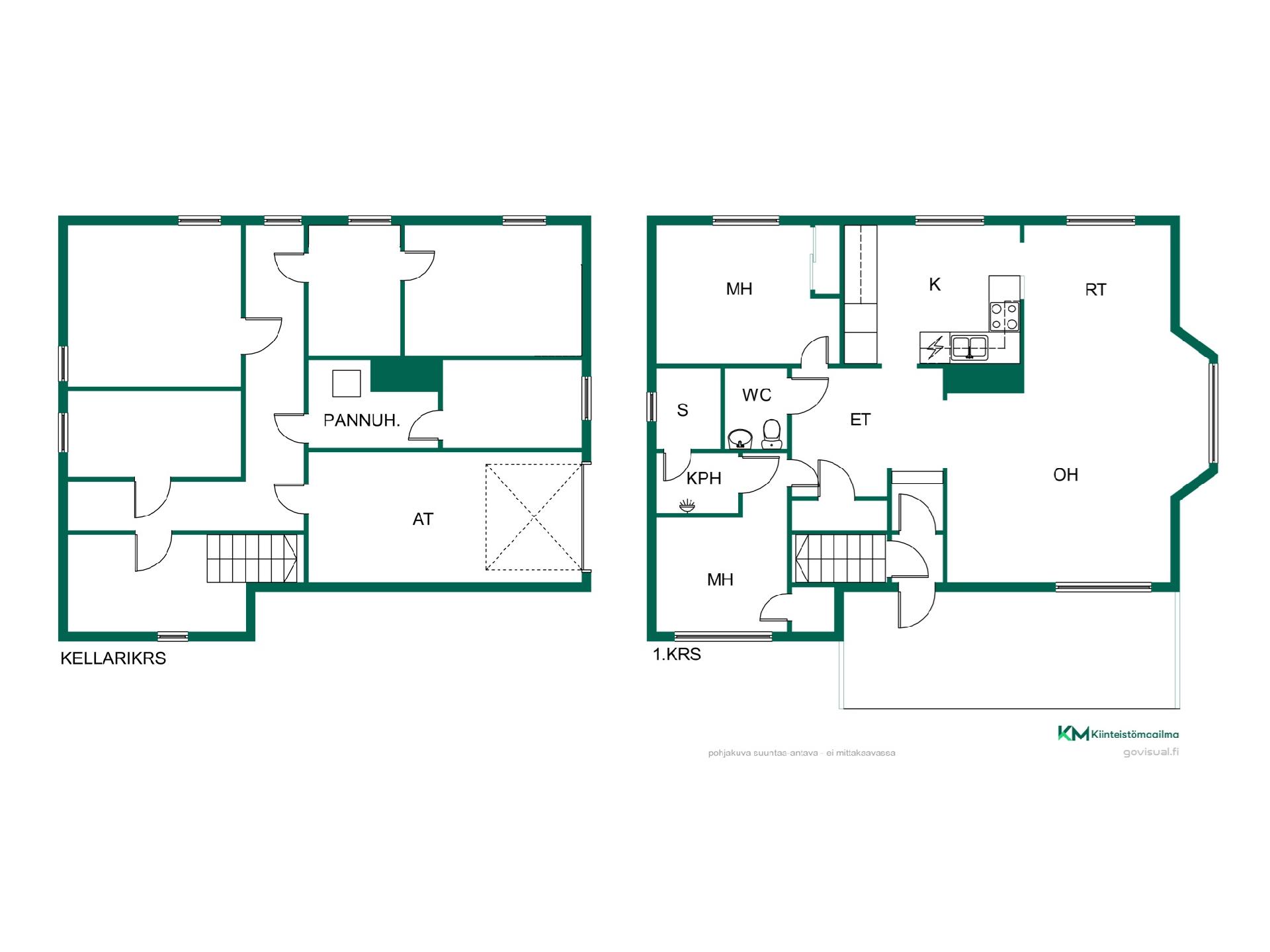
Etsitkö kotia, jossa yhdistyvät luonnonläheisyys ja hyvät yhteydet? Saaristontie 8 tarjoaa juuri sen. Tämä 82 m² omakotitalo sijaitsee omalla 1146 m² tontilla Veikkolan rauhallisella alueella, vain noin 2,5 km päässä palveluista ja kouluista. Rakennus on valmistunut 1960 ja sen sydämessä on kodikas olohuone, kaksi makuuhuonetta, keittiö sekä lasitettu terassi. Lisäksi talossa on autotalli ja suuri kellari, joka tarjoaa runsaasti säilytystilaa. Lämmityksestä huolehtivat öljylämmitys ja uusi ilmalämpöpumppu (2025). Valokuituyhteys takaa nopeat nettiyhteydet. Taloa on kuntotarkastettu (01/2025), ja raportti antaa hyvän pohjan tuleville korjauksille. Rakennusoikeutta on jäljellä, joten laajennus on mahdollista – erinomainen vaihtoehto sinulle, joka haluat muokata ja remontoida kotia omien tarpeidesi mukaan.