
Terhi Riikonen
Myyntiassistentti, LKV, ITS, AIT, IEAT
terhi.riikonen@kiinteistomaailma.fi
puh. 0406758306
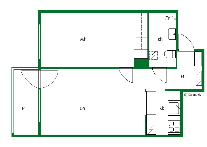
Todella siisti ja valoisa keskusta-asunto, jossa kaikki pinnat ovat uutta vastaavassa kunnossa. Vaalea ja ajaton sisustus tekee asunnosta raikkaan ja helposti sisustettavan. Pieni mutta toimiva keittiö on uusittu ja varustettu kaikella tarpeellisella arkea varten. Asunnon 38 m² on käytetty poikkeuksellisen tehokkaasti, minkä ansiosta kokonaisuus tuntuu yllättävän tilavalta. Säilytystilaa on runsaasti. Kaikki keskustan palvelut, liikenneyhteydet ja vapaa-ajan mahdollisuudet sijaitsevat kävelyetäisyydellä. Vuokra 420 €/kk + vesi ja sähkö. Puhtaat luottotiedot vaaditaan. Ei lemmikkejä, tupakointi kielletty. Ota yhteyttä ja sovitaan esittely – tähän kotiin ihastut varmasti!