
Terhi Riikonen
Myyntiassistentti, LKV, ITS, AIT, IEAT
terhi.riikonen@kiinteistomaailma.fi
puh. 0406758306
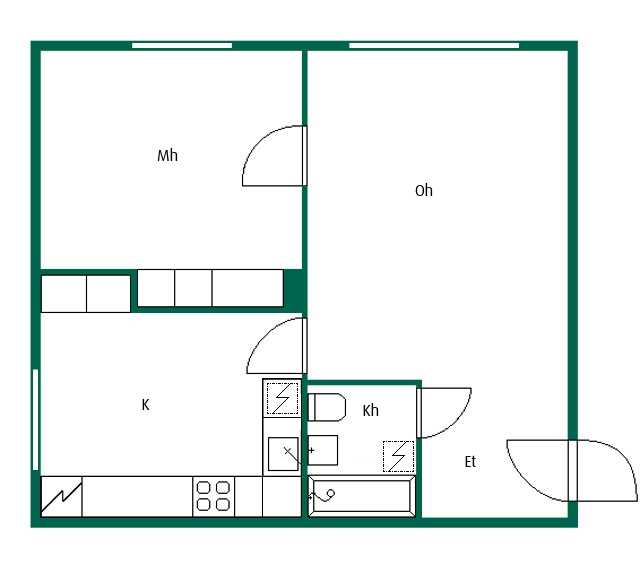
Valoisa ja viihtyisä kaksio Kankunharjussa Tämä 54-neliöinen kaksio Varkauden Kankunharjussa tarjoaa erinomaiset puitteet viihtyisään asumiseen. Sijainti on mitä mainioin luonnonläheisyyttä ja palveluita arvostavalle: vain sadan metrin päästä löytyvät niin hiihtolatu kuin mattolaiturikin. Asunnon pohjaratkaisu on käytännöllinen ja avara. Kodin yleisilme on siisti, sillä asuntoa on remontoitu viime vuosina kattavasti. Keittiö on varusteltu uudehkoilla kodinkoneilla, mikä tekee arjen kokkailuista helppoa ja vaivatonta. Makuuhuone ja olohuone tarjoavat mukavasti tilaa omaan rauhaan, ja laminaattilattiat tuovat yhtenäistä ilmettä huoneisiin. Taloyhtiö on pidetty ja siitä on huolehdittu esimerkillisesti. Asukkaiden käytössä on lisäksi taloyhtiön sauna ja pesutupa, jotka lisäävät asumismukavuutta entisestään. Kankunharjun palvelut ovat lähellä: päiväkoti sijaitsee aivan kivenheiton päässä, ja koulut sekä ruokakaupat ovat saavutettavissa noin kilometrin säteellä. Julkinen liikenne palvelee sujuvasti läheisen bussipysäkin ansiosta, ja Aalto Hyvinvointikeskus sijaitsee vain kilometrin matkan päässä. Tervetuloa tutustumaan tähän kodikkaaseen kaksioon ja tekemään siitä itsellesi mieluinen koti! Ota yhteyttä ja varaa oma esittelyaikasi jo tänään.