
Annukka Hyttinen
kiinteistönvälittäjä, LKV, KED, KiAT
annukka.hyttinen@kiinteistomaailma.fi
puh. 050 565 1162
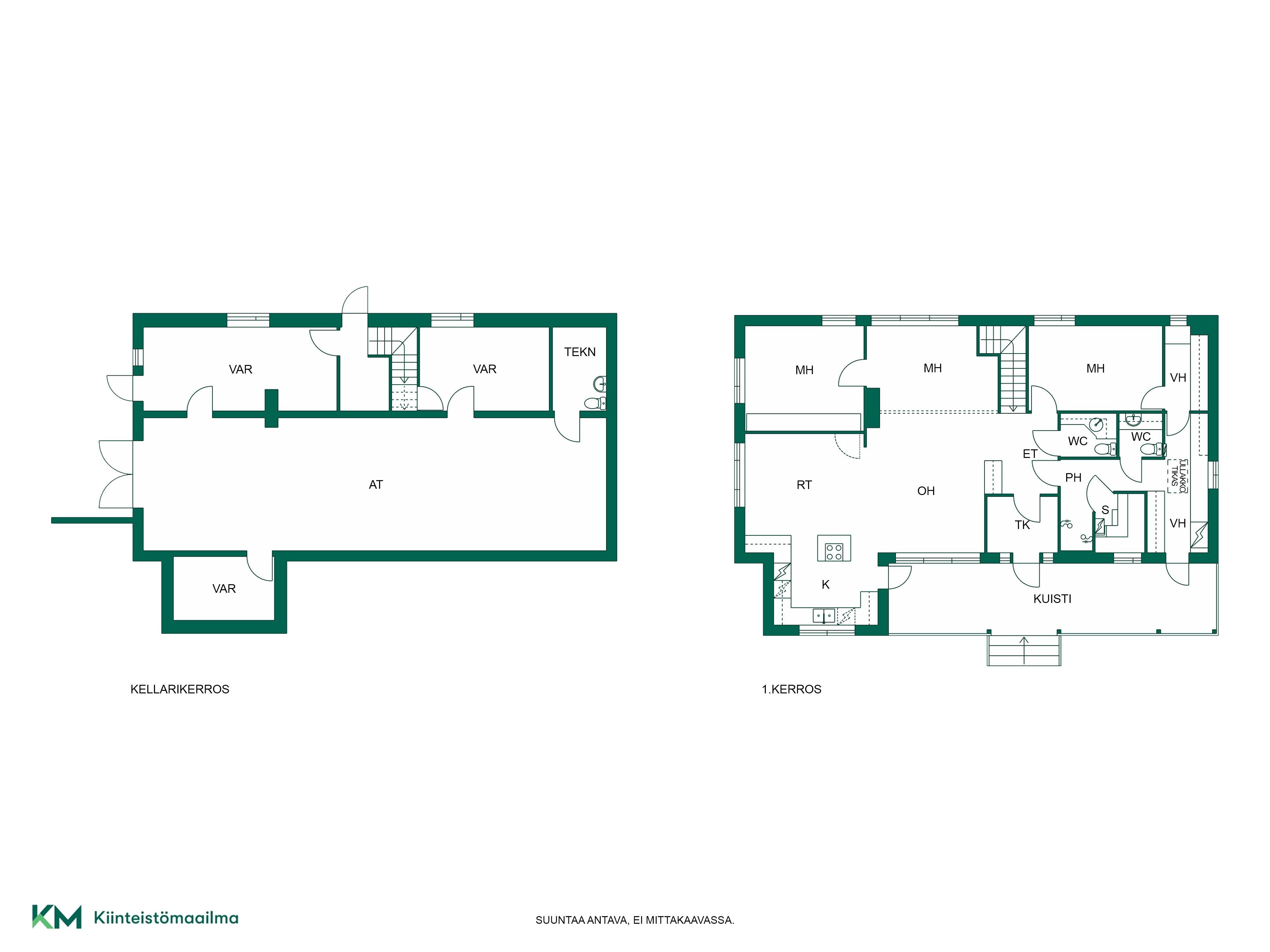
Unelmien koti Vantaan Sotungissa Tuliniementieltä! Tämä vuonna 2018 valmistunut omakotitalo Sotungissa, Sepänmäen viihtyisällä alueella tarjoaa kodikasta ja laadukasta asumista. Talo sijaitsee erinomaisella paikalla yksityistien varrella, jossa yhdistyvät luonnon rauha ja sujuva arki. Talo on suunniteltu vastaamaan vaativankin asukkaan tarpeita. Valoisat ja avarat tilat mahdollistavat kodikkaan sisustamisen ja viihtymisen. Lämmitysmuotona edullinen maalämpö, varaava takka. Viilennykseen lisänä ilmalämpöpumppu. Kiinteistö sijaitsee omalla 1434 m2 tontilla. Sotunki on Uudenmaan vanhimpia ja yhtenäisimpiä säilyneitä kyliä, jossa voi elää luonnon rauhassa aivan palveluiden äärellä. Liikunta - ja ulkoilumahdollisuudet ovat myös lähellä mm. Hakunilan urheilupuiston alue. Tule tutustumaan tähän upeaan uutta vastaavaan kohteeseen. Ota yhteyttä ja varaa oma yksityinen esittelyaikasi! Kannttaa toimia, sillä tälläisia helmia harvoin tarjolla!