
Glenn Orlando
yrittäjä, kiinteistönvälittäjä, LKV, LVV
glenn.orlando@kiinteistomaailma.fi
puh. 044 981 7517
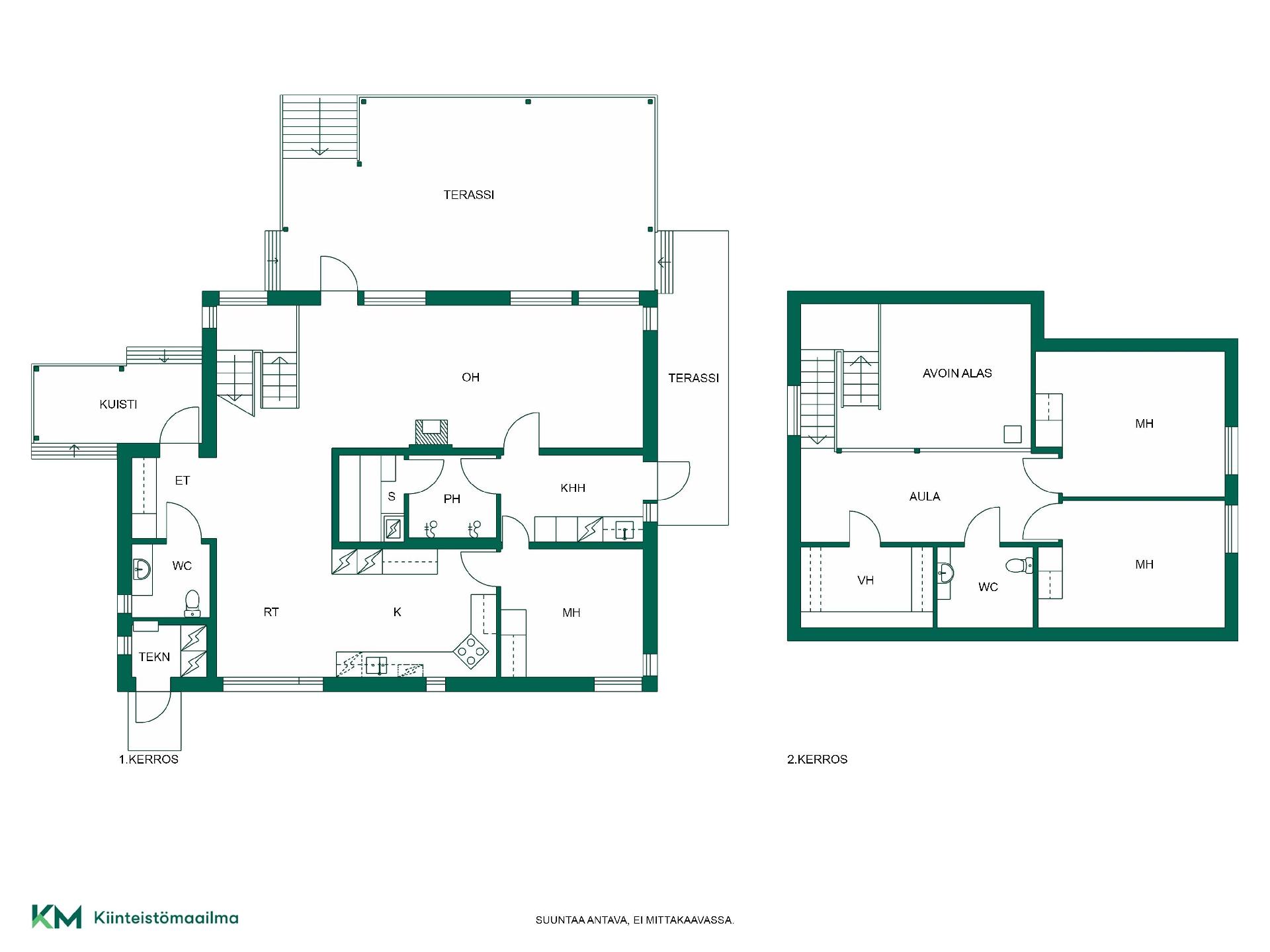
Vantaan Ilola OKT 142/168 m². Tämä kaunis, hyvin hoidettu ja valoa tulviva koti suojaisella piha-alueella varustettuna sijaitsee rauhallisella ja halutulla Ilolan pientaloalueella. Alakerrasta löytyy mm. osittain korkea olohuone, josta löytyy tunnelmaa tuova varaava takka, keittiö, jonka yhteydessä on tilava ruokailutila. Alakerrassa sijaitsee myös makuuhuone sekä kodinhoitohuone, sauna ja pesuhuone. Olohuoneesta on käynti etelään päin sijoittuvalle suurelle ja suojaiselle terassialueelle. Yläkerrassa sijaitsevat asunnon 2 makuuhuonetta ja aulatila, johon voi sijoittaa esim. työpisteen sekä erillinen wc-tila ja vaatehuone. Kivetyllä piha-alueella sijaitsee autokatos sekä tilava lämmin varastohuone. Tämä koti lämpiää kaukolämmöllä ja jäähdyttävä ilmalämpöpumppu pitää asunnon viileänä kovimmillakin helteillä. Ilola on rauhallinen pientalovaltainen asuinalue, josta on hyvät kulkuyhteydet eripuolille pääkaupunkiseutua ja lentokentälle on noin 10 minuutin matka. Asunnon vierestä alkavat mahtavat ulkoilumaastot ja talvisin hyvin hoidettu latuverkosto. Lähietäisyydeltä löytyy useita päiväkoteja ja Ilolan peruskoulu lapsiperheitä silmällä pitäen. Olisiko tämä sinun seuraava kotisi? Tervetuloa tutustumaan- tähän kotiin ihastut varmasti!