
Jonna Torikka
kiinteistönvälittäjä, LKV, KiLAT, BBA
jonna.torikka@kiinteistomaailma.fi
puh. 050 552 5508
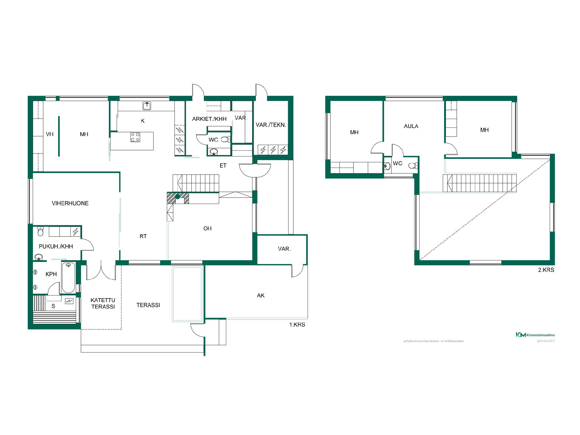
2017 valmistunut moderni Lammin täyskivitalo on arvostetun Hannele Haatajan suunnittelema Kivistön/Kanniston pientaloalueella. Täältä löytyvät hyvät kulkuyhteydet, päivittäispalvelut sekä aivan asuinalueen yhteydestä lähtevät erinomaiset lenkkipolut. Kodissa on maalämpö vesikiertoisilla lattialämmityksellä, koneellinen ilmanvaihto sekä integroitu ilmalämpöpumppu ja takka. Talo on erittäin energiatehokas ja sähköä kuluu vuodessa noin. 9000 kwh (sis. käyttö- ja maalämpösähkö). Asuinkustannukset ovat muutenkin edulliset ja laadukas kivitalo on lähes huoltovapaa. Hyvin varustellun 168m2 neliöisen talon yhteiset tilat ovat sisääntulokerroksessa, jossa on henkeäsalpaava yli 5 m huonekorkeus ja suuret ikkunat tuomassa luonnonvaloa asuntoon. Tilaa on rajattu muutaman portaan kerroksilla ja etenkin suuri hieman erillään oleva A la Carte -keittiö on todistanut arjessa toimivuutensa, keittiö on ruokailutilan ja olohuoneen välittömässä yhteydessä mutta kuitenkin hieman erillään. Keskikerroksessa on viherhuone, josta on kulku terassille lasilukuovilla. Kulun yhteydessä on talon upea kylpyhuoneosasto, jossa on ikkunallinen sauna sekä kodinhoitohuone. Alakerrassa on myös erillinen päämakuuhuone walk-in-closetilla. Yläkerrassa ovat olleet perheen lasten hyvän kokoiset makuuhuoneet, lounge sekä oma erillinen wc. Pihan käyttö on suunniteltu erinomaisesti. Terassi ja nurmipiha on etelä-länsi suunnassa, ja pihalle mahtuvat lasten leikit ja pihajuhlat. Pihan suojaisuus täytyy todistaa paikan päällä. Helppohoitoinen etupiha on laatoitettu ja asfaltoitu. Kiinteistössä on autokatos sekä pihapaikoitus.