
Karri Kekkonen
Yrittäjä, LKV, KED, vastaava hoitaja
karri.kekkonen@kiinteistomaailma.fi
puh. 0400 732 949
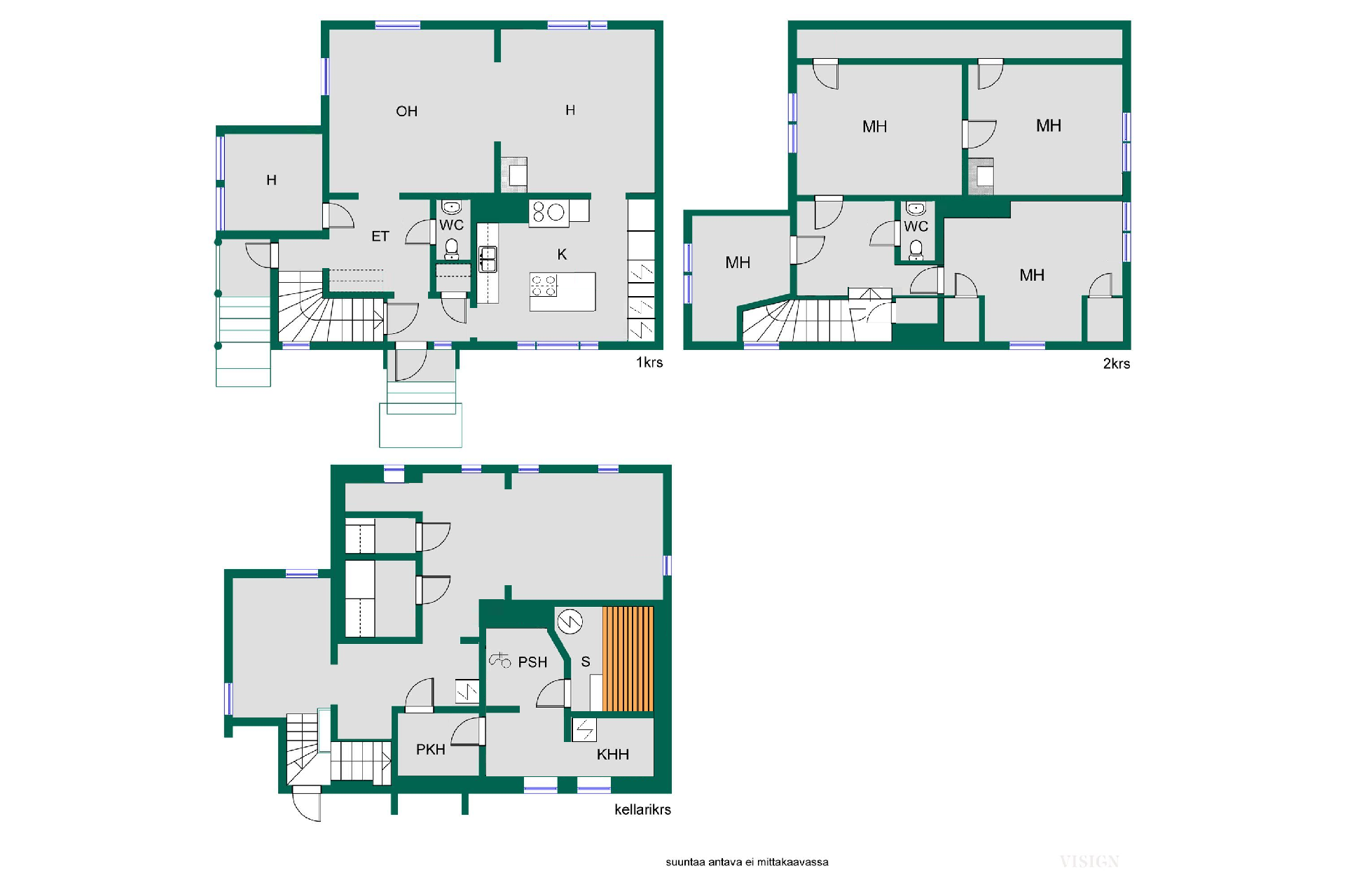
Roukonperän asuinalue on rauhallinen omakotitaloalue ja tämä lämminhenkinen sekä kodikas omakotitalo sijaitsee juuri siellä. Alue on sopivan matkan päässä kaikista palveluista, kaikki kouluasteet ovat lähellä ja yhteydet esim. Tampereen suuntaan ovat erinomaiset. Tämä perinteinen, "isompi" rintamamiestalo on kokenut vuosien varrella useita uudistuksia, mutta talon kodikas henki on onnistuttu säilyttämään. Talon tilat ovat toimivasti kolmessa tasossa. Pääsisäänkäynti on keskikerrokseen, jossa on mainiot tilat. Valoisa olohuone ja iso ruokailuhuone ovat sopivasti vierekkäin. Ruokailuhuoneessa on varaava pönttöuuni ja tilasta on kulku uusittuun keittiöön. Kauniissa keittiössä on runsaasti kaapistoja, kätevä saareke ja toimiva puuliesi. Lisäksi reilu eteinen, wc ja työ/makuuhuone. Hyvät raput yläkertaan, jossa on kolme makuuhuonetta ja yksi vaikkapa työhuoneeksi sopiva tila sekä wc ja vintit. Pohjakerroksen saunaosasto on uusittu kokonaisuudessaan vuonna 2020. Siellä on hyvät löylyt tarjoava sauna, pesuhuoneessa suihku sekä kodinhoito-nurkkaus pyykinpesukoneelle, lattialämmitys jne. Alakerrassa on myös reilusti verstas-/varastotiloja. Talossa on tehty isojakin korjauksia vuosien varrella mm. käyttövesiputket, ikkunat, sähköt, salaojat, kaikkien rakennusten ulkomaalaukset, katon pinnoitus 5-vuoden takuulla jne. Lisätietoja saa meiltä ja viime vuosien remonttikirjasta. Piha-alueella on mukava kesäterassi, joka kutsuu istumaan kesäiltaa. Oma tontti on kooltaan peräti 1689 neliötä. Puutarhatontilla on istutuksia, nurmikkoa ja autotalli sekä ulkovarasto. Tervetuloa tutustumaan tähän sopimuksen mukaan vapautuvaan kotiin. Esittelemme mielellämme!