
Karri Kekkonen
Yrittäjä, LKV, KED, vastaava hoitaja
karri.kekkonen@kiinteistomaailma.fi
puh. 0400 732 949
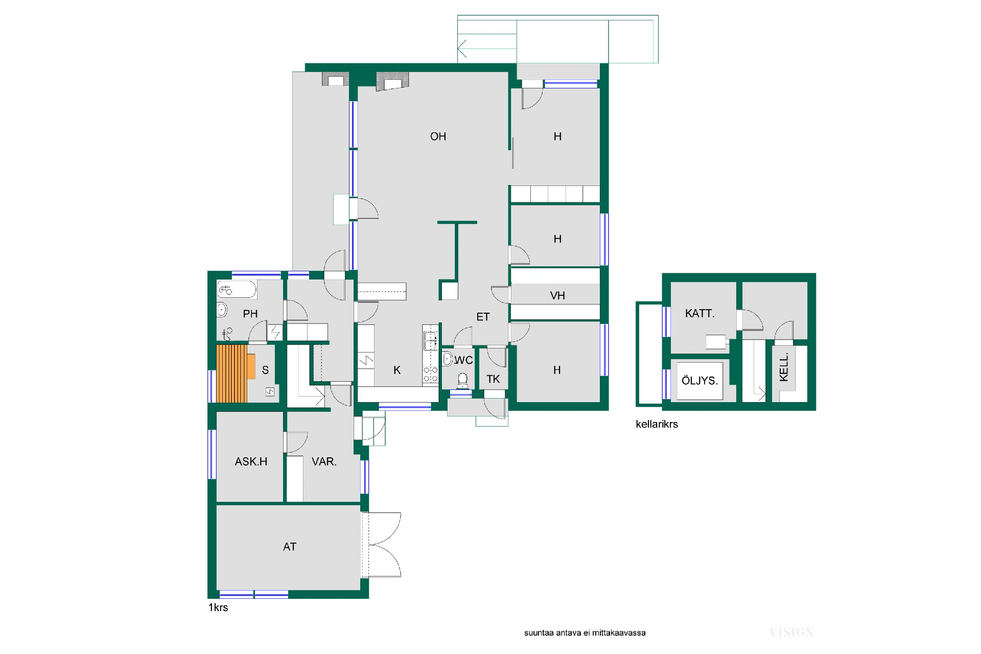
Vankka, vuonna 1966 valmistunut 1-tasoinen täystiilitalo sijaitsee erinomaisella paikalla lähellä Valkeakosken keskustan palveluita ja erinomaisia liikuntamahdollisuuksia. Talossa on ikäisekseen erittäin toimiva ja moderni pohjaratkaisu. Talon katto on uusittu sekä pohjaviemäri on sukitettu ja talossa on kauttaaltaan vesikiertoinen lämmitys. Talon olohuone on tilava, monella eri tavalla helposti kalustettava huone. Isot ikkunat tuovat luonnon kauniisti sisälle ja olohuoneesta on kulku suojaisalle, katetulle terassille. Takka löytyy sekä olohuoneesta että terassilta. Ruokailutila, olohuone ja keittiö muodostavat modernin kokonaisuuden. Makuuhuoneita / työhuoneita talossa on neljä, joista yksi sijaitsee omassa rauhassaan lähellä talon toista sisäänkäyntiä. Säilytystiloina on runsaasti, paljon kaapistoja sekä vaatehuone. Pesuhuoneessa on tyylikkäät retrolaatoitukset ja hyvin tilaa kaikelle tarpeelliselle. Iso ikkunallinen sauna tarjoaa mainiot löylyt. Saunaan saa halutessaan helposti myös puukiukaan. Tästäkin tilasta on kulku suoraan katetulle, suojaisalle takapihan terassille. Varastotiloja on tässä kohteessa poikkeuksellisen paljon, alakerrassa on noin 50 neliöinen tila vaikkapa verstaaksi ja lisäksi lämmin autotalli. Sijainti Juhannusvuoren asuinalueella on mitä mainioin, se on paikka missä viihdytään pitkään. Oma tontti on kooltaan 1200 neliötä. Läheltä löytyvät monipuoliset palvelut, kuten koulut, päiväkodit, kaupat ja harrastusmahdollisuudet. Korkeakankaan pururadoille ja laduille on vain muutaman sadan metrin matka. Tervetuloa tutustumaan tähän heti vapaaseen kotiin. Esittelemme mielellämme!