
Karri Kekkonen
Yrittäjä, LKV, KED, vastaava hoitaja
karri.kekkonen@kiinteistomaailma.fi
puh. 0400 732 949
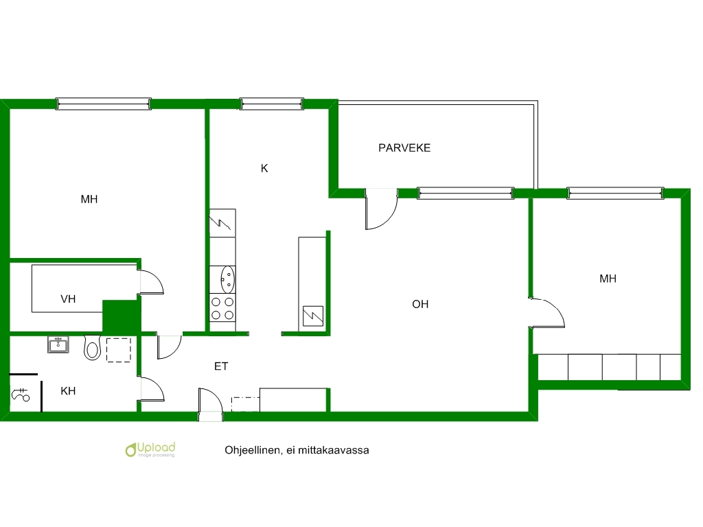
Kerrostalokolmio Vääränkoivun suosittujen hissitalojen 2. kerroksessa. Tämä taloyhtiö on niitä Vääränkoivun tornitaloja, jossa on jo tehty kaikki isot remontit. Julkisivu on uusittu sekä myös iso, perinteisellä tavalla toteutettu putkiremontti. Uusittu on myös vesikate sekä hissi ja viimeisimpinä uudistuksina on uusittu kaukolämpölaitteisto ja lämmöntalteenotto. Kokemus kertoo, että tässä talossa asuu tyytyväisiä asukkaita. Tämän kodin pohjaratkaisu on käytännöllinen ja toimiva. Reilun kokoinen olohuone on kodin keskipiste. Olohuoneesta on kulku tilavalle lasitetulle parvekkeelle, josta on maisemat aamuauringon puolelle. Huoneistossa on kaksi makuuhuonetta, joissa molemmissa on reilusti säilytystilaa ja toisen yhteydessä on tilava vaatehuone. Keittiö on juuri sopivan kokoinen ja siellä on tilaa ruokapöydälle. Kaikissa asuinhuoneiden lattioissa on laminaattilattiat. Kylpyhuone on kauttaaltaan uusittu taloyhtiön putkiremontin yhteydessä. Tyylikkäät laatoitukset sekä seinissä että lattiassa, käytännölliset suihkuseinät tuovat sivussa ollessaan mukavasti lisää tilaa, tilaa pyykinpesukoneelle sekä allas- ja peilikaapit muodostavat yhdessä kauniin ja toimivan kokonaisuuden. Huoneiston hoitovastike on vain 183,06 € / kk. Tämän asunnon myyntihinta on järkevä ja lainaosuudet on mahdollista maksaa pois kaupanteossa. Talon sijainti on mahtava, liikenneyhteydet, päiväkodit, kaikki kouluasteet, liikuntamahdollisuudet ja peruspalvelut ovat lähellä. Ja tietysti esteetön hissitalo mahdollistaa asumisen eri ikäisille ihmisille. Tervetuloa tutustumaan tähän asuntoon, huoneisto vapautuu sopimuksen mukaan. Esittelemme mielellämme!