
Karri Kekkonen
Yrittäjä, LKV, KED, vastaava hoitaja
karri.kekkonen@kiinteistomaailma.fi
puh. 0400 732 949
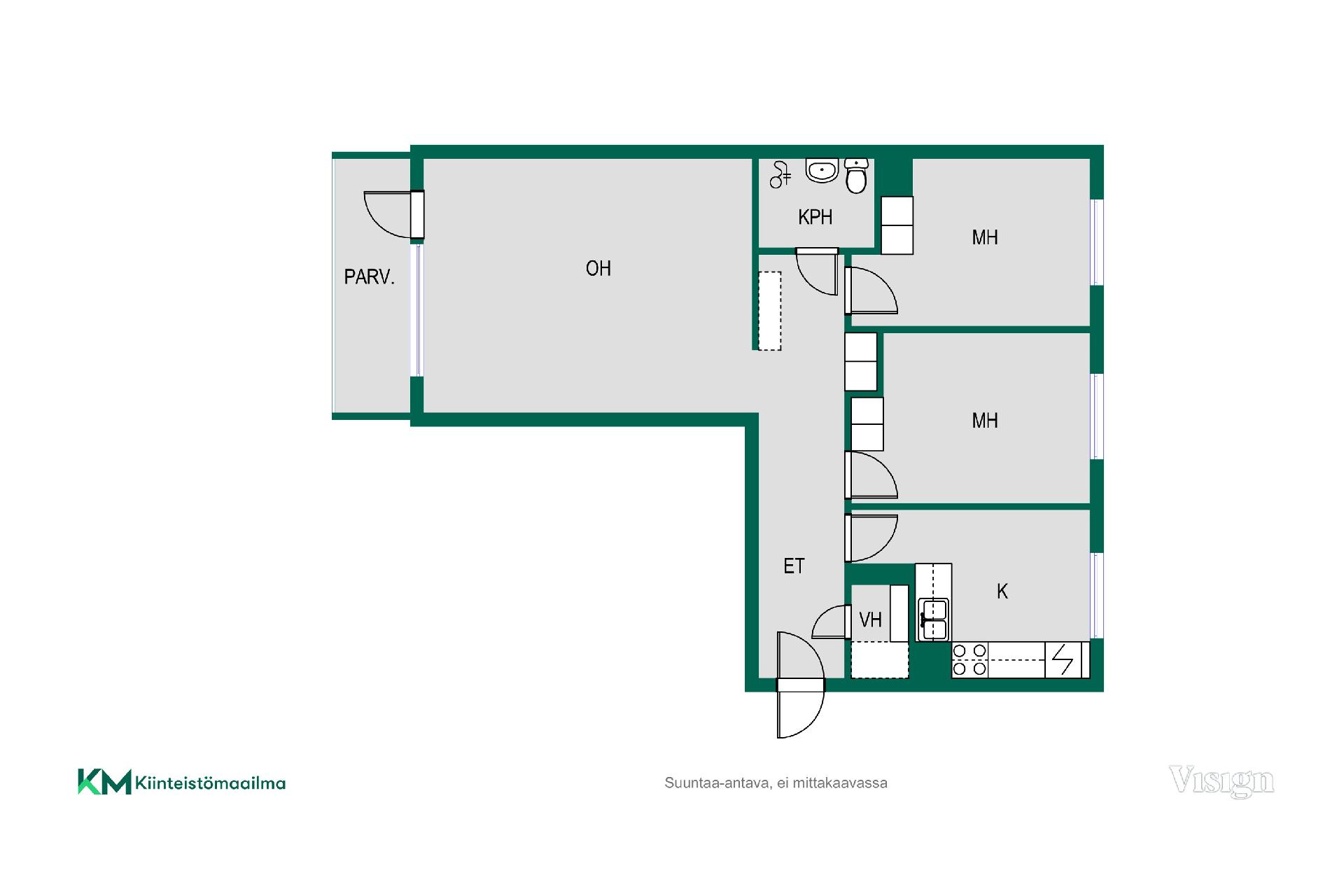
Valkeakosken suositulla Vääränkoivun asuinalueella sijaitseva, putkiremontin läpikäyneen taloyhtiön toisen kerroksen läpitalon päätykolmio. Asunnon pohjaratkaisu on toimiva ja avara. Olohuone on erittäin reilunkokoinen ja olohuoneesta on kulku etelään aukeavalle parvekkeelle. Parvekkeelta on kauniit puistomaiset maisemat. Selkeänmallinen keittiö hyvine kaappitiloineen ja keittiössä on myös paikka ruokapöydälle. Keittiössä on uusitut alakaapistot ja yleisilme on erittäin siisti. Asuinhuoneiden lattioissa on kauttaaltaan uusitut laminaattilattiat. Hyvänkokoisia makuuhuoneita on kaksi kappaletta ja säilytystiloina kaapistot sekä vaatehuone. Kylpyhuoneessa on uusittu kaikki kalusteet sekä wc-istuin putkiremontin yhdessä ja siellä on myös pesukoneliitäntä. Asunto Oy Valkeakoivu on erittäin hyvin hoidettu taloyhtiö. Yhtiössä on vuonna 2020 valmistunut putkiremontti. Putkiremontissa tehtiin viemäriputkien sukitus, käyttövesiputkien uusiminen, sähkösaneeraus ja taloyhtiön saunaosaston uusiminen. Paljon muitakin perusparannuksia on tehty jo aiemmin mm. katto ja lukituksen uusiminen. Taloyhtiössä on myös juuri uusittu ikkunat sekä parvekeovet. Sijainti koulujen, palvelujen, liikenneyhteyksien jne. läheisyydessä on loistava. Uusi Roukon yhtenäiskoulu on aivan vieressä. Lotilan uimaranta on myös lähellä ja uimarannan vierestä lähtee kaunis järvimaisemalenkki. Tervetuloa tutustumaan tähän sopimuksen mukaan vapautuvaan kolmioon. Esittelemme mielellämme!