
Visa Suojanen
yrittäjä, kiinteistönvälittäjä, kaupanvahvistaja, LKV
visa.suojanen@kiinteistomaailma.fi
puh. 040 352 4293
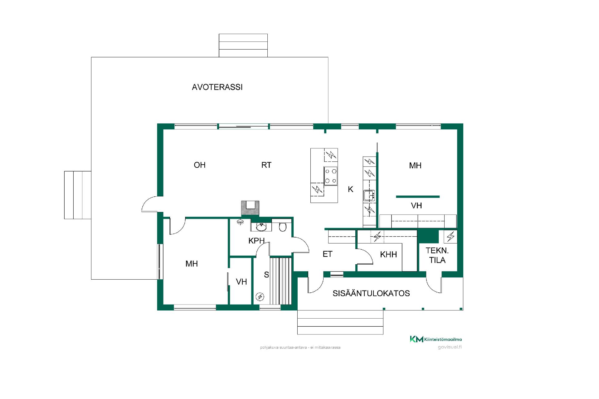
Upea vapaa-ajan keidas Leppäveden rannalla – moderni hirsihuvila Oravasaaressa! Tervetuloa Oravasaareen – vain noin 15 kilometrin päässä Jyväskylän keskustasta sijaitsee tämä vuonna 2023 käyttöönotettu, korkealaatuinen ja huolella viimeistelty vapaa-ajan asunto. Nykyaikainen, yksikerroksinen hirsihuvila tarjoaa arjen ylellisyyttä upeissa luonnonläheisissä puitteissa. Ympärivuotiseen käyttöön soveltuva huvila kätkee sisäänsä avaran olohuoneen, modernin hyvin varustellun avokeittiön, kaksi makuuhuonetta vaatehuoneineen, sekä tyylikkäät kylpy- ja kodinhoitotilat. Lämminhenkinen sisustus yhdistää betonilattiat, hirsiseinät ja laadukkaat materiaalivalinnat harmoniseksi kokonaisuudeksi. Tunnelmaa ja lisälämpöä tuo varaava takka. Lämmitysmuotona toimii ekologinen maalämpö vesikiertoisella lattialämmityksellä, ja ilmanvaihdosta vastaa koneellinen tulo- ja poistoilmanvaihto lämmöntalteenotolla – mukavuutta ympärivuotiseen käyttöön. Lisäksi kiinteistöllä on varaus rantasaunalle ja autotallille (liittymät valmiina). Noin 100 metrin omaa rantaviivaa Leppävedellä, laiturilla varustettuna, tarjoaa viihtyisät puitteet vesielämään. Pihapiirissä on myös oma ulkoporeallas – täydellinen paikka rentoutumiseen luonnon helmassa. Oma, 3 285 neliömetrin tontti on helppohoitoinen ja lähistöllä ei ole naapureita. Hiekkatietä Oravasaarentieltä tontille tulee reilut satametriä. Tämä kohde täyttää vaativammankin lomanviettäjän toiveet – luksusta, rauhaa ja modernia asumismukavuutta kauniin järviluonnon keskellä. Soita tai kirjoita ja sovi oma yksityisesittelyaikasi välittäjältä!