
Jani Kesälä
yrittäjä, kaupanvahvistaja, AKA-arvioija, LKV, KiAT, AKA
jani.kesala@kiinteistomaailma.fi
puh. 044 4600 104
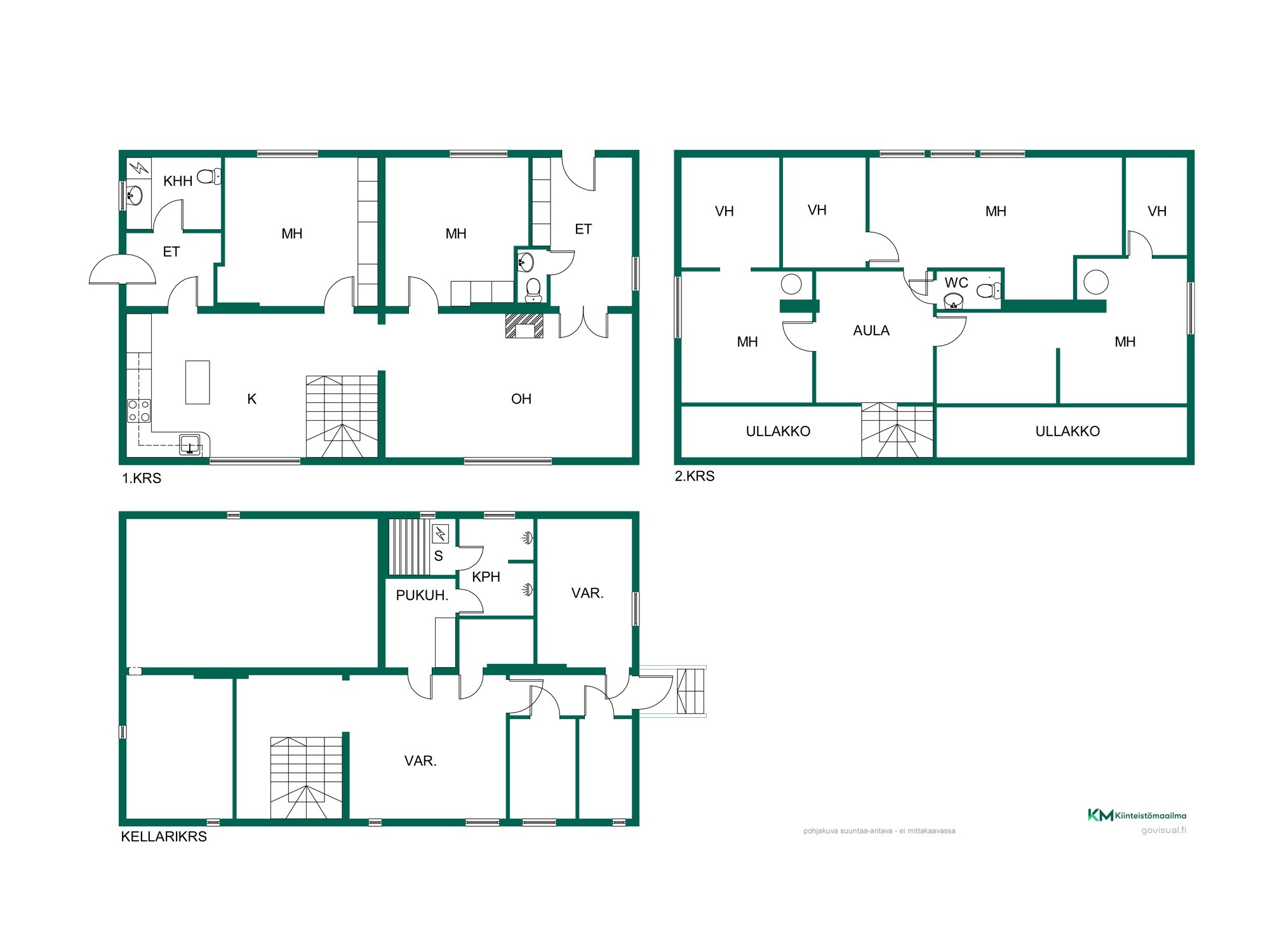
Historiallista tunnelmaa ja tilaa perheelle arvostetulla sijainnilla Jokelassa Tämä vankka, tiilestä ja puusta rakennettu koti Jokelan sydämessä tarjoaa ihanteelliset puitteet lapsiperheen arkeen. Sijainti on mitä parhain: koulu ja päiväkoti sijaitsevat aivan kivenheiton päässä, mikä tekee perheen päivittäisistä rutiineista vaivattomia. Rautatieasema ja paikalliset ruokakaupat ovat myös lyhyen matkan päässä, joten kaikki tarpeellinen on mukavasti saavutettavissa. Koti levittäytyy kolmeen kerrokseen tarjoten runsaasti tilaa ja yksityisyyttä jokaiselle perheenjäsenelle. Avara pohjaratkaisu yhdistää toimivuuden ja tunnelman, jota korostavat muun muassa yläkerran makuuhuoneiden pönttöuunit sekä olohuoneen varaava takka. Laadukkaasti toteutettu keittiö Puustellin kalustein muodostaa kodin keskipisteen, jossa arjen askareet sujuvat mutkattomasti. Taloa on vuosikymmenten saatossa huolella ja rakkaudella päivitetty vastaamaan nykypäivän tarpeita. Kattavien remonttien myötä muun muassa salaojat, piha-alueet, ikkunat sekä lämmitysjärjestelmä on uusittu, mikä takaa asumismukavuutta vuosiksi eteenpäin. Ilmalämpöpumput ja lattialämmitys pitävät kodin lämpimänä energiatehokkaasti. Oma, vehreä piha tarjoaa rauhallisen suojapaikan leikkeihin ja vapaa-ajan viettoon. Terassi ja huolella suunniteltu pihapiiri kutsuvat nauttimaan ulkoilmasta omassa rauhassa. Erillinen pihavarasto tuo tarvittavaa säilytystilaa perheen harrastusvälineille. Tämä koti on yhdistelmä kestävää rakennusperintöä ja nykyaikaista asumisen laatua. Tule tutustumaan tähän kodikkaaseen kokonaisuuteen, joka on valmis toivottamaan uuden perheen tervetulleeksi. Varaa oma esittelyaikasi ja tule aistimaan tämän historiallisen talon ainutlaatuinen tunnelma paikan päälle.