
Laura Lehtola
kiinteistönvälittäjä, vuokravälittäjä, alalla 11-vuotta. YKV, LKV, LVV, KiAT, kaupanvahvistaja
laura.lehtola@kiinteistomaailma.fi
puh. 050-382 7827
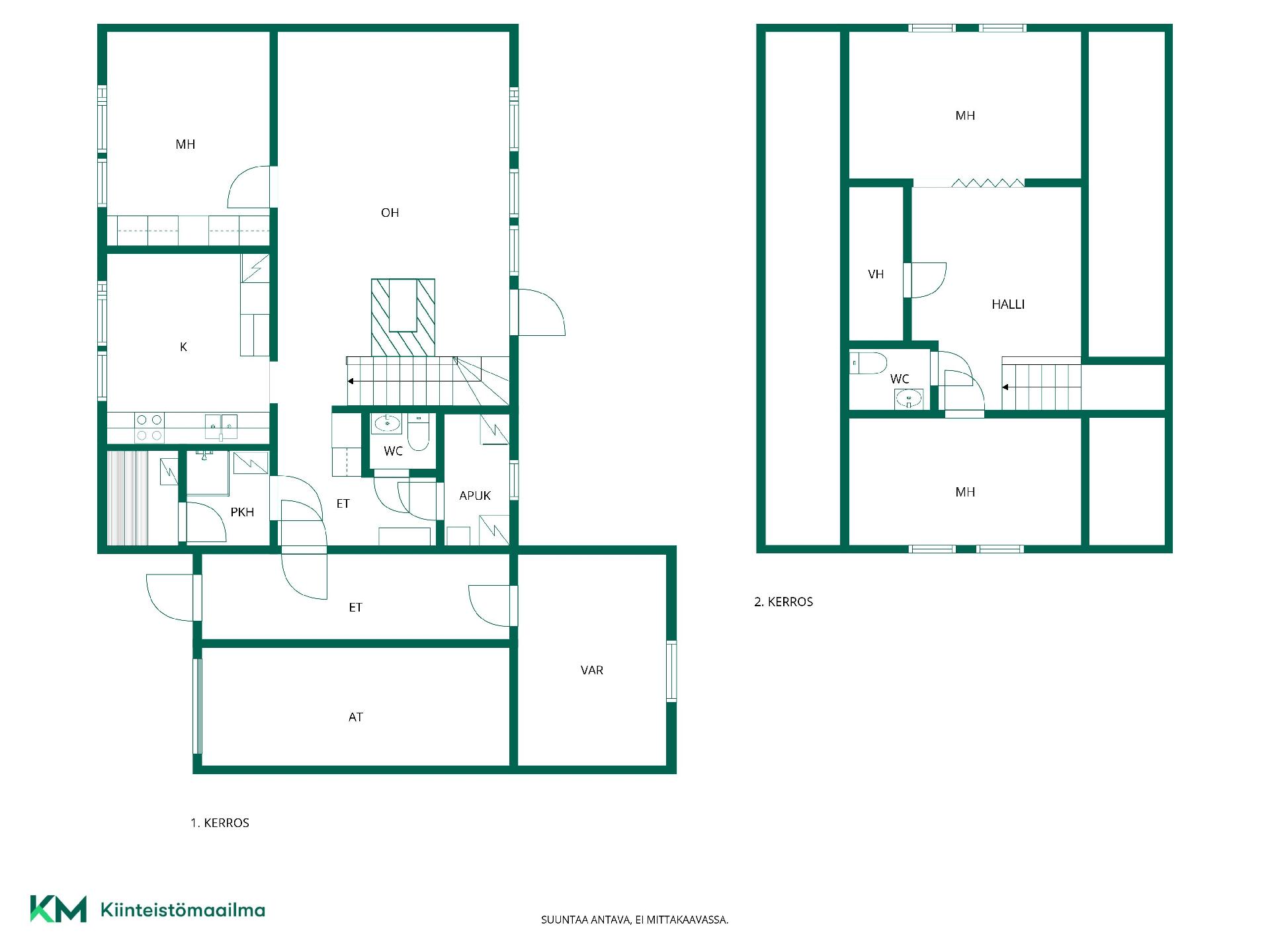
Kodikas ja lämminhenkinen omakotitalo Kivirannalla – täydellinen sijainti lapsiperheelle. Tervetuloa tutustumaan tähän viihtyisään omakotitaloon Tornion Kivirannalla. Tämä kahteen kerrokseen rakentunut koti tarjoaa toimivat asuintilat ja rauhallisen ympäristön aivan palvelujen äärellä. Sijainti, joka tekee arjesta sujuvaa: Päiväkoti, alakoulu ja ruokakauppa kävelymatkan päässä. Torpin monipuoliset palvelut aivan lähettyvillä ja yläkoulu vain 5 minuutin pyörämatkan päässä. Tornion keskusta alle 3 km päässä Ulkoilijan unelma: Valaistu kuntopolku kutsuu lenkille ympäri vuoden Talvisin alueella hiihtolatu Useita leikkikenttiä lähistöllä Tunnelmaa ja toimivuutta: Olohuoneessa tunnelmallinen takkaleivinuuni Asuintilat kahdessa kerroksessa tarjoavat tilaa ja joustavuutta. Suojaisa piha rajoittuu leikkipuistoon – turvallinen ja viihtyisä ympäristö lapsille Tämä koti yhdistää luonnonläheisyyden, palvelujen läheisyyden ja perheystävällisen ympäristön. Varaa oma esittelyaikasi ja tule ihastumaan!