Tarjouskauppa

Misa Roito
toimitusjohtaja, yrittäjä, kiinteistönvälittäjä, LKV
misa.roito@kiinteistomaailma.fi
puh. 050 597 1539
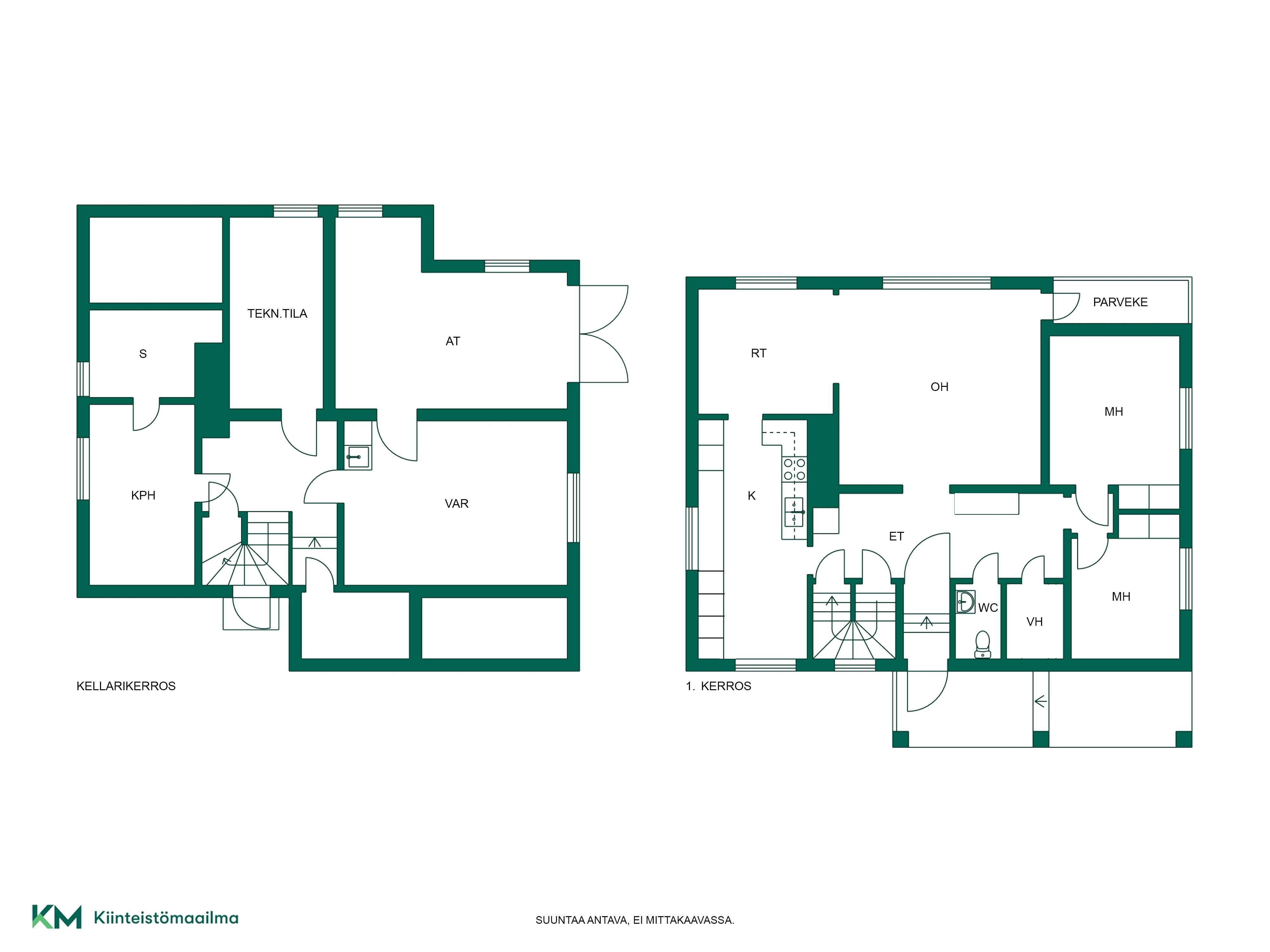
Nyt myynnissämme kaikilta osin alkuperäiskuntoinen talo keskeltä Kissanmaan puutarhakaupunginosaa. Idyllinen sijainti pientaloalueen keskellä, takaosaltaan virkistysalueeseen rajoittuvalla isolla omalla tontilla. Sisäänkäyntikerroksessa on kaksi makuuhuonetta, keittiö, ruokailuhuone, vaatehuone sekä wc. Kellarissa on saunatilat, tekninen tila askarteluhuone/varasto sekä autotalli. Iso ullakkotila on asuinkäyttöön rakentamatonta tilaa. Talo vaatii mittaviakin teknisiä perusparannuksia, sekä pintamateriallien uusimista. Suunnittelusilmää omaavalle todella hieno kohde muokattavaksi. Ostajan tulee tutustua kaupan kohteeseen erityisellä huolellisuudella. Ostajan on mahdollista teettää lisätarkastuksia tai - tutkimuksia kustannuksellaan. Myyjä ei vastaa kiinteistöllä sijaitsevassa rakennuksessa kaupan teon jälkeen mahdollisesti ilmenevistä virheellisyyksistä tai puutteellisuuksista liittyivätpä ne rakenteellisiin seikkoihin, rakennustavan asianmukaisuuteen, rakennuksen käyttömahdollisuuksiin, ilmoitettuihin pinta-alatietoihin, rakennusluvanmukaisuuteen, kosteus-, sieni-, home- tai lahovaurioihin tai puutteellisuuksiin esimerkiksi rakennuksen perustuksissa, eristyksissä, rungossa, ala-, ylä- tai välipohjassa, julkisivussa, vesikatteessa, seinissä, pinnoitteissa, ikkunoissa, ovissa, rakennuksen muissa varusteissa tai kalusteissa, vesi-, viemäri- tai sähköjohdoissa tai -laitteistoissa, hormeissa, ilmastointikanavissa, sähkö- tai lämmitysjärjestelmässä tai muissa kojeissa tai laitteissa taikka kodinkoneissa. Myyjä ei myöskään vastaa mahdollisista yllättävistä rakennuksen purkamiseen tai remontoimiseen liittyvistä kustannuksista (mm. asbesti). Tämän lausekkeen tarkoituksena on poistaa myyjän virhevastuu kokonaisuudessaan rakennusten osalta ja tämä on huomioitu hinta-asetannassa. Asemakaava / 2016: Erillispientalojen ja paritalojen korttelialue, jolla rakennettu ympäristö säilytetään. Rakennettu ympäristö muodostaa kulttuurihistoriallisesti, rakennushistoriallisesti ja kaupunkikuvallisesti arvokkaan kokonaisuuden, jonka merkittävyys perustuu yhtenäisyyden säilymiseen ja tyylinmukaiseen kokonaisvaikutelmaan. Asuinrakennuksia ei saa purkaa.