
Tiina Bergqvist
yrittäjä, kiinteistönvälittäjä LKV, kaupanvahvistaja
tiina.bergqvist@kiinteistomaailma.fi
puh. 040 120 5001
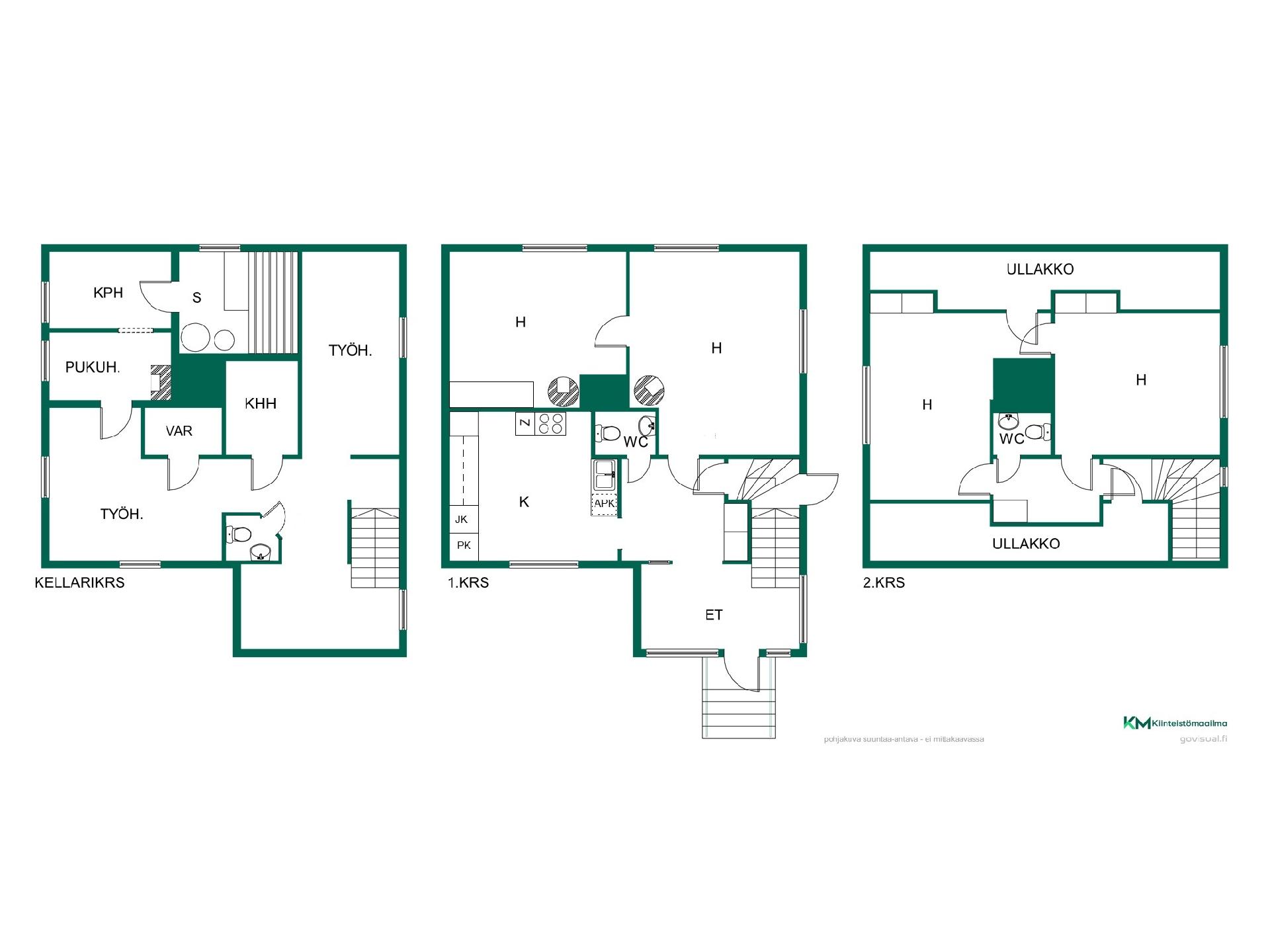
Hyvin pidetty rintamamiestalo omalla tontilla – unelmakoti lapsiperheelle! Tervetuloa vehreään ja rauhalliseen Ikuriin, jossa tämä hyvin hoidettu rintamamiestalo odottaa uusia asukkaitaan. Oma tontti tarjoaa tilaa leikeille, turvallisen ympäristön ja mahdollisuuden nauttia omasta pihapiiristä juuri omalla tavallasi – trampoliinista kasvimaahan. Talon tilavat ja valoisat huoneet sopivat erinomaisesti lapsiperheen arkeen: jokaiselle löytyy oma nurkkaus, ja yhteiset oleskelutilat kutsuvat viettämään aikaa yhdessä. Kodin lämpö ja perinteinen rintamamiestalon tunnelma yhdistyvät tässä kokonaisuudessa moderniin käytännöllisyyteen. Kellarikerroksessa on runsaasti säilytystilaa ja monipuoliset harrastetilat, jotka muuntuvat helposti perheen tarpeisiin – olipa haaveena kotikuntosali, askarteluhuone, musiikkitila tai arkea helpottava kodinhoitokeskus. Auton säilytys on helppoa ja tilavaa: pihasta löytyy kahden auton talli, joka tarjoaa suojaa ja järjestystä arkeen. Ikuri on tunnettu turvallisesta ja yhteisöllisestä ympäristöstään, luontopolkujen läheisyydestä sekä erinomaisista kulkuyhteyksistä. Päiväkodit, koulut ja palvelut ovat lähellä, joten arki rullaa mutkattomasti ilman pitkiä siirtymiä. Tämä koti tarjoaa kaiken, mitä lapsiperhe voi toivoa: rauhaa, tilaa, toimivuutta ja lämminhenkistä asumista. Tervetuloa tutustumaan.