
Tommi Luosmala
Yrittäjä, kaupanvahvistaja, LKV, YKV
tommi.luosmala@kiinteistomaailma.fi
puh. 050 597 1531
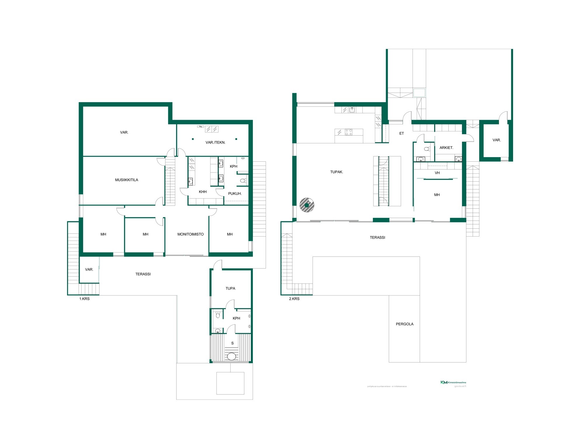
HUIPPUPAIKALLA POHTOLASSA NÄSIJÄRVEN RANNALLA! JUURI VALMISTUNUT UPEA OK-TALO, PINTA-ALA N. 264 M2, OMA TONTTI 1.529 M2, RANTAVIIVAA N. 25 M! MAALÄMPÖ, VESIKIERTOINEN LATTIALÄMMITYS! Unelmien toteuttamisen aika on nyt! Arvostetulla alueella Pohtolassa Näsijärven rannalla vastavalmistunut ja tyylikäs kivirakenteinen talo, joka ei jätä ketään kylmäksi! Sisääntulokerroksessa on suuri (67 m2) ja valoisa olohuone/ruiokailutila/keittiö-kokonaisuus. Tilan suuret ikkunat ulottuvat lattiasta kattooon ja näköalat järvelle ovat upeat. Lasiliukuoven kautta on kulku suurelle (n. 80 m2) terassiparvekkeelle sekä rantasaunan kattoterassille. Pukeutumishuoneella varustetusta master bedroomista on myöskin suora yhteys lasiliukuoven kautta terasiparvekkelle. Kerroksessa on lisäksi wc, varasto sekä autokatos kahdelle autolle. Alemmassa keroksessa on 3 makuuhuonetta, monitoimihuone, suuri harrastehuone (28 m2), kodinhoitohuone, kph/wc ja reilusti varastotilaa (n. 45 m2). Harrastetila toimii vaikkapa kuntosalina, kotiteatterina, pelihuoneena tai työtilana. Tilat taipuvat moneen. Lasiliukuoven kautta on kulku isolle terassille, joka jatkuu rantaan asti. Erillisessä rantasaunarakennuksessa on saunatupa, kylpyhuone, wc, kattoterassi sekä tilava sauna upein järvinäkymin. Rannan laituriin pääsee myös isollakin huviveneellä. Ranta on toteutettu upeasti. Terassi ulottuu veteen asti ja rantakallio on jätetty hienosti luonnontilaiseksi. Talon sijainti on mainio. Lielahden liikekeskittymän laajat palvelut marketteineen ovat 2,5 km:n päässä. Lähikauppaan on matkaa 800 m, peruskouluun 1,8 km ja keskustaan 8 km. Tässä on tilaisuus upeaa rantataloa etsivälle!