
Tommi Luosmala
Yrittäjä, kaupanvahvistaja, LKV, YKV
tommi.luosmala@kiinteistomaailma.fi
puh. 050 597 1531
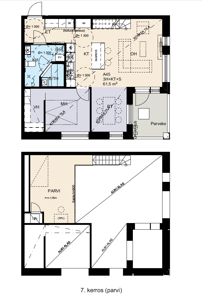
Upea, parvella varustettu kolmio! Tämän kodin olohuoneessa on korkeutta niin että piisaa ja ikkunat kahteen ilmansuuntaan. Tyylikkäässä keittiössä on työtilaa tuomassa saareke. Master bedroomin yhteydessä on reilun kokoinen vaatehuone ja toisen makuuhuoneen voit halutessasi toteuttaa myös olohuoneeseen yhdistettynä ruokasalina. Asunto Oy Tampereen Hatanpään Botanican rakennustyöt ovat käynnissä ja talo valmistuu hyvää vauhtia. Sijainti on mitä parhain: Tässä lähelläsi ovat Pyhäjärven rannat, kaupunginpuutarha ja erinomaiset liikenneyhteydet (kohta myös ratikka). Kaupungin keskustaankin on vain kävelymatka. Hyvin varustellussa talossa lämmitysmuotona on maalämpö vesikiertoisella lattialämmityksellä, ilmanvaihto on huoneistokohtainen ja talossa on monipuoliset yhteistilat (mm. pihasauna).
Kohde on yhtiölainoitettu. Taloyhtiölainasta on vastuussa jokainen osakas. Jos lainaa koskevia pääomavastikkeita ei saada joidenkin asuntojen osalta muutoin perittyä, maksuvelvollisuus voi langeta viime kädessä muille osakkaille.