
Tommi Luosmala
Yrittäjä, kaupanvahvistaja, LKV, YKV
tommi.luosmala@kiinteistomaailma.fi
puh. 050 597 1531
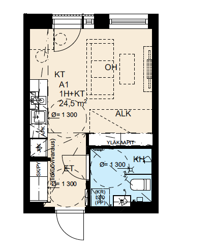
Tervetuloa Hatanpäälle! Asunto Oy Tampereen Hatanpään Botanican rakennustyöt ovat käynnissä ja talo valmistuu hyvää vauhtia. Sijainti on mitä parhain: Tässä lähelläsi ovat Pyhäjärven rannat, kaupunginpuutarha ja erinomaiset liikenneyhteydet (kohta myös ratikka). Kaupungin keskustaankin on vain kävelymatka. Hyvin varustellussa talossa lämmitysmuotona on maalämpö vesikiertoisella lattialämmityksellä, ilmanvaihto on huoneistokohtainen ja talossa on monipuoliset yhteistilat (mm. pihasauna). Tämä yksiö on loistava valinta mikäli olet etsimässä kompaktia kaupunkikotia tai arvonsa säilyttävää sijoitusta. Kaikelle tarvittavalle on oma paikkansa, keittiö on laadukkaasti toteutettu ja pesuhuoneeseen mahtuu hyvin niin pesukone kuin kuivaustelinekin. Kivenheiton päässä keskustasta saat nyt uuden asunnon vanhan hinnalla - tähän kannattaa todellakin tutustua tarkemmin!
Kohde on yhtiölainoitettu. Taloyhtiölainasta on vastuussa jokainen osakas. Jos lainaa koskevia pääomavastikkeita ei saada joidenkin asuntojen osalta muutoin perittyä, maksuvelvollisuus voi langeta viime kädessä muille osakkaille.