
Tommi Luosmala
Yrittäjä, kaupanvahvistaja, LKV, YKV
tommi.luosmala@kiinteistomaailma.fi
puh. 050 597 1531
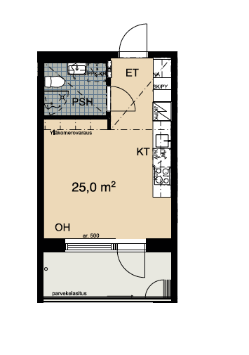
Koivistonkylä on uudistunut Ilokkaanpuiston alueen rakentamisen myötä. Tämä nykyaikainen asuinalue sijaitsee polkupyörämatkan päässä keskustasta, lähellä hyviä liikenneyhteyksiä ja Prisma-keskusta oheispalveluineen. Asunto Oy Tampereen auringonsäde on innovatiivisia ratkaisuita sisältävä kerrostaloyhtiö; lämmitysmuotona on energiatehokas ja ekologinen maalämpö ja as oy omistaa osuuden aurinkovoimalasta jonka sähköä hyödynnetään niin rakennuksen kuin asuntojenkin tarpeisiin. Nyt myyntiin tullut asunto sijaitsee 4.:ssa kerroksessa ja tarjoaa hyvän pohjaratkaisun johon kuuluu alkovi, lasitettu parveke ja oma paikkansa kaikelle tarvittavalle. Asuntoon valmiiksi vuokrattu (595 € + käyttökorvaukset). Kuvat ovat toisesta, vastaavanlaisesta saman taloyhtiön asunnosta (peilikuva).