
Jonna Torikka
kiinteistönvälittäjä, LKV, KiLAT, BBA
jonna.torikka@kiinteistomaailma.fi
puh. 050 552 5508
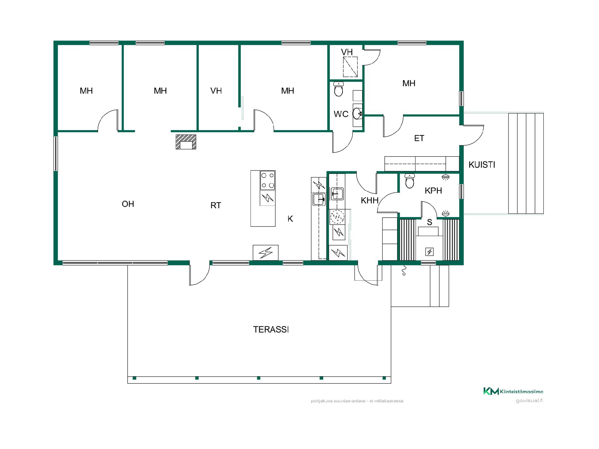
Tämä omakotitalo sijaitsee Söderkullassa Taasjärven rauhallisella omakotitaloalueella. Metsäalueeseen rajautuvan kiinteistön tontin koko on 983m2 ja sille on rakennettu uudehko 2023 valmistunut yksitasoinen 131 asuinneliön omakotitalo sekä kahden auton autokatos ja varastotila. Pihaa on riittämiin ja asuinrakennus on aseteltu niin, että jopa 58m2 katettu terassi on etelän suuntaan. Makuuhuoneet sijaitsevat pohjoispuolella ja yksitasoisuus tekee kodista erittäin avaran tuntuisen. Asuinrakennus noudattaa viimeisintä rakennustekniikkaa ja sen lämmitysmuoto on edistyksellisesti maalämpö. Rakennus kuuluu poikkeuksellisesti energiatehokkuudeltaan A2018 eli parhaaseen mahdolliseen luokitukseen. Suunnittelultaan siinä on ylellisiä elementtejä, kuten yhteistentilojen korkea huonekorkeus, kulku kodinhoitohuoneesta ja olohuoneesta terassille sekä varaava takka ja suuret ikkunat. Mukavuutta tuo myös oma ilmalämpöpumppu. Kodin materiaalit ovat uudenkarheat ja harmoniset, suuri saarekkeellinen keittiö on Puustellia. Autokatokseen mahtuu helposti kaksi ajoneuvoa ja katoksessa on sähköautonlatausvalmiina. Katoksen päädyssä on tilava eristetty ja sähköpatterilla lämmitetty varasto. Etupiha on asfaltoitu ja asuinrakennusta kiertää nurmi sekä istutukset. Tontti tosiaan rajautuu rauhalliseen metsäalueeseen, jonne ei tulla kaavoittamaan uutta asuinkantaa. Tässä kodissa yhdistyy huolettomuus, hyvä suunnittelu sekä nykyaikaiset ratkaisut ja erittäin edulliset asumiskustannukset! Lämpimästi tervetuloa tutustumaan!