Tarjouskauppa

Tommi Luosmala
Yrittäjä, kaupanvahvistaja, LKV, YKV
tommi.luosmala@kiinteistomaailma.fi
puh. 050 597 1531
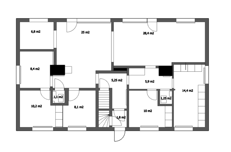
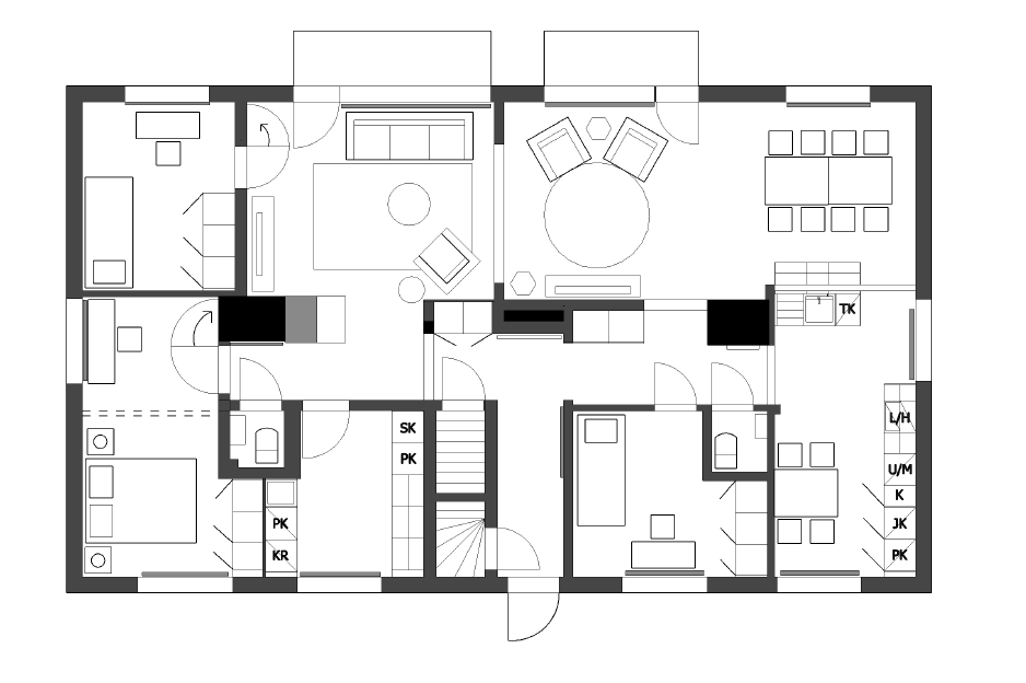
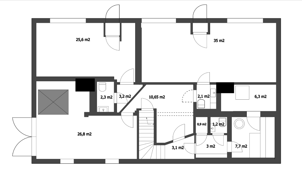
Nyt tarjolla talo, joka maksaa omia kulujaan! Tässä Ylöjärven Siivikkalassa sijaitsevassa kivitalossa on heti vapaana yläkerran asuinhuoneisto ja alakerran liiketilat (2kpl) vuokrattu pitkäaikaisille vuokralaisille, yht. 9420 € / vuosi. Suojaista piha-aluetta löytyy mukavasti. Yläkerrassa 3 makuuhuonetta, todella iso olohuone, keittiö, 2 kpl wc. Alakerrassa puusauna/pesutila, wc, reilusti varastotilaa ja autotalli. Myös koko talon pituinen käyttöullakko jossa jo vesi ja viemäri varaukset valmiina. Tilojensa puolesta talo mahdollistaakin monipuoliset jalostamismahdollisuudet joko nyt tai tulevaisuudessa. Taloon on tehty valmiit suunnitelmat remontista, näistä havainnekuvat sekä pohjapiirros löytyvät kuvista. Lämpimästi tervetuloa tutustumaan!