Tarjouskauppa

Sari Mäntyranta
kiinteistönvälittäjä, kaupanvahvistaja, LKV
sari.mantyranta@kiinteistomaailma.fi
puh. 044 744 8151
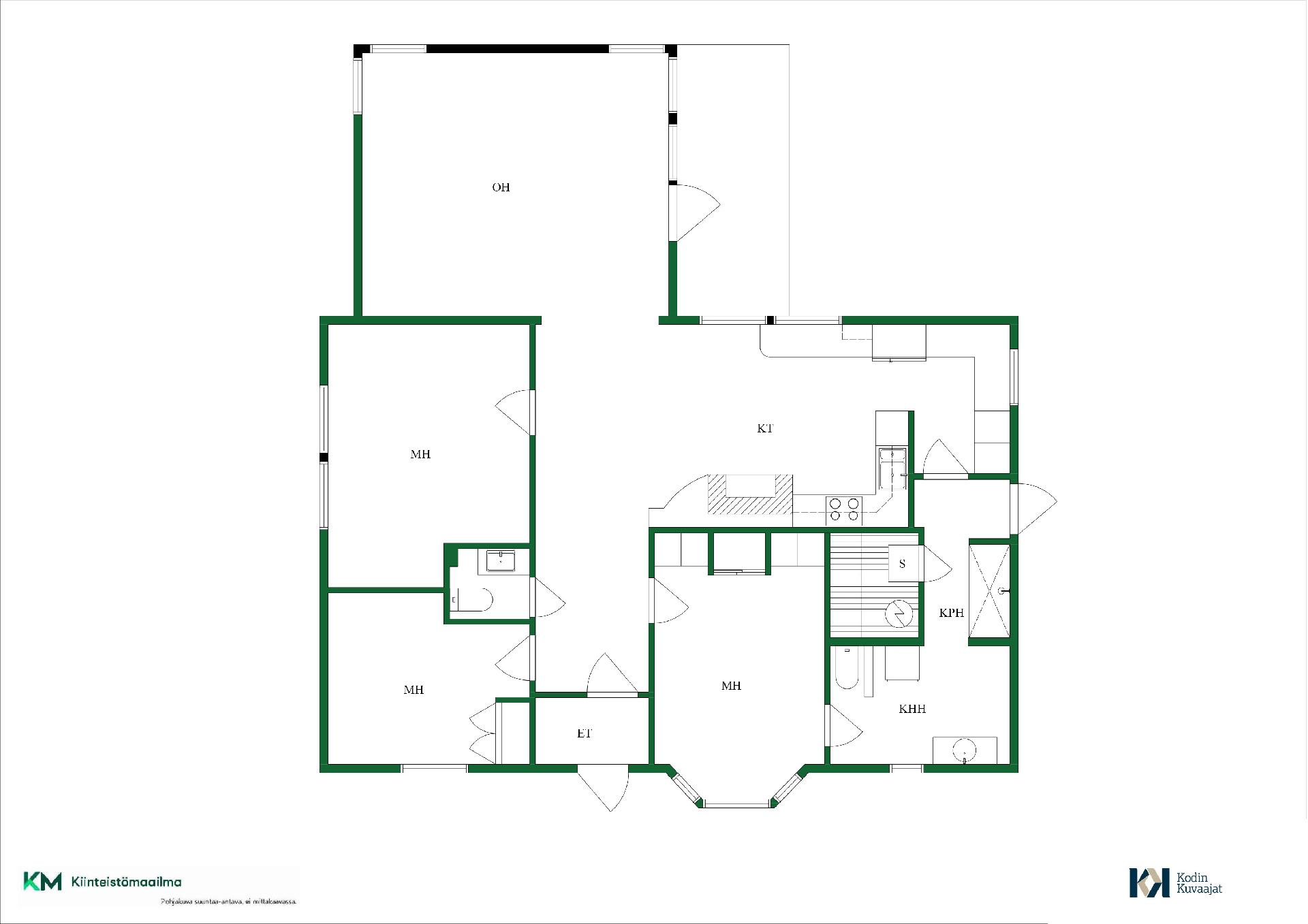
Tervetuloa viihtyisään ja rauhalliseen kotiin vanhan Vennivaaran alueelle, päättyvän tien päähän. Sijainti tarjoaa harvinaista yksityisyyttä: naapureita on vain kahdella sivulla, eikä läpikulkuliikennettä ole lainkaan. Alue on rauhallinen ja turvallinen – ihanteellinen niin perheelle kuin omaa tilaa arvostavalle. Talossa on kolme makuuhuonetta, joista yksi on erityisen tilava. Kyseinen huone on muodostettu kahdesta yhdistetystä makuuhuoneesta, ja se on tarvittaessa mahdollista jakaa takaisin, jolloin makuuhuoneita on neljä. Tämä tuo joustavuutta eri elämäntilanteisiin, kuten lapsiperheelle, etätyöhön tai harrastetilaksi. Kiinteistöön kuuluu erillinen autotallirakennus, jossa on lämmintä varastotilaa sekä reilusti tilaa puuhasteluun koneiden ja harrastusten parissa. Tilat sopivat erinomaisesti esimerkiksi auto- tai moottoriharrastajalle, nikkarointiin tai yritystoiminnan tarpeisiin. Taloa on remontoitu vuosien varrella, ja se on hyvässä kunnossa, joten asuminen on vaivatonta ilman välittömiä remonttitarpeita. Toimiva pohjaratkaisu ja rauhallinen ympäristö tekevät tästä kodista kokonaisuuden, jossa viihtyy pitkään. Tämä koti tarjoaa tilaa, rauhaa ja monipuoliset mahdollisuudet – kaikki arvostetulla ja viihtyisällä alueella.